Casa AC en Málaga
Marina Uno Arquitectos- Tipo Casa Vivienda
- Fecha 2023
- Ciudad Málaga
- País España
- Fotografía Fernando Alda
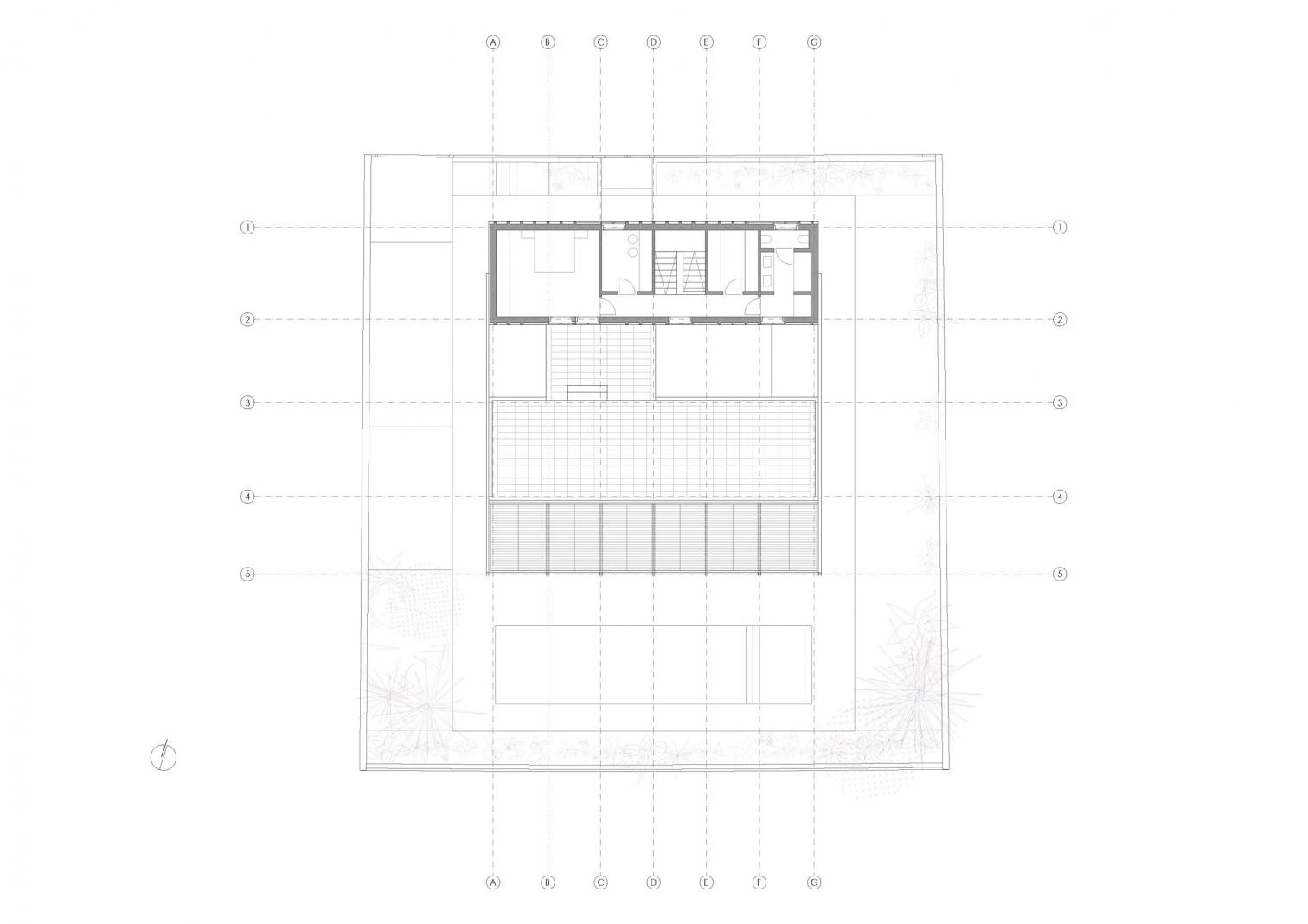
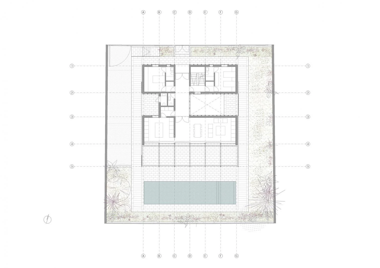
La vivienda de tres niveles se encuentra en una parcela plana y de planta cuadrada del barrio malagueño del Limonar. Obra de Marina Uno Arquitectos —Juan Manuel Sánchez La Chica y Adolfo de la Torre Prieto—, la casa está organizada mediante un sistema de bandas paralelas, dispuestas de norte a sur, y atravesadas por un eje de circulación que conecta las diferentes partes del programa. El acceso se realiza a través de un profundo hueco que perfora el cuerpo de los dormitorios. Los muros se levantan con un aparejo de ladrillo a base de pilastras que sombrean las fachadas. Todo se pinta de blanco con la intención de reducir la absorción de radiación solar. La vivienda se construye con delgadas losas de hormigón armado apoyadas sobre muros de ladrillo manual y una delgada estructura metálica que se desnuda en el frente al jardín.















