Renovation of apartment building in Tarragona
Asun Vidal Layel (AVL Arquitectura) Antoni Bou Arquitectes- Type Housing Refurbishment
- Date 2019
- City Tarragona
- Country Spain
- Photograph Jerome Rens
- Brand Cortizo Jung
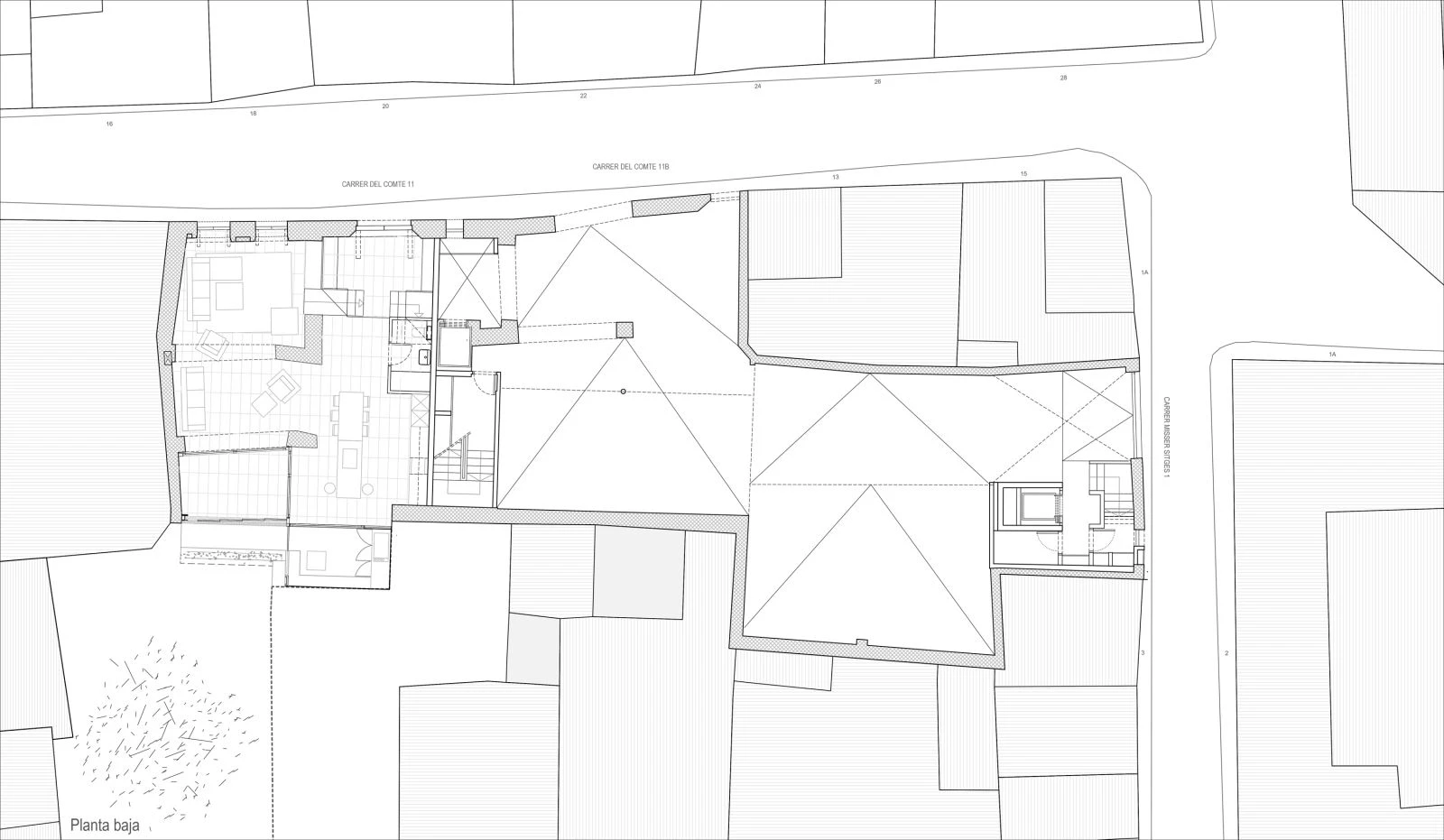
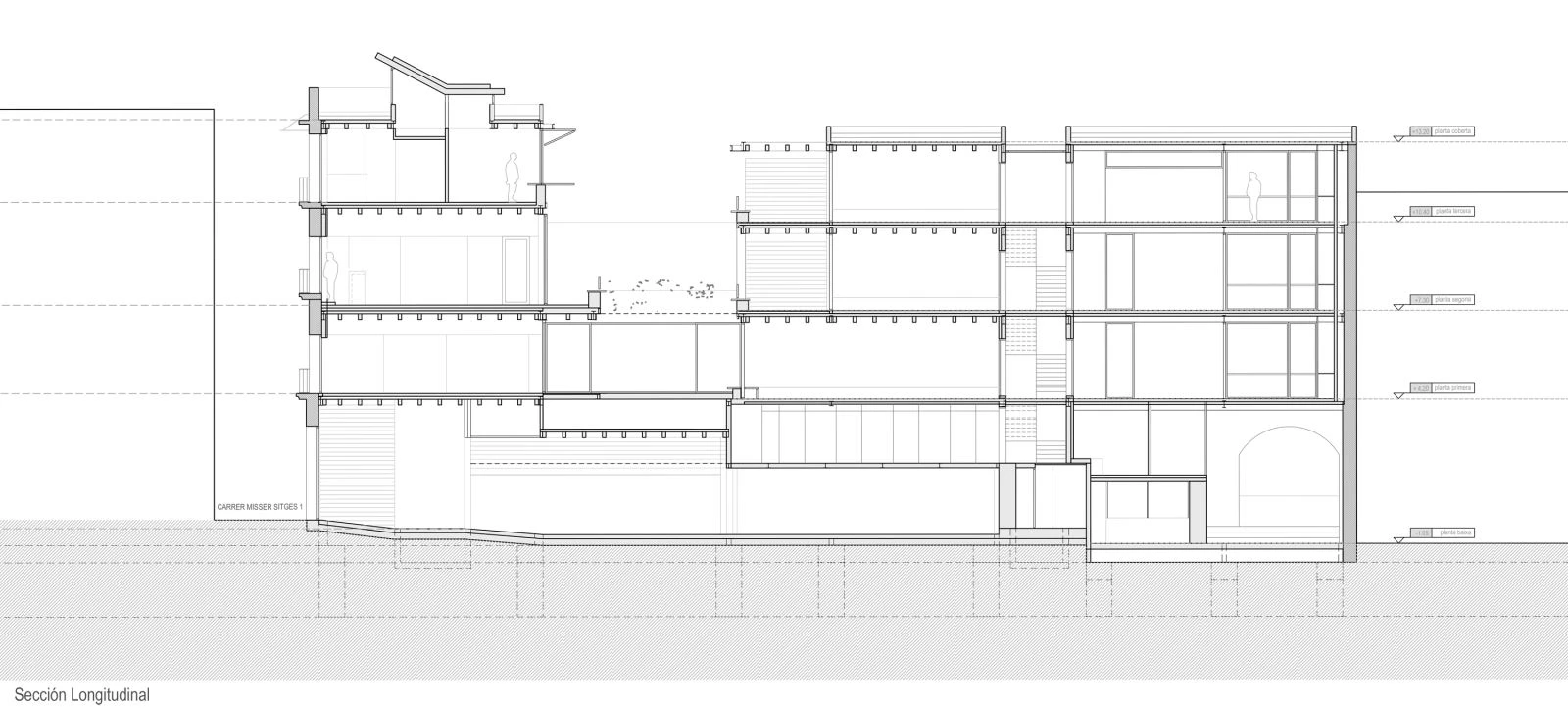
The Catalan practices of Asun Vidal Layel (AVL Arquitectura) and Antoni Bou i Moncús worked together in renovating two buildings in the historical center of Tarragona. Connected on the ground floor, they harbor a total of eight apartments. The intervention respects the original arrangement of the volumes, their external skin, and the archaeological elements found at ground level.
The 1,535-square-meter building turns inward, with courtyards optimizing orientations and the privacy necessary for the generous exterior spaces of the units to be enjoyed. Combining wood, steel, and the bare stone of the archaeological remains, the exposed structure defines the apartments, which are designed in accordance with the needs of their final users, with cross ventilation and energy-saving criteria.








