Rehabilitación de un edificio de viviendas en Tarragona
Asun Vidal Layel (AVL Arquitectura) Antoni Bou Arquitectes- Tipo Vivienda Rehabilitación
- Fecha 2019
- Ciudad Tarragona
- País España
- Fotografía Jerome Rens
- Marca Cortizo Jung
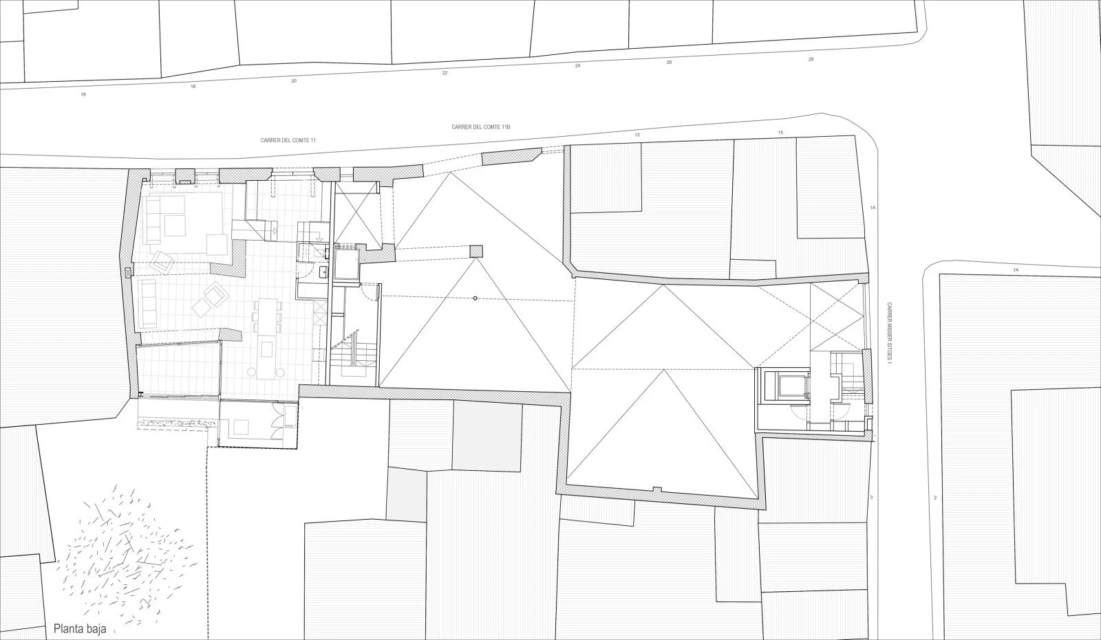
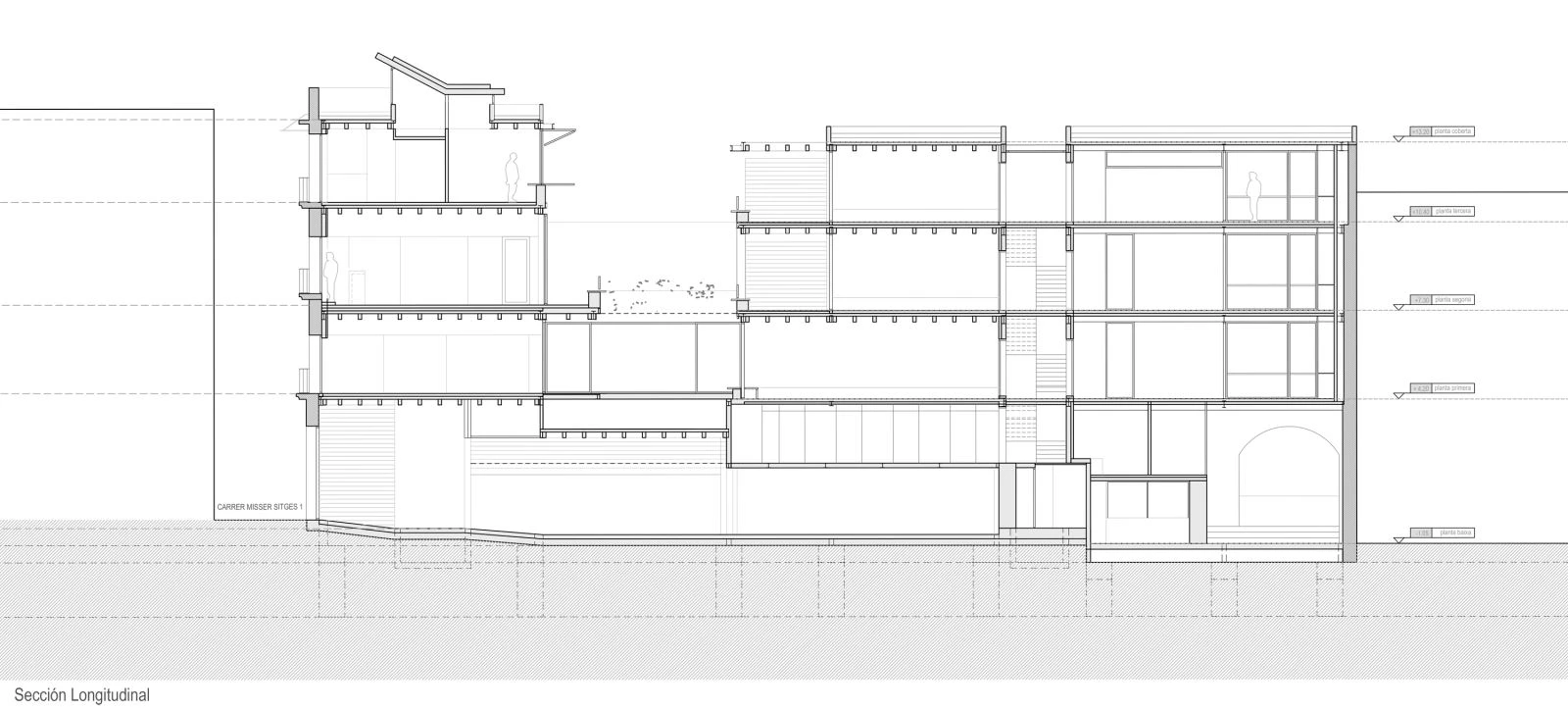
Fruto de la colaboración entre las firmas catalanas de Asun Vidal Layel (AVL Arquitectura) y Antoni Bou i Moncús, este proyecto de rehabilitación comprende dos edificios unidos en planta baja que albergan ocho viviendas en el centro histórico de Tarragona. La intervención respeta la disposición volumétrica del conjunto plurifamiliar, su piel exterior y los elementos arqueológicos de planta baja.
Con una superficie construida de 1.535 metros cuadrados, el edificio se vuelca hacia el interior con patios que optimizan las orientaciones y la privacidad necesaria para disfrutar de los amplios espacios exteriores de las viviendas. Combinando madera, acero y la piedra desnuda de los restos arqueológicos, la estructura vista define las viviendas diseñadas a medida de las necesidades de sus usuarios finales, con ventilación cruzada y criterios de ahorro energético.








