Convent of Saint-François in Sainte-Lucie-de-Tallano (Corsica)
Amelia Tavella Architectes- Type Religious / Memorial Refurbishment Monastery Cultural center Culture / Leisure
- Material Metal Copper
- Date 2021
- City Sainte-Lucie-de-Tallano (Corsica)
- Country France
- Photograph Thibaut Dini
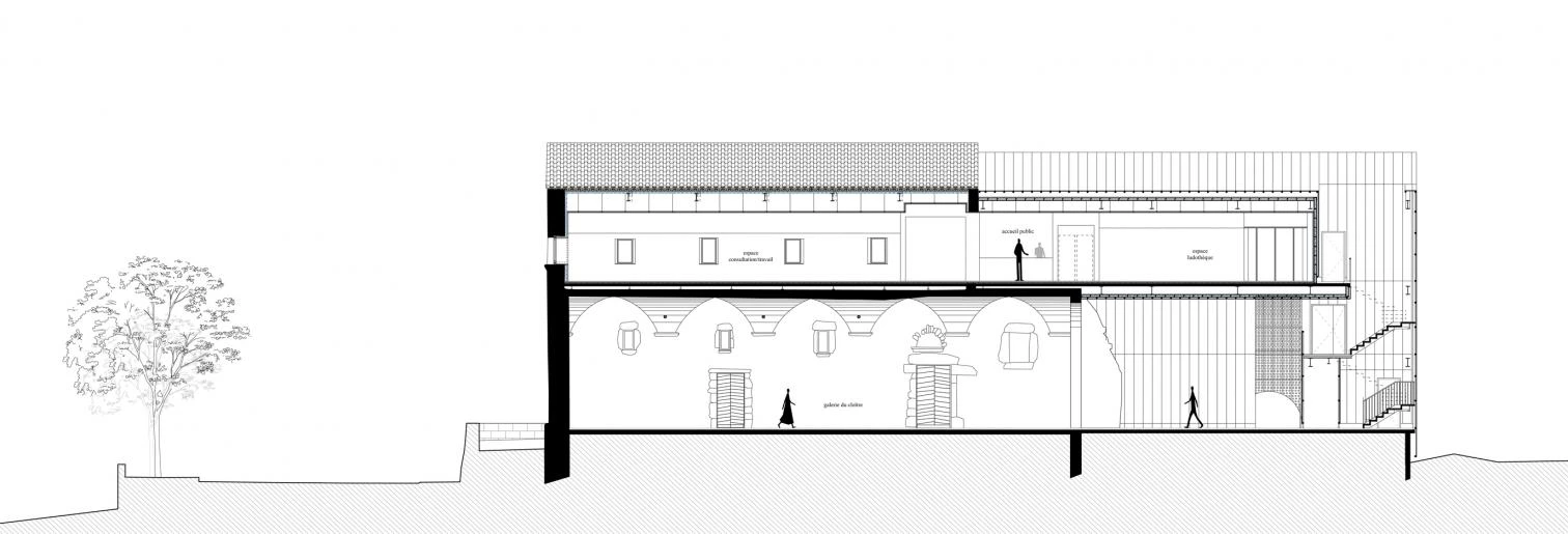
Amelia Tavella has renovated and extended a convent on her native island, Corsica, turning it into a cultural center for the town of of Sainte-Lucie-de-Tallano. Immersed in a mountainous landscape, the Convent of Sainte-François, built in 1480, was abandoned and partly in ruins. Amelia Tavella Architectes sought to preserve the history and essence of the monastic premises, adding a perforated copper volumen that reinterprets the torn part of the preexisting stone construction and harbors an exhibition room, a media library, and spaces for children. In this way, the reconstruction of the religious building preserves the vestiges of its history.


















