Poste du Louvre Renovation, Paris
Dominique Perrault Architecture- Type Refurbishment Hotel Shop Cultural center
- Material Metal Glass
- Date 2020
- City Paris
- Country France
- Photograph Michel Denancé
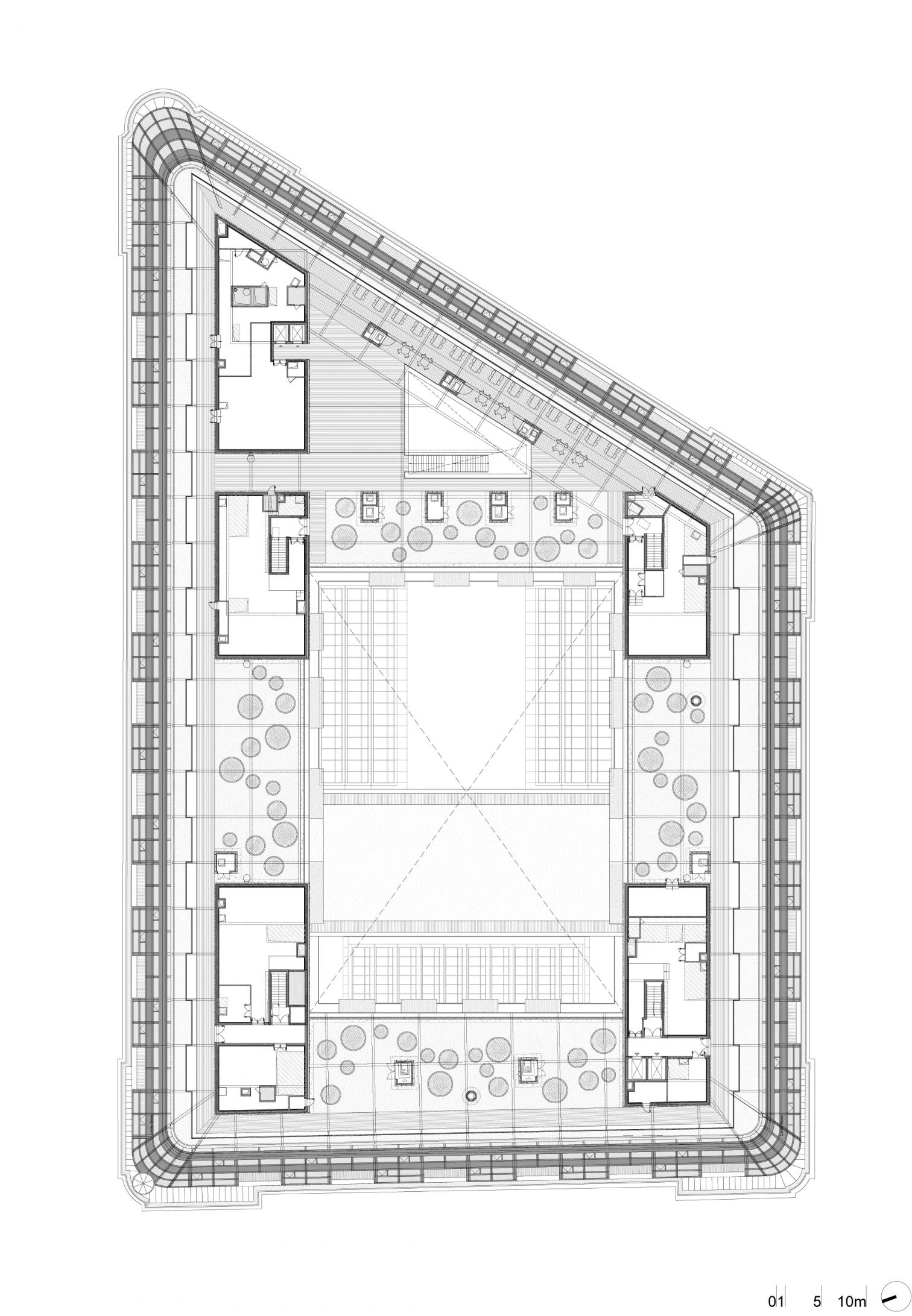
The planning frenzy that Baron Haussman breathed into the Paris of 1850 led to an ambitious succession of urbanistic operations of an imperial grandeur that continued even after the establishment of the Third Republic twenty years later. It was in this spirit that the central post office needed a building fit for a state institution and also deserving of its location at the very heart of the first arrondissement. The project was assigned to Julien Guadet, a pupil of Labrouste and a famous theoretician and professor who knew to combine the solemnity of its facades with a rational, almost industrial interior, a reflection of the efficient mail infrastructure of a modern nation.
An extensive renovation which has taken four years to execute has revamped the hôtel des Postes to accommodate mixed uses in addition to the historic postal service, bringing back the original floors of the edifice and upgrading the ornamented 19th-century frame of metal casting, which in turn is reinforced with a second structural layer for the loads of the new uses. Large glass surfaces envelop the central court and interact with the new skylights and the newly replaced joineries of the exterior walls in producing a play of lights and transparencies, in the process reinforcing the hindrance-free character of the ‘versatile building’ intended by Guadet.










