Viviendas y locales comerciales
Joan PascualEn el distrito de Nou Barris, al norte de Barcelona, el Ayuntamiento está aplicando una serie de medidas —parques, equipamientos, vivienda pública— encaminadas a corregir sus deficiencias dotacionales, comunes a todos los polígonos promovidos entre los años cincuenta y setenta, e incrementar su calidad urbana. En la zona de acceso desde la ronda de Dalt y alineado con el paseo de Valldaura, principal arteria del barrio, se levanta un nuevo edificio residencial, precedido por torres de quince plantas que, en grupos de tres en cada tramo de calle, reflejan el urbanismo de su época.


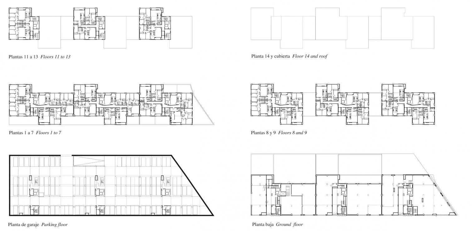
Elevado sobre un zócalo que mantiene la secuencia visual del paseo, este híbrido entre bloque y torre se escalona tanto en planta como en altura para suavizar su imagen y optimizar los espacios de sus 160 viviendas.


El planeamiento fijaba un volumen de 106 metros de longitud y diez plantas, que daba lugar a una organización de núcleos con cuatro viviendas por rellano, iluminadas por estrechos patios, en realidad chimeneas de ventilación. Como alternativa a estos parámetros y con la mirada puesta en los tríos de torres del paseo, la volumetría se construye con un escalonado de cuerpos de alturas variables, de ocho, once y quince pisos, y desplazados en planta, unidos por un zócalo comercial que garantiza la continuidad de la secuencia visual de la calle. La configuración final disfruta de los beneficios de dos tipologías en principio contrapuestas: el bloque lineal y la torre. Siguiendo una normativa estricta para el diseño de los núcleos de comunicación —derivada de las quince alturas—, las 160 unidades de habitación se organizan con tres cajas de escaleras, que dan acceso a seis de ellas en cada planta.

Las viviendas ofrecen múltiples posibilidades (cuatro, tres, dos dormitorios y dúplex), con la cocina-comedor comunicada siempre con el estar y los cuartos húmedos agrupados en la medida de lo posible. El desplazamiento de los dúplex permite en la fachada un juego compositivo a doble escala que quiebra su monotonía. Para hacer compatibles el uso residencial con el comercial o los aparcamientos, se ha optado por una estructura pautada por una trama con luces medias de 5,5 x 5,5 metros. Los tres núcleos verticales, formados por pantallas de hormigón armado en forma de U, refuerzan el diseño actuando como elementos de rigidización.

El doble relieve de planta y volumen se acentúa con un cerramiento que combina paneles prefabricados de hormigón armado con fibra de vidrio y bandas aluminio minionda. Los grandes huecos que albergan las terrazas se desdoblan a su vez en paños tratados con tonos cálidos: madera barnizada en los cielos rasos y estuco de color ocre en los paramentos. Los tendederos se esconden detrás de lamas metálicas orientables, visibles por delante del peto de vidrio transparente de los balcones.

Cliente Client
REGESA
Arquitecto Architect
Joan Pascual Argenté
Colaboradores Collaborators
Rosa María Vila, Ramón Ausió, Cristóbal Fernández, Esteve Puigdengolas, Salvador Mora (arquitectos architects); Jordi Bravo (jefe de obra site supervisor); Francesc García, Xavier Humet (aparejadores quantity surveyors)
Consultores Consultants
Lluís Duart (instalaciones mechanical engineering); STATIC, G. Rodríguez
(estructura structure); Abel Salmerón, Carmen Contreras (fachada facade)
Contratista Contractor
Construcciones PAI
Fotos Photos
Alejo Bagué