Viviendas sociales junto a la SE 30, Sevilla
Nieto Sobejano Arquitectos- Tipo Colectiva Prefabricación Vivienda
- Material Hormigón
- Fecha 2001
- Ciudad Sevilla
- País España
- Fotografía Luis Asín Juan de la Cruz Megías
- Marca Dragados
Lejos del tejido denso del centro histórico hispalense —donde las calles tortuosas y los patios escondidos siguen fascinando a propios y extraños—, la ciudad se desborda en un mosaico de barriadas. A pesar del desarrollo de las infraestructuras que trajo consigo la Expo 92, esta otra Sevilla se caracteriza aún por lo escaso de sus equipamientos. En uno de los terrenos intersticiales que dejó el crecimiento descontrolado de los años sesenta y setenta, una parcela triangular entre barrios marginales reconoce su límite con la SE-30 como frontera y hace de la proximidad a la autovía de circunvalación su razón de ser.


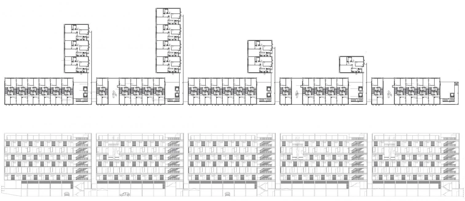
Cinco bloques en L de distinta longitud se adaptan al contorno triangular de la parcela, alineándose con el límite paralelo a la autovía para proteger los patios abiertos en la parte posterior.
Adaptándose al contorno oblicuo del solar, una sucesión de cinco bloques en L alza una muralla frente al ruido del tráfico, celebrando con una fachada de grandes huecos la escala fugaz asociada al movimiento del automóvil. La tipología elegida de distribución por galería permite dar acceso a diez viviendas por planta desde un sólo núcleo de escaleras y ascensores, situado en la esquina donde confluyen los dos flancos de cada edificio. De esta manera, un total de 174 viviendas se reparten entre las seis plantas levantadas sobre el zócalo dedicado a aparcamiento. Además de sesenta apartamentos convencionales en un solo nivel, la tipología dominante es el dúplex de tres dormitorios, con su acceso situado en niveles alternos. De esta manera, los pisos del nivel superior comparten con los del nivel inferior la planta de dormitorios. En todos ellos los dormitorios y el resto de las dependencias principales se abren a los patios orientados al sur, cuyo suelo, cubierto de arena de albero, refleja una luz dorada en las estancias. Las cocinas, los baños y los tendederos se agrupan en cambio a lo largo de las galerías de acceso.

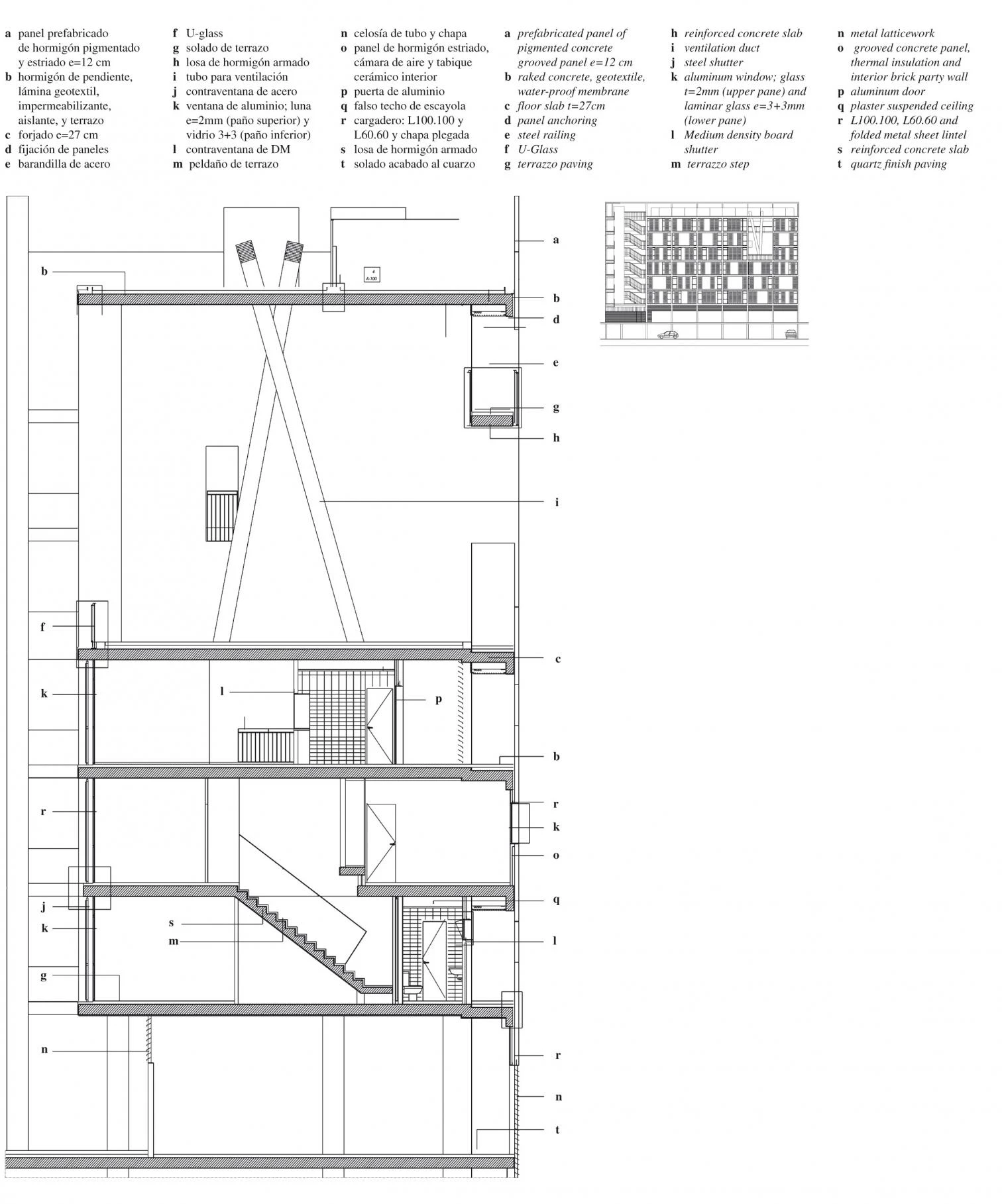
Con el hormigón como material fundamental, la construcción de los cinco bloques exhibe su voluntad defensiva frente al ruido del tráfico, al tiempo que hace explícita la organización de la planta. Así, los planos exteriores del diedro básico protegen las galerías de acceso frente al tráfico de la autopista formando una pantalla de paneles encofrados con chapa ondulada y tintados en masa con óxidos de hierro, que le confieren una textura rugosa y parda. Por contraste, las fachadas hacia los patios correspondientes a la crujía de viviendas propiamente dicha son una envolvente de piezas prefabricadas de hormigón gris, que alternan con huecos de suelo a techo. Estas rasgaduras verticales albergan la ventana en el tercio central entre dos fijos de vidrio; el orden azaroso de sus contraventanas confiere a los patios un carácter más informal y doméstico.
Pasillos de acceso y dormitorios se esconden tras una composición esquemática de grandes huecos de formas simples, que responde en las fachadas exteriores a la percepción veloz desde la autovía de circunvalación.



Las estancias se asoman al patio de cada bloque a través de unas fachadas que alternan panelesprefabricados de hormigón gris con huecos verticales de vidrio y contraventanas de acero.

Cliente Client
Empresa Pública del Suelo de Andalucía
Arquitectos Architects
Fuensanta Nieto, Enrique Sobejano
Colaboradores Collaborators
Carlos Ballesteros, Mauro Herrero, Juan Carlos Redondo; Miguel Mesas, Luis Rodríguez (aparejadores quantity surveyors)
Consultores Consultants
Stufive, Salvador Villanúa, Alberto Martínez Calzón (estructura structure); Geasyt, Gustavo Álvarez (instalaciones mechanical engineering)
Contratista Contractor
Bonanza 2 (prefabricados pre-cast concrete); Dragados Obras y Proyectos
Fotos Photos
Luis Asín, Juan de la Cruz Megías