Centro de Creación Contemporánea de Andalucía C3A, Córdoba
Nieto Sobejano Arquitectos- Tipo Cultura / Ocio Museo
- Material Hormigón
- Fecha 2005 - 2013
- Ciudad Córdoba
- País España
- Fotografía Fernando Alda Roland Halbe
- Marca Úrculo Ingenieros Arkilum
Desconfiando de la supuesta eficacia y flexibilidad del contenedor neutro y universal adoptado tan comúnmente hoy en día, imaginamos un edificio estrechamente vinculado a un lugar y a una lejana memoria, en el que cada espacio se configura individualmente, a un tiempo que es susceptible de transformarse y expandirse en secuencias de diferentes dimensiones, usos y cualidades espaciales. Siempre nos ha admirado la sencillez de las ocultas leyes geométricas por medio de las que aquellos artistas, artesanos y alarifes de un remoto pasado cordobés eran capaces de generar el espacio múltiple e isótropo de la Mezquita, el complejo facetado de bóvedas y mocárabes, las permutaciones de los motivos ornamentales de celosías, pavimentos y atauriques, o bien las reglas y ritmos narrativos implícitos en los poemas y cuentos de la tradición islámica.
Concebido como un lugar de cruce y encuentro, el nuevo edificio pretende ser un espacio común donde exponer e intercambiar ideas, ver una instalación, acceder a exposiciones, visitar el café, o asomarse al río Guadalquivir.
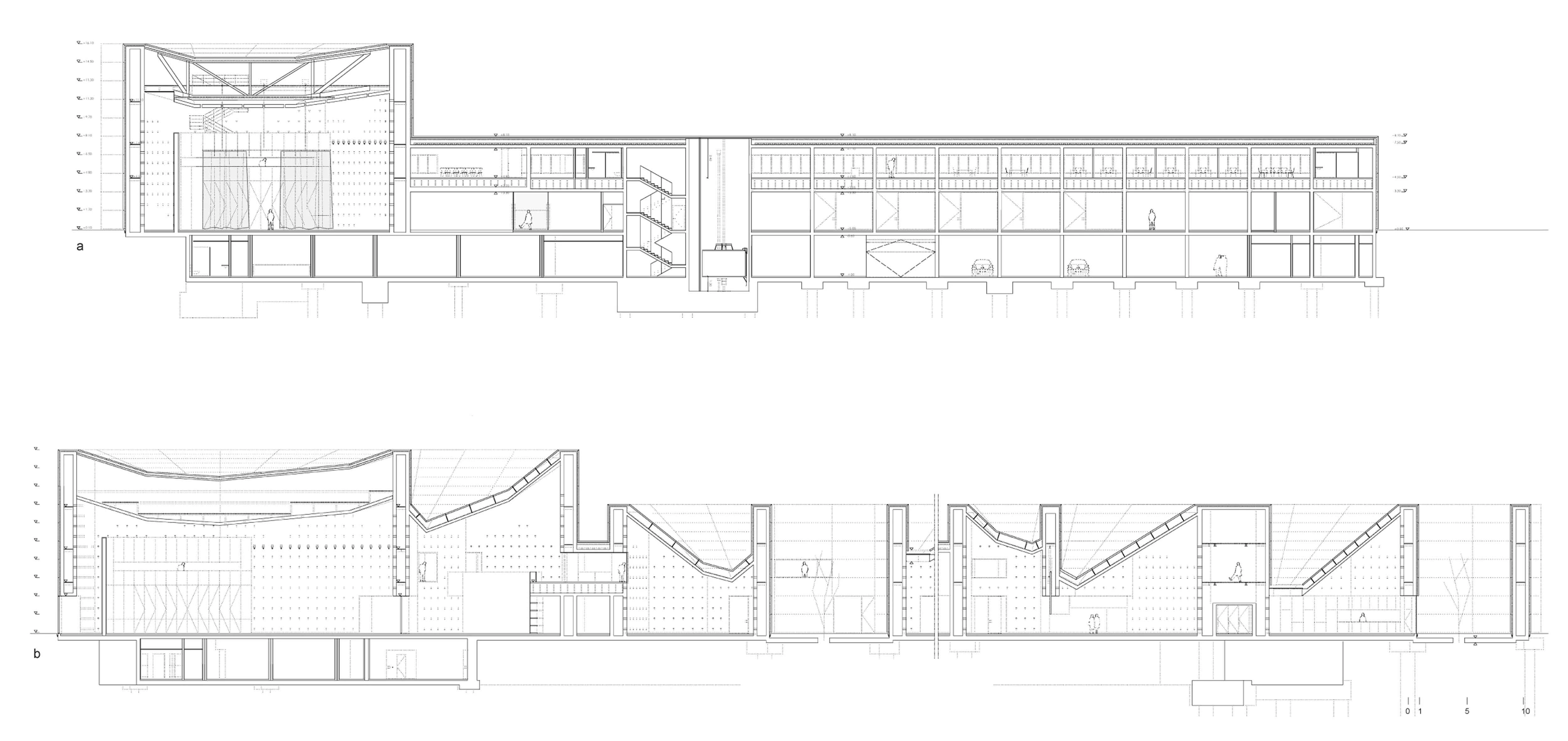
Al igual que aquellas estructuras literarias que incluían un relato dentro de otro, dentro de otro —una historia sin fin—, concebimos el proyecto a partir de un sistema, una ley generada por un patrón geométrico autosimilar, originado en una forma hexagonal, que contiene a su vez tres tipos diferentes de salas, de 150, 90, y 60 metros cuadrados. Como un juego combinatorio, las permutaciones de estos tres recintos generan secuencias de distintas salas que eventualmente pueden llegar a configurar un único espacio de exposición. Los talleres de artistas en planta baja y los laboratorios en planta superior, se ubican en contigüidad con las salas expositivas, hasta el punto que ni siquiera existe entre ellos una estricta diferenciación: en el taller también es posible exponer mientras que las salas podrán utilizarse como espacios de producción artística. El salón de actos —la caja negra— se concibe como un espacio escénico apto para representaciones teatrales, conferencias, proyecciones, o bien como un recinto singular para exposiciones audiovisuales.
La fachada al río es la verdadera máscara protagonista del edificio hacia el exterior. Está concebida como una pantalla perforada por huecos poligonales tras los que se alojan lámparas monocromáticas LED.
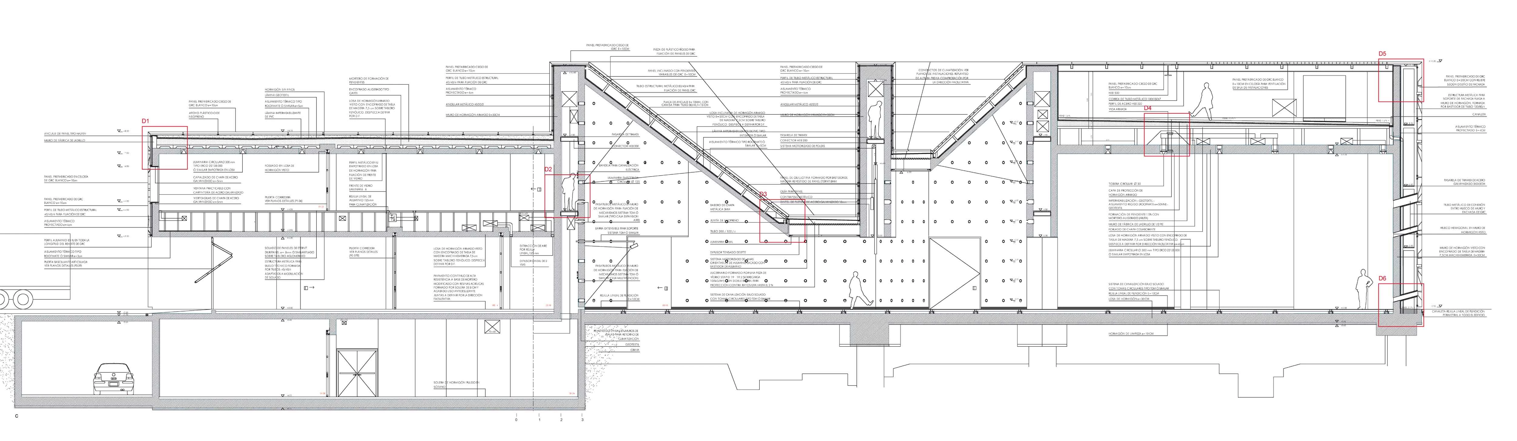
Los materiales contribuyen a sugerir el carácter de factoría del arte que impregna el proyecto. En el interior, muros y losas desnudos de hormigón y solados continuos establecen una estructura espacial susceptible de ser transformada individualmente por medio de diferentes intervenciones. Una red de infraestructuras eléctricas, digitales, de audio e iluminación facilitan la posibilidad de acceder a múltiples tomas y conexiones en todo lugar. Al exterior el edificio se expresa por medio de un único material: paneles prefabricados de hormigón con fibra de vidrio —GRC— que a un tiempo revisten fachadas opacas y perforadas, o bien conforman las cubiertas planas o con pendientes variables de las salas.
La fachada Comunicativa Mediática se construye a partir de 12 tipos de paneles prefabricados de GRC blanco, perforados según 16 geometrías distintas de huecos, tras los que se alojan lámparas monocromáticas tipo LED.
El proyecto se genera a partir de un patrón geométrico hexagonal que define tres tipos de salas —de 150, 90 y 60 metros cuadrados—, unidades combinables que posibilitan distintas opciones expositivas.













Cliente Client
Junta de Andalucía. Consejería de Cultura
Arquitectos Architects
Fuensanta Nieto, Enrique Sobejano
Colaboradores Collaborators
Vanesa Manrique (arquitecto de proyecto project architect); Sebastián Sasse, Beat Steuri, Carlos Ballesteros, Mauro Herrero, Bart de Beer, Alexandra Sobral, Juan Carlos Redondo, Rocío Domínguez, Nik Wenzke, Gilta Koch, Jesús Gijón (equipo team); Fuensanta Nieto, Enrique Sobejano (dirección de obra site supervision); Miguel Mesas Izquierdo (aparejador quantity surveyor); Nieto Sobejano Arquitectos, Juan de Dios Hernández, Jesús Rey (maquetas models)
Consultores Consultants
NB35, Alberto López (estructura structure); R. Úrculo Ingenieros Consultores (instalaciones mechanical engineering); 3i Ingeniería Industrial (protección contra incendios fire prevention systems); Ignacio Valero, Arkilum (iluminación illumination)
Fachada mediática Media Facade
Nieto Sobejano Arquitectos en colaboración con Realities: United
Contratista Contractor
FCC
Fotos Photos
Fernando Alda, Roland Halbe