67 Viviendas sociales en Carabanchel, Madrid
Aranguren + Gallegos Arquitectos- Tipo Colectiva Prefabricación Vivienda
- Material Aluminio
- Fecha 2003
- Ciudad Madrid
- País España
- Fotografía Eduardo Sánchez
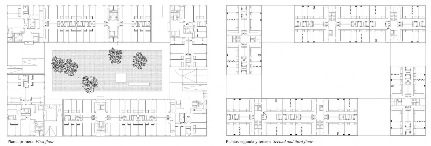
En el ensanche sur de Carabanchel, un entorno próximo a la M-40 donde las calles, en proceso de consolidación, se identifican todavía con números, este bloque de viviendas sociales emula el paso del tren —así como su condición de objeto sencillo en su función (rodar) y complejo en sus fines (resistencia, estanqueidad y confort)— para erigirse con una imagen singular. Cuatro volúmenes en planta baja y otros cuatro en las dos superiores, horadados por hileras de ventanas, se deslizan entre sí alineados en los bordes de la parcela. El desplazamiento genera cuatro entradas al espacio interior y la descomposición de la manzana en bloques, sugiriendo el movimiento de las piezas.


Las piezas se deslizan por la línea exterior de la manzana, desintegrando el bloque y creando un patio de escala doméstica. Los paneles de hormigón y las contraventanas de aluminio le confieren una imagen a la vez singular y sobria.

Un sistema de construcción sencillo, que adopta a modo de esqueleto y como elementos fijos las cocinas y los baños, genera una serie de unidades de habitación cuyo interior varía en función de las necesidades cotidianas. Durante el día, en el periodo de máxima actividad, las paredes se recogen y las camas se ocultan en nichos situados bajo los armarios y los pasillos de la espina dorsal: trabajo, relax, juego, gimnasia o fiesta: todo es posible con esta disposición. Por la noche, el espacio se vuelve a compartimentar y surgen habitaciones y camas. Con tal fin, el pasillo se eleva para guardar bajo su paso los elementos móviles. El grado de continuidad entre estancias justifica el hecho de que la vivienda no sea cruzada y se abra a una sola fachada, que disfruta de un sistema de ventanas corridas en toda su longitud. Un núcleo de ascensores y escaleras da servicio a cada grupo de cuatro unidades, optimizando la relación entre la superficie de las viviendas y la de los espacios comunes. La cocina es siempre amplia y se puede conectar con la sala de estar, además de contar con un tendedero cerrado por donde ventilar. En la planta inferior del bloque, esta misma disposición de vivienda en variantes de dos, tres o cuatro dormitorios se construye sin elevar el pasillo y con tabiques fijos.


Viviendas de dos, tres y cuatro dormitorios se suceden a ambos lados de la crujía con una sola orientación. La movilidad de los paneles permite una flexibilidad de uso que responde a la diversidad de beneficiarios de VPO.

Paneles prefabricados de hormigón, elegidos por su facilidad de montaje, dan forma al edificio, reduciendo los costes de construcción y acelerando considerablemente los plazos de ejecución. Los huecos vienen definidos por dos bandas contiguas de ventanas de 60 centímetros de altura y una anchura de dos metros por módulo, repetido en toda la longitud de cada frente. Estas bandas incorporan un sistema de contraventanas deslizantes con paneles de aluminio de coste reducido, para permitir que unas se muevan horizontalmente y otras en vertical: un elemento funcional más de este proyecto deudor de las máquinas de habitar corbuserianas.




Cliente Client
Empresa Municipal de la Vivienda, Madrid
Arquitectos Architects
María José Aranguren López, José González Gallegos
Colaboradores Collaborators
P. Aranguren, L. Burriel, S. Díez,P. Fernández, M. Fresno, I. Gonzalo,M. Lassan, J. A. Rodríguez,M. Sorribes, J. A. Tallón
Consultores Consultants
Ceider (estructura structure); Geasyt (instalaciones mechanical engineering)
Contratista Contractor
Begar
Fotos Photos
Eduardo Sánchez