Conjunto residencial en la M-40, Madrid
Aranguren + Gallegos Arquitectos Enrique Herrada Marta Maíz- Tipo Vivienda Colectiva
- Material Hormigón Madera
- Fecha 1996 - 1999
- Ciudad Madrid
- País España
- Fotografía Eduardo Sánchez Ángel Baltanás
Como los anillos de crecimiento de un árbol, las vías de circunvalación de Madrid registran los cambios acontecidos en la arquitectura residencial de la capital en su expansión de las últimas décadas. Si la M-30 fue el escenario elegido por las primeras administraciones municipales de la democracia para desarrollar su política de vivienda, la M-40 trata de hilar las iniciativas más recientes. En el más joven de estos cinturones —ya a diez kilómetros del centro norte— cinco bloques de tres alturas miran la silueta de la ciudad como algo ajeno. Transversalmente a la carretera, estos volúmenes definen su posición de la forma en que lo hacen las grandes estructuras publicitarias características de toda vía rápida, con una cara tersa que se enfrenta al ruido y al tráfico y otra fragmentada, abierta a la luz del sur y al paisaje.



Instalados como grandes estructuras publicitarias junto a la autovía, los cinco bloques se definen a partir de una cara tersa que agrupa los servicios y un frente desmembrado en terrazas que amplían los dormitorios y salones.

Un total de 76 viviendas ocupan los cinco bloques que, con una vocación decididamente horizontal, ofrecen distribuciones y tamaños distintos en cada nivel. Los apartamentos a ras del suelo cuentan con acceso directo desde el garaje, así como con una zona de servicio en el semisótano que se abre a un patio inglés. Los pisos de tres dormitorios —en un solo nivel— ocupan la primera planta, mientras unos dúplex rematan el edificio formando un ático. Como denominador común todas las viviendas tienen al norte una suerte de espina dorsal —formada por las cocinas, los tendederos y los aseos— que protege el espacio vividero de los vientos fríos del norte y del ruido de la autopista, y un frente sur desmembrado en terrazas ajardinadas que—mediante petos de hormigón— adquieren el carácter de estancias al aire libre. El arbolado de la parcela y el contorno sinuoso de las colinas lejanas se incorporan así al espacio doméstico, integrándose con la arquitectura en un mismo gesto.


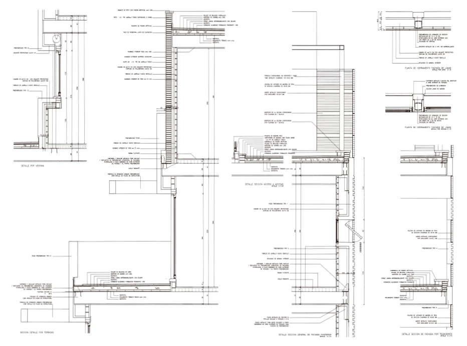
Los prefabricados de hormigón y las lamas de teca definen los edificios a partir del módulo de 5,6 metros que rige el conjunto.


Desde los materiales y la construcción se insiste en esta doble definición de un anverso y un re-verso; el frente liso y duro de servicios se cierra con paneles prefabricados de hormigón blanco en cuya modulación se inscriben a intervalos regulares unas escuetas carpinterías de madera. El relieve superficial que marca estos paneles reproduce el ancho de las tablas de teca que recubren las partes «blandas» del edificio, como la celosía del ático o las bandas horizontales —perforadas por grandes ventanales acristalados— que dominan el frente de terrazas. Un módulo estricto de 5,60 metros permite edificar con economía a partir de un número reducido de piezas, pero reaccionando ante las condiciones contradictorias del entorno; la cara y la cruz de un solar ajardinado situado junto a la autovía.

Cliente Client
Sky Line, Gestión Equipo 10, Cryllon
Arquitectos Architects
María José Aranguren, José González Gallegos, Enrique Herrada, Marta Maíz
Colaboradores Collaborators
S. Casal, V. Díez, A. Esteban, J. González, I. Gonzalo, M. Lassan, J. Oliva, R. Palacios, J. L. Sánchez; José Neira (aparejador quantity surveyor); Gonzalo Feltrer (instalaciones mechanical engineering); Jesús Chomon(estructura structure)
Contratista Contractor
Adra
Fotos Photos
Eduardo Sánchez & Ángel Luis Baltanás