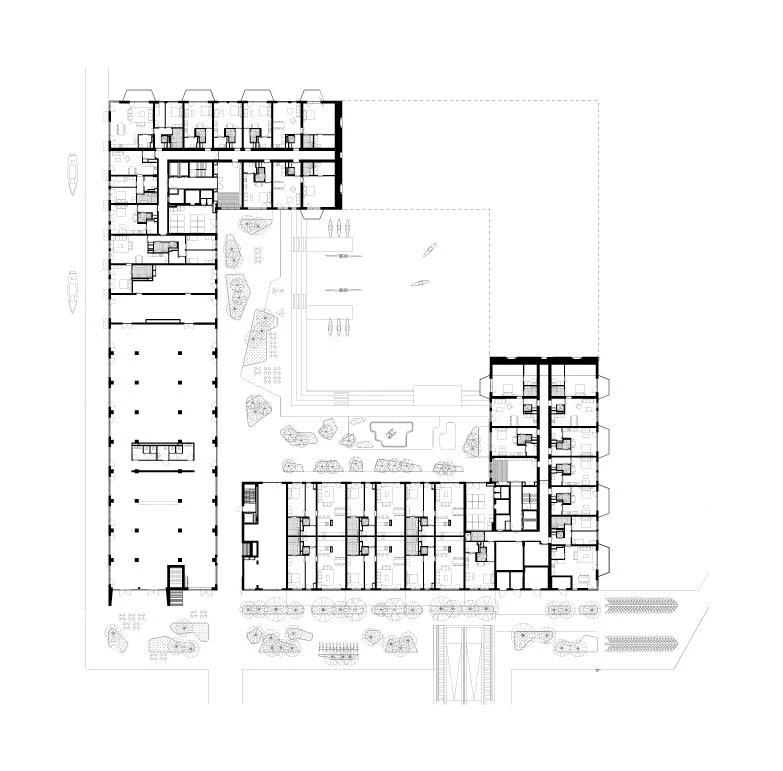
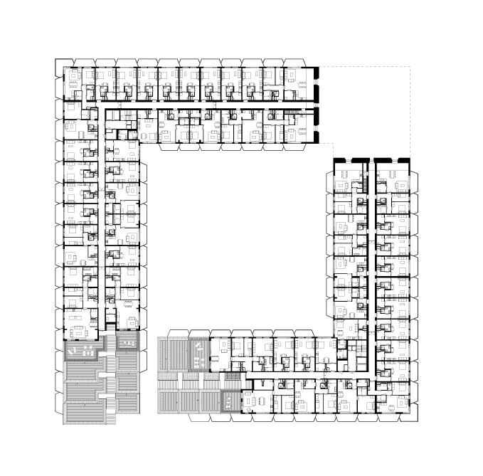
Viviendas Sluishuis en Ámsterdam
BIG Bjarke Ingels Group Barcode Architects- Tipo Vivienda
- Material Aluminio Metal
- Fecha 2022
- Ciudad Ámsterdam
- País Países Bajos
- Fotografía Ossip van Duivenbode
Construido sobre una isla artificial en el lago IJ, en el distrito de IJburg en Ámsterdam, este bloque residencial es fruto de la colaboración entre la firma holandesa Barcode y el estudio danés BIG. Con 442 viviendas, el conjunto abraza un puerto interior al que los barcos acceden a través de un voladizo. Esta forma distintiva para crear un corte sobre el agua contrasta con la composición de los otros dos bloques que descienden para generar terrazas. El zócalo alberga un programa variado que incluye una escuela de vela, un centro de deportes acuáticos y un restaurante. Por encima de la planta baja, los volúmenes están revestidos de aluminio para reflejar el agua circundante, mientras la caída aterrazada presenta una piel de madera.















