Edificio residencial Dortheavej
BIG Bjarke Ingels Group Bjarke Ingels- Tipo Colectiva Vivienda
- Fecha 2010 - 2018
- Ciudad Copenhague
- País Dinamarca
Lejerbo es una asociación danesa sin ánimo de lucro dedicada a la construcción de viviendas de alquiler asequibles para ciudadanos con un nivel de ingresos bajo. La organización cuenta con varias sedes por el país, que en conjunto gestionan unas 38.000 unidades residenciales. Dentro de su iniciativa ‘Homes for All’ (Hogares para Todos), en el año 2010 la oficina de Copenhague confió a BIG el diseño de un edificio de 6.800 m² de superficie en un barrio étnicamente diverso al noroeste de la ciudad. Uno de los requisitos fundamentales del encargo —situado en un área cuyo tejido urbano está caracterizado por talleres de reparación de automóviles y naves industriales construidas en su mayoría entre en las décadas de 1930 y 1950— era que liberara una gran parte del solar como espacio público. Asimismo, la edificación debía completar la manzana existente, organizada alrededor de un amplio vacío utilizado anteriormente como lugar de almacenamiento, y abrir caminos de paso que permitieran atravesarla.
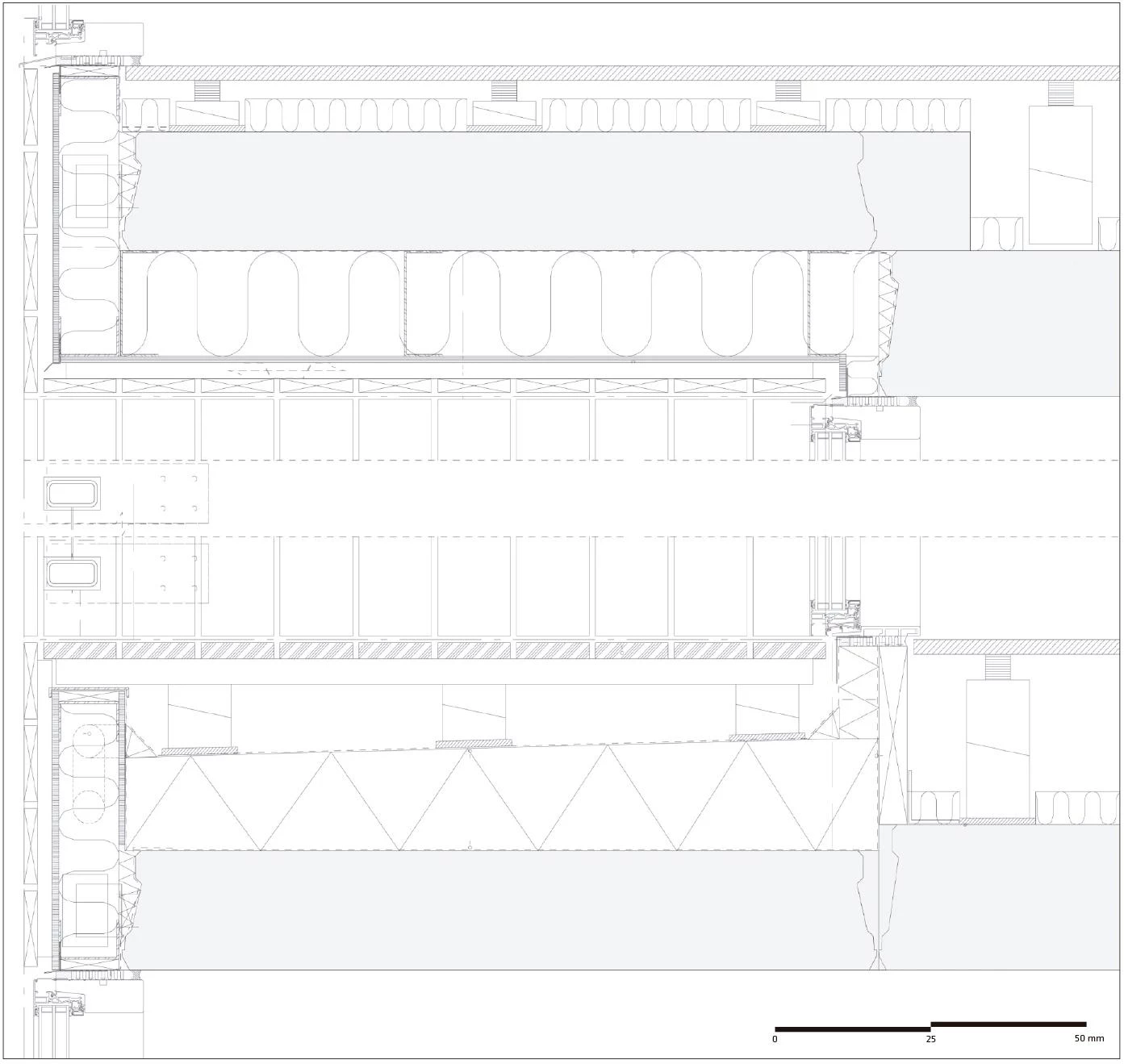
Frente al esquema convencional del bloque compacto, la propuesta se concibe como un ‘muro poroso’ formado por unidades apiladas según un modelo ajedrezado que se consigue mediante una estructura modular prefabricada. El volumen se conforma con un perfil sinuoso que se curva en su tramo medio para generar una plaza hacia la calle Dortheavej, conectada a través de tres huecos centrales en planta baja con un nuevo jardín en el interior de la manzana que los vecinos pueden utilizar para actividades recreativas. El conjunto se ordena en cinco plantas que igualan la altura de la construcción colindante en el borde este, pero en el extremo oeste se acaba disgregando mediante un escalonamiento progresivo que matiza la transición con el complejo vecino, un grupo heterogéneo de baja altura.
La residencia agrupa 66 apartamentos cuya superficie varía entre los 60 y los 115 m², y que se organizan en dos configuraciones que van alternándose consecutivamente. El diseño buscaba conseguir una calidad excepcional de los interiores, y a pesar de haberse realizado con un presupuesto muy ajustado, incluye características inusuales en un proyecto de vivienda social, como generosas alturas libres de 3,5 metros y grandes ventanales de suelo a techo que introducen abundante luz natural. Mientras que la fachada norte es lisa, la cara sur se perfora con pequeñas terrazas que añaden profundidad al alzado general, en el que se emplean largos listones de madera para dibujar un patrón geométrico que subraya con claridad la distribución variada y dinámica de los módulos.















Cliente Client
LEJERBO
Arquitectos Architects
BIG-Bjarke Ingels Group.
Socios responsables Partners in charge: Bjarke Ingels, Finn Nørkjær
Project Managers: Ole Elkjær-Larsen, Per Bo Madsen
Equipo de proyecto Project team: Alberte Danvig, Alejandro Mata Gonzales, Alina Tamosiunaite, Birgitte Villadsen, Cat Huang, Claudio Moretti, Dag Præstegaard, Daruisz Duong Vu Hong, David Zahle, Enea Michelesio, Esben Christoffersen, Ewelina Moszczynska, Frederik Lyng, Henrik Kania, Høgni Laksáfoss, Jakob Andreassen, Jonas Aarsø Larsen, Karl Aarso Larsen, Katerina Joannides, Krista Meskanen, Laura Wätte, Lucas Torres Aguero, Maciej Jakub Zawaszki, Maria Teresa Fernandez Rojo, Michael Schønemann Jensen, Mikkel Marcker Stubgaard, Nigel Jooren, Rasmus Pedersen, Robinson Neuville, Sergiu Calacean, Taylor McNally-Anderson, Terrence Chew, Tobias Hjortdal, Tobias Vallø Sørensen
Colaboradores Collaborators
MOE
Fotos Photos
Rasmus Hjortshøj, Aldo Amoretti