Viviendas en una vaquería, Santiago
Víctor López Cotelo- Tipo Colectiva Vivienda Industria
- Fecha 1998 - 2002
- Ciudad Santiago de Compostela
- País España
- Fotografía Lluís Casals
A escasos minutos de la plaza del Obradoiro, Santiago de Compostela se desmembra casi sin mediación en un rosario de construcciones dispersas que habla de las actividades agrícolas y ganaderas aún presentes en su entorno más inmediato. En esta línea de borde, donde el campo se entrelaza con la ciudad, una antigua vaquería junto al río Sarela fue elegida como punto de partida de una promoción residencial de 21 viviendas que disfruta de un lujo raro: la proximidad al centro urbano y el contacto directo con la naturaleza.


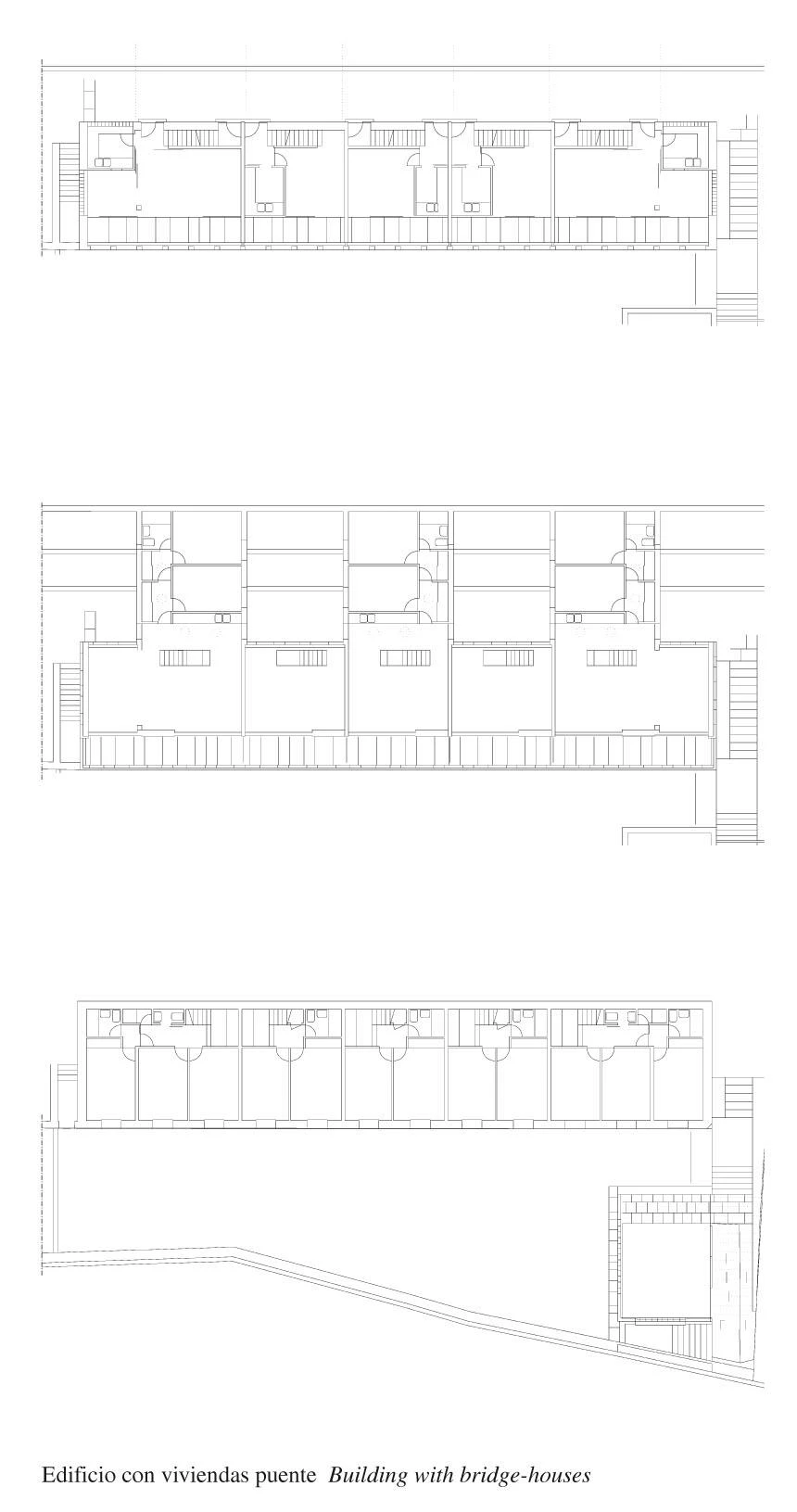
El proyecto valora los intersticios y subraya la relación entre arquitectura y topografía. En el centro de la actuación, el edificio de la vaquería (abajo) alberga cinco tríplex en su base y dos apartamentos bajo la mansarda.




Un muro de piedra paralelo al río materializa el límite del solar y pone de manifiesto el primer es-calón de una topografía escarpada que se retiene en bancales para facilitar su encuentro con la ribera. Con el fin de aprovechar la edificabilidad permitida, los tres edificios existentes —cuyas cubiertas, estructura y orden de huecos habían de conservarse— se completan con dos cuerpos nuevos, dando lugar a un conjunto de piezas sueltas que valora el intersticio y celebra la relación entre arquitectura y topografía con una secuencia perceptiva orquestada por los árboles, los muros de contención y los volúmenes construidos. El edificio de la antigua vaquería constituye el centro de gravedad del nuevo conjunto. Cinco tríplex ocupan su base, mientras dos viviendas en la última planta, disfrutan del espacio de gran altura presidido por las cerchas de madera pintada que sustentan el tejado. A ambos lados de esta pieza, dos nuevos volúmenes se posan sobre el terreno estableciendo relaciones precisas con su entorno próximo. El edificio situado al este de la parcela se asoma al río desde un muro de piedra perforado con grandes ventanales. Una galería acristalada en el nivel superior proporciona una sala de estar luminosa a las tres viviendas-puente que establecen un vínculo entre el volumen principal y la ladera. El cuerpo situado al oeste se retranquea de la alineación de la calle para abrir las viviendas al jardín habilitado sobre el garaje. Una franja de vidrio y madera identifica las zonas de día de cada apartamento, mientras un paño enfoscado asegura la intimidad de las estancias de descanso.



El proyecto subraya la coherencia entre estructura, construcción y forma que identifica las instalaciones agropecuarias de partida. A los muros de mampostería que retienen el terreno, se suman los sillares de piedra que forman los zócalos de las nuevas construcciones y los paramentos de madera pintada y vidrio de las galerías que permiten disfrutar en las zonas vivideras de las vistas de la ciudad y de la luz difusa característica de Galicia.



Cliente Client
Construcciones Otero Pombo
Arquitectos Architects
Víctor López Cotelo, Juan Manuel Vargas
Colaboradores Collaborators
Ana I. Torres, Jesús Placencia, Isabel Mira, Álvaro Guerrero, Pedro Morales, Juan Pinto (arquitectos architects); José Antonio Valdés, Rafael Pazos (aparejadores quantity surveyors); José Pascual Izquierdo (delineación delineación); Juan Uríbarri Sánchez-Marco (maqueta model)
Consultores Consultants
José María Fernández (estructura structure)
Contratista Contractor
Construcciones Otero Pombo; Aluminios Cortizo (carpintería metálica metalframework)
Fotos Photos
Lluís Casals