Escuela de Arquitectura de Granada
Víctor López Cotelo- Tipo Rehabilitación Educación Facultad
- Fecha 2015
- Ciudad Granada
- País España
- Fotografía Lluís Casals
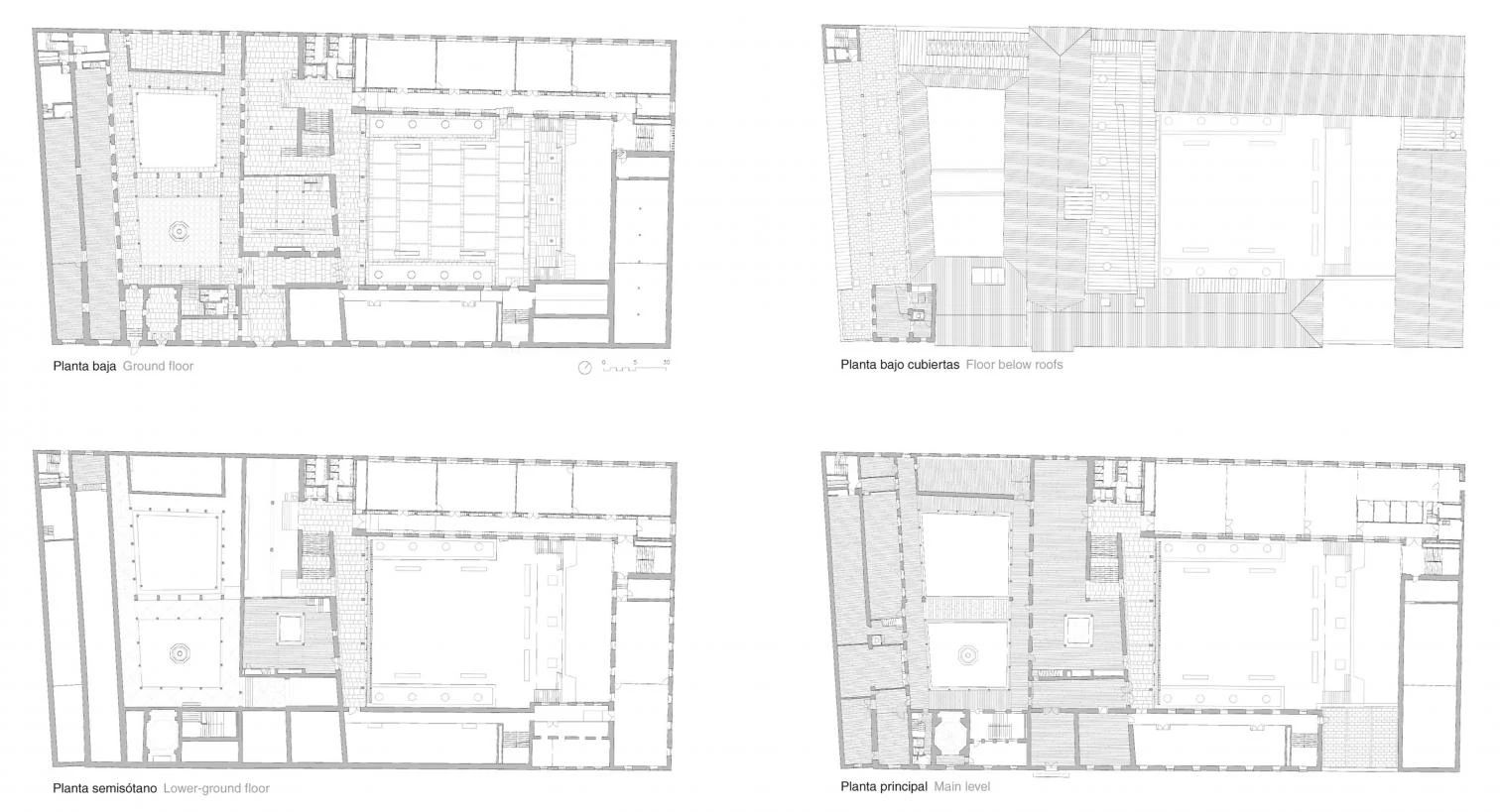
Situada en el barrio del Realejo, en el extremo sudeste del casco histórico de Granada, la nueva Escuela de Arquitectura se establece en un conjunto arquitectónico que en otros tiempos sirvió como Hospital Militar. Esta gran manzana, que quedó configurada a lo largo de un dilatado proceso de transformación urbana, sigue la tipología clásica de edificio monumental con una fachada principal que se vuelca hacia el espacio público y dos grandes patios interiores.

Este orden tipológico, tomado del modelo conventual de doble claustro con un cuerpo central que resuelve los accesos y la distribución, ha exigido el planteamiento de una articulación física que permitiese integrar los dos lados del conjunto —que se desarrollan en torno a los dos patios— tanto de manera horizontal como vertical. Para alcanzar esta nueva unidad en el proyecto, han sido necesarias diversas intervenciones relacionadas con la conservación histórica de la Casa del Almirante —parte fundamental del complejo—, la rehabilitación y reforma interior de varios de los cuerpos preexistentes y pequeñas demoliciones, además de las construcciones de obra nueva. Esta complejidad operativa que define el proyecto se debe en gran medida al maltrato que sufrió el edificio en los últimos años.


Dada la superposición de lenguajes del edificio, la rehabilitación sigue un doble criterio: reconocer el valor histórico y la materialidad de cada fase constructiva; y crear la unidad que requiere el programa docente.


La operación propone una restauración total del edificio, entendiendo esta restauración como un «restablecimiento a un estado de integridad que pudo no haber existido en un momento dado», como escribió Eugène Viollet-le-Duc. El hecho de darle una nueva vida como Escuela de Arquitectura no sólo le permite seguir existiendo y prestando un servicio a la comunidad, sino también convertirse en un elemento de referencia icónica y monumental en el contexto urbano del barrio histórico de Granada.

Organizado en torno a dos grandes patios (el segundo completamente nuevo), el edificio es fruto de un dilatado proceso de ampliaciones que incluyen una casa nazarí, un palacio renacentista y una capilla barroca.


Una nueva aula bajo rasante resuelve el desnivel existente, conectando los dos patios; se reconstruye la estructura interna de los pabellones que rodean el patio sur manteniendo los anchos muros y otros elementos emblemáticos.
El programa, adaptado a las necesidades funcionales de la Escuela, se ha ajustado a las particulares características espaciales, formales y constructivas del conjunto preexistente, encontrando así una adecuación y un equilibrio entre los viejos espacios a restaurar y las necesarias intervenciones de obra nueva. La obra es el resultado directo de esta relación entre las formas preexistentes y las nuevas, que se articulan mediante la función y se integran siguiendo criterios de construcción. De este modo, los elementos constructivos, el dimensionado de las estructuras y el tratamiento de la luz —en definitiva, la materialización de la idea del proyecto de la Escuela— se relacionan de igual a igual con las preexistencias, sin someterse al pasado pero sin imponerle a éste sus leyes de funcionamiento. Son precisamente estos elementos, desnudos y sin retórica, los que son capaces de hermanar las distintas épocas que, en definitiva, conducen al presente.








Cliente Client
Ministerio de Fomento, Universidad de Granada
Arquitecto Architect
Víctor López Cotelo con la colaboración de in collaboration with Daniel Zarza
Colaboradores Collaborators
Pedro Morales Falmouth, Juan Uribarri Sánchez-Marco (coordinación de la obra construction management);
Flora López-Cotelo, Isabel Mira Pueo, Rafael Medina Iglesias, Elena Lucio Bello, Francisco García Toribio (ejecución de obra construction); Juan Manuel Vargas Funes, Jesús de la Fuente Moreno, Francisco García Toribio, Alvaro Guerrero Aragoneses, Flora López-Cotelo, Rafael Medina Iglesias, Isabel Mira Pueo, Pedro Morales Falmouth, Jesús Placencia Porrero, Ana Torres Solana, Juan Uribarri Sánchez-Marco, Frank Furrer, César Leal (proyecto project)
Consultores Consultants
Kika Martín e Irene Orueta (proyecto de restauración restoration project); José Antonio Valdés Moreno (arquitecto técnico quantity surveyor); José María Fernández/Proyectos de Ingeniería y Arquitectura (cálculo estructuras structure calculation); JG Ingenieros (instalaciones mechanical engineering); Juan de Dios Hernández/Jesús Rey (maqueta model)
Contratista Contractor
UTE Arquitectura Granada: GUAMAR S.A., COVALCO Grupo Constructor S.L., Aluminios Cortizo (carpinterías de aluminio aluminum frames)
Superficie construida Floor area
13.785 m²
Presupuesto Budget
12.115.000 euros (PEM)
Fotos Photos
Lluís Casals