Transformación de un antiguo pajar en vivienda, Ojacastro
MAAV- Tipo Rehabilitación Vivienda Casa
- Material Madera
- Fecha 2020
- Ciudad Ojacastro (La Rioja)
- País España
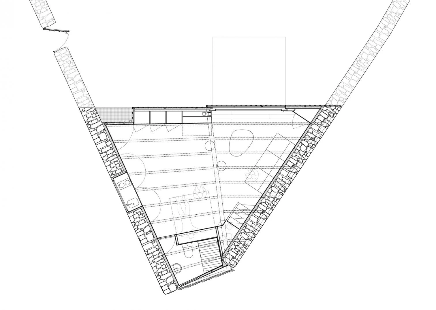
La firma MAAV, liderada por Guillermo Avanzini Alcibar (Bilbao, 1989) y Adrián Martínez Muñoz (Sevilla, 1989), ha sido la encargada de rehabilitar un almacén de aperos abandonado para convertirlo en una vivienda rural de Ojacastro. Con una superficie construida de 40 metros cuadrados y un presupuesto de ejecución material de 83.000 euros, la casa de madera está concebida como un mueble habitable que ocupa el hueco delimitado por los muros de piedra existentes. Un espacio único incorpora muebles plegables y una cama abatible, ocultando los elementos en las gruesas paredes como la cocina, los electrodomésticos o el espacio de almacenamiento. El entramado de madera de la cubierta, en muy mal estado, se sustituye por otro de madera laminada igualmente dispuesta en espina de pez.
La intervención consolida los muros de piedra existentes y conserva las tejas originales de la pequeña cabaña, manteniendo la morfología local en lugar de levantar un edificio de tres plantas ideado inicialmente el cual no respetaba la escala del pueblo riojano. La sensibilidad de los propietarios y la buena disposición del Ayuntamiento para permitir la actuación han frenado la degradación de este rincón al evitar la destrucción que habría supuesto la ejecución de aquel planeamiento.

Fotos cortesía de MAAV















Cliente Client
Rocío Avanzini, Germán Barbier
Arquitectos Architects
MAAV, Guillermo Avanzini Alcibar, Adrián Martínez Muñoz
Colaboradores Collaborates
Enrique Uyarra (Constructor Constructor), Victor M. Sánchez (Carpintería Carpenter)
Fotografía Photographs
Guillermo Avanzini Alcibar