Rehabilitación de la Masía `povera´, Santa Margarida de Montbui
Arquitectura-G- Tipo Casa Rehabilitación Vivienda
- Material Mortero
- Fecha 2015 - 2016
- Ciudad Santa Margarida de Montbui
- País España
- Fotografía Adrià Goula
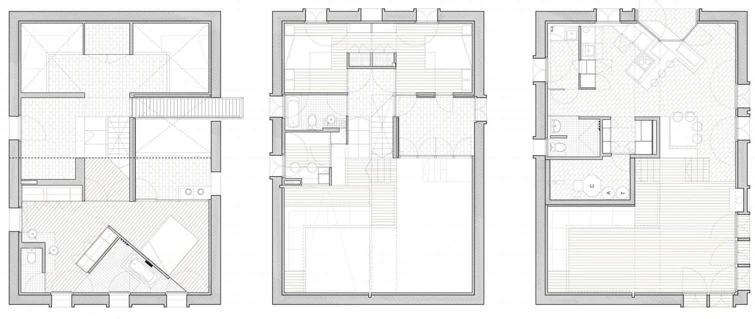
La rehabilitación de una pequeña construcción rural situada en Santa Margarida de Montbui (Barcelona) consistió en primer lugar en la intervención sobre la parcela, para crear un paisaje artificial que media entre la casa y el campo, y que se traduce en una serie de terrazas exteriores y una piscina.

La obligación de respetar la volumetría y la posición de los huecos de la construcción preexistente llevó a situar el programa en plataformas escalonadas que se organizan en torno a un núcleo central para liberar la fachada del edificio. Este núcleo central, donde se sitúan las escaleras e instalaciones, hace las veces de gran pilar portante que permite que los forjados metálicos salven luces más cortas, acentuándose así el contraste entre lo que soporta y es soportado.Tal contraste se refuerza a través de la materialidad de la casa: los elementos portantes son pesados y rugosos, casi groseros, mientras que las particiones y los elementos secundarios, resueltos con estructuras ligeras, son tersas y livianas. Un revoco de mortero en tonos terrosos da unidad a la fachada.
