Torre Energy Mansion, Shenzhen
BIG Bjarke Ingels Group Bjarke Ingels- Tipo Comercial / Oficina Sede / oficina
- Fecha 2003
- Ciudad Shenzhen
- País China
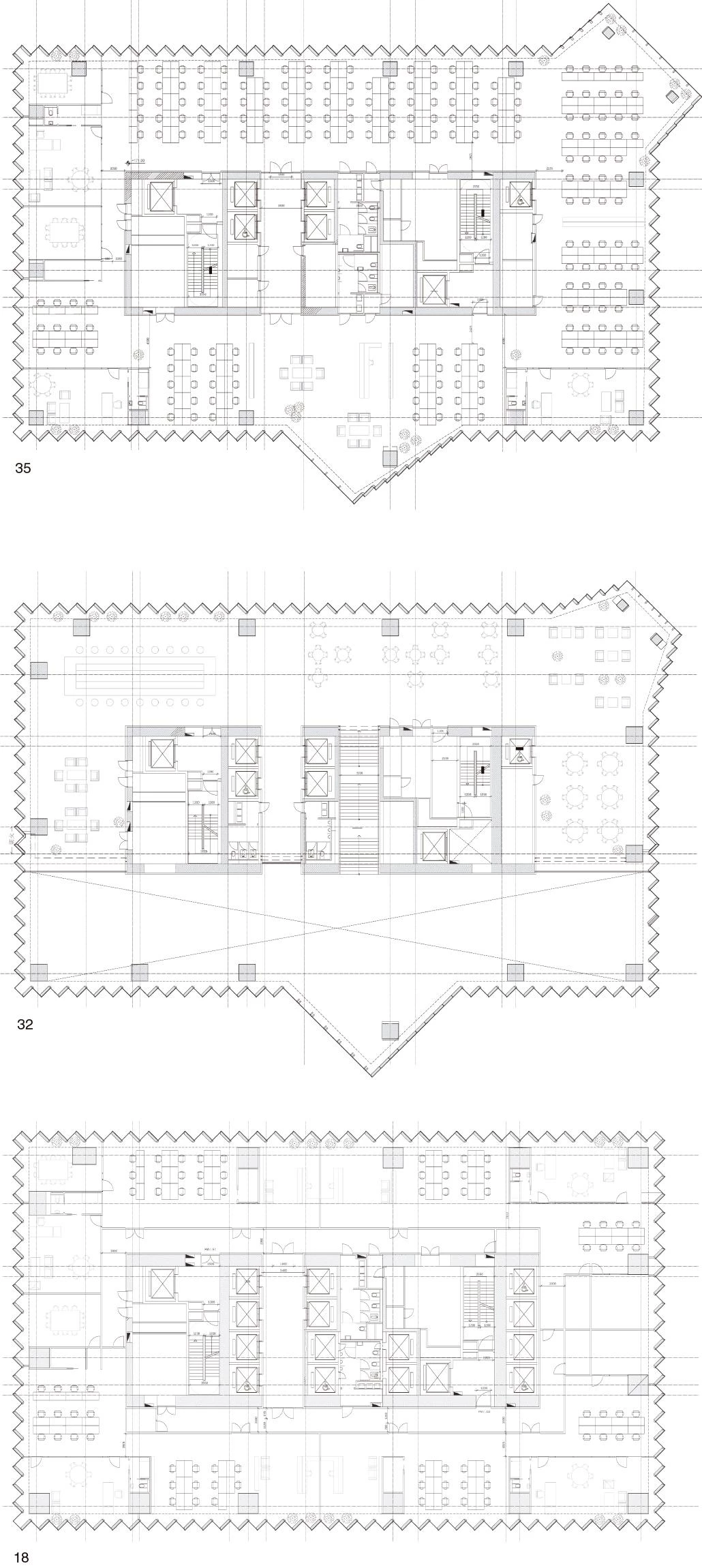
El clima tropical de Shenzhen exige un nuevo enfoque para el diseño de una torre de oficinas. El proyecto de la sede de Energy Mansion parte de la necesidad de crear espacios de trabajo confortables en ese clima concreto y, al mismo tiempo, reducir su consumo energético. El modelo del rascacielos moderno, con fachadas de vidrio, respondía a la construcción de una estructura económicamente eficiente, con espacios de trabajo flexibles, funcionales y bien iluminados. Sin embargo, los inconvenientes de este modelo, como la radiación producida por la exposición solar directa y el bajo nivel de aislamiento del muro cortina de vidrio, han conducido a un excesivo consumo de aire acondicionado e iluminación artificial, con importantes consecuencias ambientales. El proyecto asume un esquema de planta conocido, eficiente y contrastado, pero lo envuelve en una piel adaptada al clima local. Todos los esfuerzos de innovación para mejorar el rendimiento energético del edificio se concentran en la fachada. Ésta se pliega generando entre los huecos partes cerradas que aíslan, bloquean la luz directa, e integran en su cara exterior paneles solares. La combinación de estos elementos con el calentamiento solar pasivo reducirá el consumo de energía del edificio en un 60%.











Cliente Client
Shenzhen Energy Company
Arquitectos Architects
BIG-Bjarke Ingels Group
Socios responsables Partners in charge: Bjarke Ingels, Andreas Pedersen
Mánager de proyecto Project manager: Andre Schmidt
Arquitecto responsable Project architect: Martin Voelkle
Equipo de proyecto Project team: Brian Yang, Buster Christiansen, Dave Brown, Jan Magasanik, Joao Albuquerque, Mikkel Marker Stubgaard, Min Ter Lim, Takuja Hosokai, Nicklas Rasch, Alessio Zenaro, Armor Gutiérrez Rivas, Cecilia Ho, Cory Mattheis, Fred Zhou, Jelena Vucic, Philip Sima, Sofia Gaspar, Stanley Lung, Sun Ming Lee,Yijie Dang
Equipo de concurso Competition team: Cat Huang, Alex Cozma, Kuba Snopek, Fan Zhang, Flavien Menu
Consultores Consultants
ARUP: Andrew Luong (Mánager de proyecto project manager), Guan yao Zhu, Qi-Ming Kong, Gang Liu (estructura structure), Wen-Tao Zhu, Ivan Lam, Guo-Qing Yu, Yu-Lung Cheng (instalaciones MEP), Frederick Wong, Cloris Chen (sostenibilidad building sustainability), Bibo Shi, Rachel Yin, Gui-Lan Zhao (protección contra incendios fire engineer); FRONT: Marc Simmons, Phil Khalil, Stephanie Choi, Kyoung Hee Kim, Jonathan Enns (fachada building envelope); LICHTWERKE: Stefan Hoffmann (iluminación lighting); SADI: Lin Zhenhai, Wu Chao, Chen Jing (arquitecto local local architect)