Torre de telecomunicaciones, Cádiz
Guillermo Vázquez Consuegra- Tipo Torre
- Material Hormigón
- Fecha 1992
- Ciudad Cádiz
- País España
- Fotografía Duccio Malagamba


El conjunto del proyecto comprende una torre de telecomunicaciones y un edificio destinado a servicios telefónicos, situados sobre un solar con tres fachadas, de las cuales la principal es la que da al paseo marítimo. Tanto la distribución del edificio como su composición formal atienden a la presencia de la torre de antenas en su interior. Torre y edificio se interpenetran en las cotas que les son comunes, de manera que han de entenderse en este tramo como un solo organismo arquitectónico, del que no se independiza la torre, afirmando su neta autonomía formal, hasta una vez superada la cota de cubiertas del edificio. Este último se destina básicamente a oficinas para Telefónica, aunque incorpora las salas de equipamiento necesarias para el servicio de la torre de antenas.
La torre y el edificio de servicios se interpenetran en las cotas que les son comunes. Solo a partir de la cubierta del segundo se independiza la torre, afirmándose como un hito urbano.

Plano de situación

Alzado sur Alzado norte Alzado este Mirador de esquina

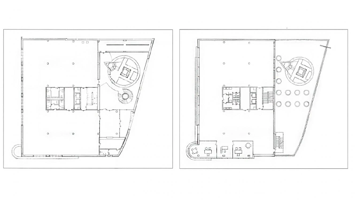
Planta baja Planta tipo

Secuencia de plantas de la torre
La fachada correspondiente al paseo marítimo, orientada básicamente al sur, presenta líneas horizontales de huecos en las plantas intermedias y grandes ventanas rectangulares entre las plantas baja y primera. En la última planta, y a modo de balcón orientado, la fachada se adelanta ligeramente hasta encontrar la pieza semicilíndrica del mirador de esquina. Comisas de hormigón rematan las líneas de huecos a la altura de los dinteles, a modo de parasoles. En el vértice se sitúa el mirador curvo, pieza acristalada que privilegia las vistas sobre la ciudad histórica. La fachada a la calle Santa María Soledad se presenta como un muro perforado homogéneamente por huecos iguales y más próximos a la escala domestica de dicha calle, solo interrumpidos por la apertura de la gran ventana situada frente al basamento de la torre y que permite percibir el arranque de esta desde el exterior.
En la fachada del frente marítimo, el mirador curvo que ocupa la esquina contribuye a equilibrar el protagonismo de la torre. El prisma recto adosado a su fuste le confiere cierta orientación.

La torre de enlace, con una altura de 114 metros, se erige como un hito en el paisaje urbano. El prisma recto de base triangular que, a modo de proa, se adosa al tronco de cono, dota a la torre de un carácter singular respecto a otras similares. Se trata de una torre orientada y esta cualidad le permite ofrecer una imagen cambiante de sí misma al ser observada desde distintas perspectivas.
Se ha prestado atención especial al diseño del remate del fuste de hormigón. Sobre este nivel apoya un cuerpo cilíndrico perforado constituido por ocho pilares de sección trapezoidal de doce metros de altura, atados en su cota superior por una corona circular y revestidos lateralmente por planchas metálicas de aleación de aluminio y magnesio. Esta pieza de remate de la torre resuelve con eficacia el transito del fuste de hormigón a la torre metálica con antenas, estableciendo un dialogo en el aire con la cúpula dorada de la catedral de Cádiz.
Un amplio espacio diáfano, del que arranca la escalera de caracol de la torre, realza la presencia de esta en el interior. El edificio se prolonga cuatro plantas por encima del cuerpo que aloja su parte inferior.



Cliente Client
Compañía Telefónica Nacional de España.
Arquitecto Architect
Guillermo Vázquez Consuegra.
Colaboradores Collaborators
R. Alario, S. Gantenbein, F. Pablo-Romero (arquitectos / architects); Marcos Vázquez Consuegra, Manuel Gómez (aparejadores / technical architects).
Consultores Consultants
Julio Martínez Calzón (estructuras / structures).
Contratista Contractor
Dragados (torre / tower); Cubiertas y Mzov (oficinas / offices).
Fotos Photos
Duccio Malagamba.