Centro de Creación de Empresas de la Universidad de Alicante
Guillermo Vázquez Consuegra- Tipo Universidad
- Material Hormigón
- Fecha 2024
- Ciudad Alicante
- País España
- Fotografía David Frutos
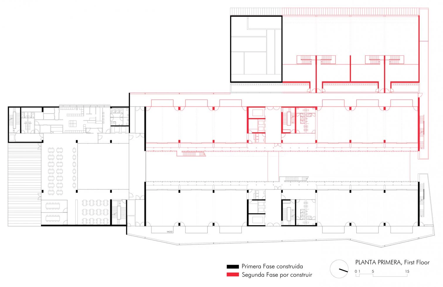
La primera fase de la construcción del Centro de Creación de Empresas de Alicante, equivalente a la mitad del edificio, ha sido completada. La segunda fase, sin fecha de inicio, permitirá la finalización y correcta comprensión del conjunto.
Con un gran voladizo plegado en la fachada principal, el Centro está situado en el Parque Científico de la Universidad de Alicante. El programa funcional contempla módulos con despachos-laboratorios para las empresas científicas y tecnológicas. Estos espacios flexibles están dotados de complejas instalaciones, que determinan la organización formal del edificio en forma de U. La conexión entre los brazos constituye el cuerpo principal que aloja las zonas comunes: el vestíbulo, el auditorio, la cafetería-restaurante y los locales de servicio correspondientes a los laboratorios de empresas. Los brazos contienen los laboratorios, la administración y las aulas de formación, acotando un largo y estrecho patio excavado y ajardinado, tras celosías de lamas angulares de aluminio.
Las galerías, además de espacios de tránsito, estancia y relación, constituyen un sistema pasivo de regulación térmica del edificio. La sucesión lineal de pequeños patios atraviesa todos los niveles, que junto a las lamas móviles situadas lateralmente en cada una de las plantas permiten controlar el acceso de aire del exterior.
En invierno, estas lamas permanecen cerradas herméticamente y las galerías con temperatura superior a la exterior actúan como colchón térmico, minimizando las pérdidas de calor del edificio. En verano, con la apertura de las lamas se produce ventilación por efecto chimenea al dejar pasar el aire caliente a través de los patios hasta disiparse por la cubierta. Por la noche, las lamas se abren automáticamente renovando el aire.


























