Wellness resort Ziedlejas en Sigulda
Open AD- Tipo Cultura / Ocio
- Material Acero cortén Metal
- Fecha 2020
- Ciudad Sigulda
- País Letonia
- Fotografía Alvis Rozenbergs
- Marca IKEA Hunter Douglas Architectural Laufen
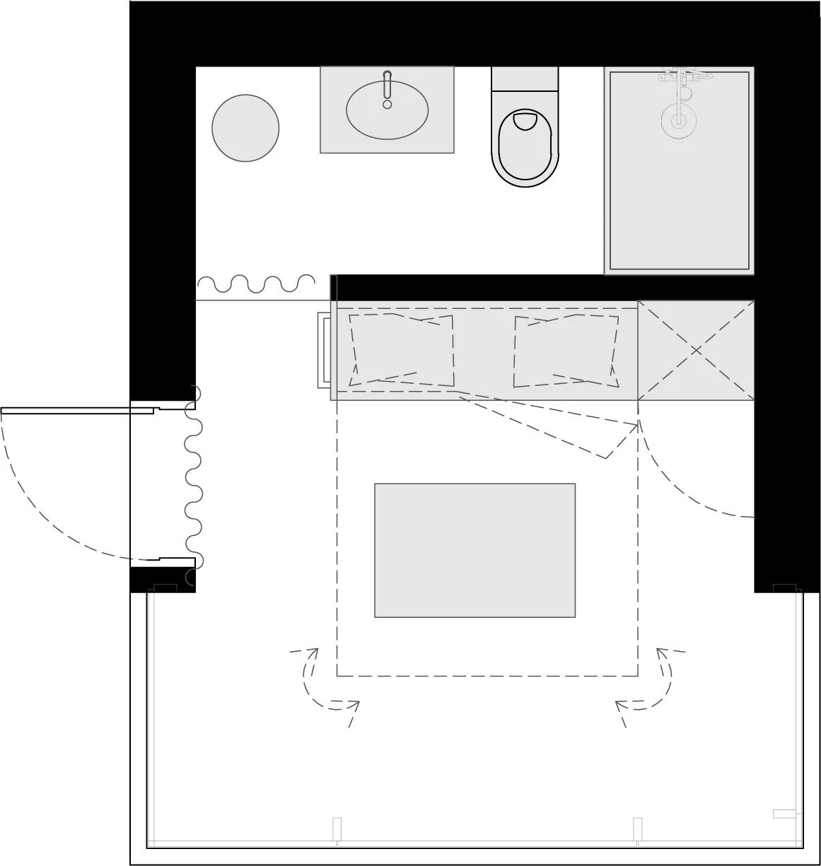
La firma de Riga Open AD, dirigida por la arquitecta Zane Tetere – Sulce, ha sido la encargada de construir el Ziedlejas Spa y Wellness Resort, en la ciudad letona de Sigulda, cerca del Parque Nacional de Gauja. El conjunto está compuesto por piezas dispersas que contienen alojamientos y saunas, unidos por caminos sinuosos. Las cabañas están revestidas con acero cortén y presentan fachadas vidriadas para disfrutar del paisaje circundante. La firma Open AD diseñó a medida los muebles, como las camas y las mesas plegables, y los cuartos de baño ocultos. El spa ha sido diseñado con reinterpretaciones contemporáneas de la sauna tradicional de origen local, entre ellas se encuentra una excavada con vistas a un estanque, otra construida con tablones de madera carbonizados y, por último, una sauna que contiene una piscina de inmersión.















