La Maison-en-Valise, Madrid
Pedro Pitarch- Tipo Reforma Vivienda
- Fecha 2024
- Ciudad Madrid
- País España
- Fotografía Imagen Subliminal (Miguel de Guzmán + Rocío R. Rivas)
(Descripción de Pedro Pitarch architectures & urbanisms)
Shine on you Crazy Diamond
LA MAISON-EN-VALISE / HOME IN A SUITCASE / HOGAR EN UNA MALETA
Un dispositivo arquitectónico para la crítica de la vida cotidiana
NOTA: Este artículo está escrito para ser leído en sincronía con la pista 1 (Shine on You Crazy Diamond 1-5) del álbum Wish You were Here de Pink Floyd (Londres, 1975).
Se han indicado los minutos que corresponden a cada fragmento como mera referencia temporal.
[00:01-08:58]
Remember when you were young, you shone like the sun.
Shine on you crazy diamond.
Son los objetos y no la arquitectura los que construyen la domesticidad contemporánea.
La distribución, la composición o la correlación entre pieza y función, condición inventada por la modernidad, han dejado de coordinar los esfuerzos que generan la esfera de lo doméstico.
En un estado pre-moderno de la domesticidad era el mobiliario el que generalmente definía los eventos domésticos que construían la idea de hogar, y no su división en piezas que, junto con la zonificación y especialización programática de las mismas, ha implantado durante más de un siglo una homogeneización planetaria de las rutinas de la vida cotidiana.
[08:59-09:20]
Now there's a look in your eyes, like black holes in the sky.
Shine on you crazy diamond.
La reinvención de las prácticas del día a día, heredadas, asumidas e impuestas, se antoja como una de las pocas formas de revolución social posibles en la era del post-capitalismo. El diseño de nuevos formatos arquitectónicos que planteen marcos contextuales, lugares de oportunidad, fuera de las restricciones de la domesticidad heredadas de la modernidad es crucial para la posible reinvención de la vida cotidiana. La pieza que aquí se inserta en una vivienda convencional pretende reorganizar su eventualidad doméstica en torno a un Dispositivo para la Crítica de la Vida Cotidiana, en la línea de lo apuntado por Henri Lefebvre.
[09:21-10:04]
You were caught on the crossfire of childhood and stardom,
Blown on the steel breeze.
Come on you target for faraway laughter,
Come on you stranger, you legend, you martyr, and shine!
La operación arquitectónica es puramente estratégica. Se plantea una abstracción tipológica de la planta de una vivienda convencional mediante la implantación de un elemento puramente geométrico que contiene todos los mecanismos, instalaciones y objetos necesarios para construir la esfera de lo doméstico. Un dispositivo arquitectónico que congrega, pliega y despliega eventos domésticos.
Lo doméstico queda emancipado de las restricciones de la distribución espacial, de las restricciones de la sofisticación material o incluso de las restricciones de las costumbres y hábitos heredados.
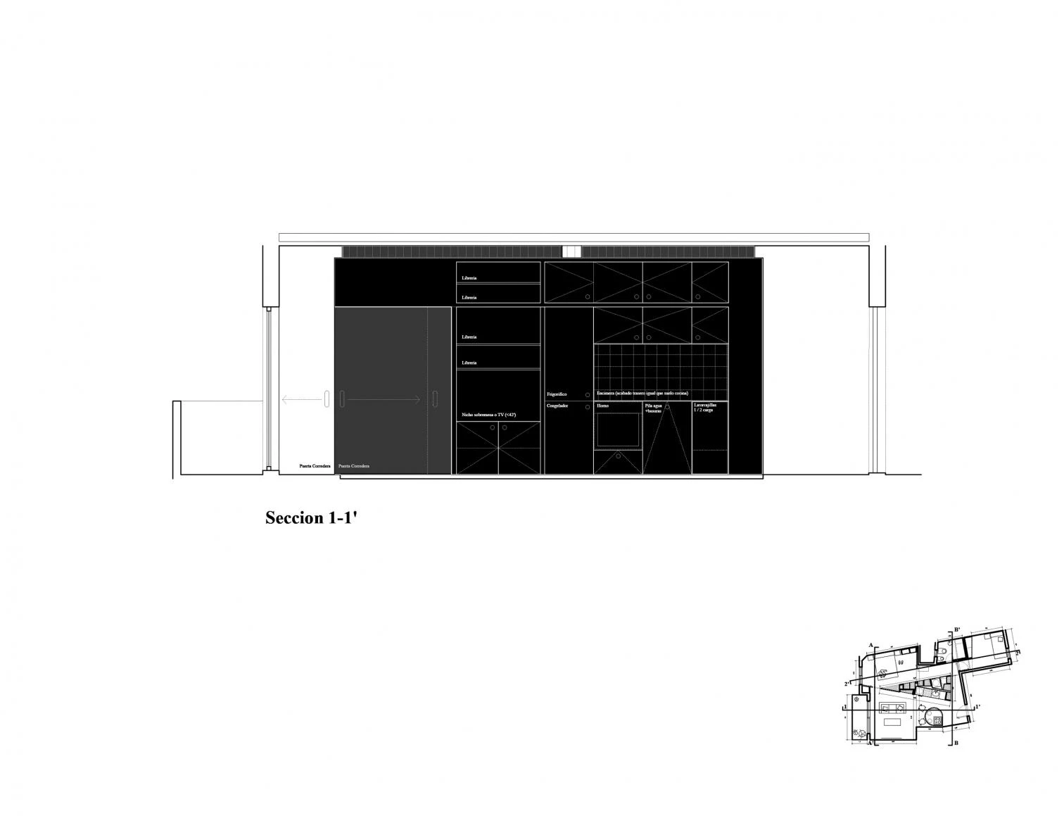
La domesticidad se reduce a pura infraestructura. Los diferentes programas cotidianos, derivados de las necesidades de la propietaria, quedan embebidos en una pieza de mobiliario triangular que asume el rol infraestructural del proyecto.
No hay arquitectura más allá de la infraestructura, que se comporta como un dispositivo capaz de activar de eventos domésticos las zonas adyacentes a cada fragmento de la pieza.
[10:05-10:23]
You reached for the secret too soon, you cried for the moon.
Shine on you crazy diamond.
La heterogeneidad de infraestructuras que la pieza condensa se equilibra con una homogeneidad casi genérica de su acabado: aluminio cepillado. Tan sólo las dos encimeras, de la isla y de la cocina, se resuelven con piezas continuas de acero inoxidable reciclado debido a su resistencia frente a un uso agresivo.
La única pieza segregada del prisma triangular central es una isla de geometría circular, que funciona como elemento de cocina, almacenaje y mesa de comedor.
[10:24-10:45]
Threatened by shadows at night, and exposed in the light.
Shine on you crazy diamond.
La hiper-densificación infraestructural exige una segunda decisión: reducir toda otra posible intervención arquitectónica a los acabados. Para ello, la planta del proyecto traza tres bandas paralelas que quedan atravesadas por la geometría del triángulo. Dos más cálidas de madera en los extremos del proyecto y una tercera más dura de terrazo monocapa en la zona central. Tres franjas que sugieren usos de descanso y reunión en las cálidas o de cocina e higiene en las frías.
El plano de techo se resuelve con la misma condición de abstracción homogénea que el resto del apartamento, usando un techo acústico perforado que incorpora a modo de otros orificios las luminarias empotradas orientables, que se distribuyen homogéneamente según los posibles requisitos de usos múltiples del espacio inferior a él.
[10:46-13:30]
Well you wore out your welcome with random precision,
Rode on the steel breeze.
Come on you raver, you seer of visions,
Come on you painter, you piper, you prisoner, and shine!
La infraestructura doméstica, prisionera de la geometría triangular, es un oxímoron arquitectónico que emancipa las rutinas del día a día generando líneas de fuga de la cotidianeidad.
Son precisamente los eventos domésticos, que se generan en torno a la infraestructura del dispositivo arquitectónico insertado, los que construyen una condición revisada de la domesticidad y, por tanto, del hogar.





















Obra Work: La Maison-en-Valise, Madrid (España)
La Maison-en-Valise, Madrid (Spain)
Arquitectos Architects
Pedro Pitarch (socio partner); Javier Morán, Nadia Alrachid, Javier Ordóñez, Daniel Ruiz (equipo team)
Contratista Contractor
VISTTO estudio
Fabricantes Manufacturers
Mosaista (terrazo terrazzo); Plus Cover (suelo de madera wood floor); Faro Barcelona (iluminación lighting); Bosch, Teka (electrodomésticos home appliances)
Superficie Area
60 m²
Fotos Photos
Imagen Subliminal