Sección especial ARCO 40+1
Pedro Pitarch- Tipo Cultura / Ocio Arquitectura efímera
- Fecha 2022
- Fotografía Imagen Subliminal (Miguel de Guzmán + Rocío R. Rivas)
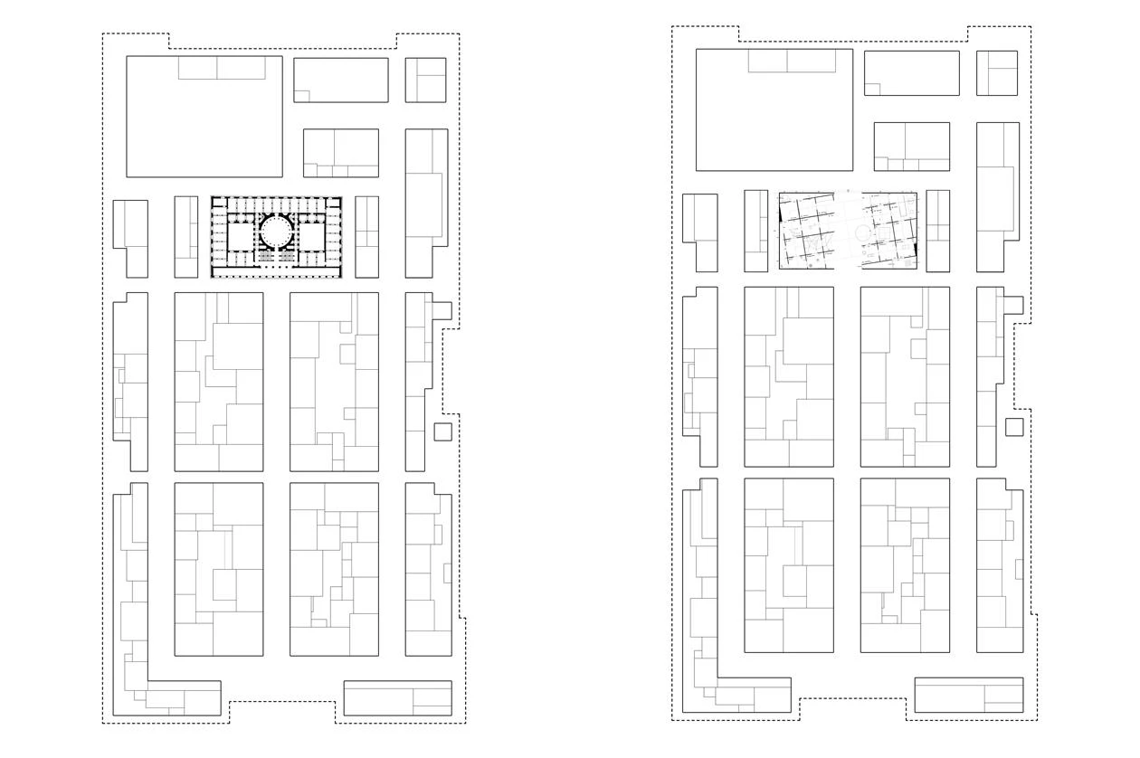
Para la última edición de ARCO, la feria de arte contemporáneo celebrada en IFEMA Madrid, Pedro Pitarch diseñó la sección ARCO 40+1, concebida como un museo imaginario, con motivo del 40 aniversario de este evento. La intervención plantea la inversión de las lógicas espaciales de las ferias de arte. Se plantea como una experiencia puramente interior, como una secuencia de estancias concatenadas que importan el contexto museístico a la feria. Cada galería dispone de un espacio idéntico pero adaptado a los requisitos de las piezas expuestas. Esta migración de la arquitectura ferial a la museística se intensifica a través de un cambio en el ritmo de la circulación. Para ello, la planta reticular del proyecto se gira 9º, rompiendo la ortogonalidad con respecto los recorridos del resto de la feria y así producir una deceleración en el tránsito del visitante. Este gesto, rotar la matriz, genera un espacio remanente entre retícula y perímetro: una piel con espesor que sirve de soporte para exponer el archivo histórico del 40 aniversario e incorpora una zona de trabajo, una sala de proyecciones, una zona de reuniones, y la hemeroteca de ARCO. Por último, la sección se divide en dos al ser atravesada por el pasillo central de la feria, que corta dramáticamente la retícula e introduce al visitante directamente en ese interior museístico.



















