Restaurante Noma en Copenhague
BIG Bjarke Ingels Group- Tipo Cultura / Ocio Restaurante
- Fecha 2018
- Ciudad Copenhague
- País Dinamarca
- Fotografía Rasmus Hjortshøj
Creado por el chef danés René Redzepi, Noma está considerado uno de los mejores restaurantes del mundo. El local original se clausuró al término de 2016 con el objetivo de trasladarse a una nueva sede en la punta norte de la Christianshavns Vold —los restos de la antigua muralla circular que rodeaba Copenhague—, en un solar ocupado por un almacén abandonado. El nuevo Noma se concibe como una íntima ‘villa culinaria’ en el que los clientes experimenten una reinterpretación innovadora de la gastronomía nórdica mientras disfrutan de las vistas sobre la naturaleza y el agua circundante.
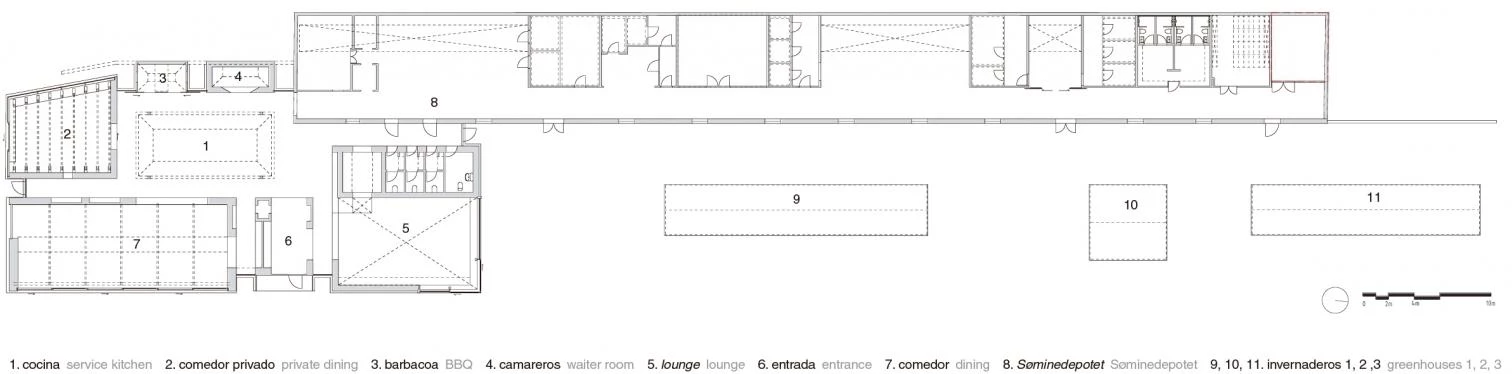
La propuesta debía conservar la nave existente, en la que la Real Armada de Dinamarca mantuvo un depósito de minas marinas. Además del edificio protegido, que debía restaurarse cuidadosamente, el proyecto podía ocupar el lugar de unas instalaciones anexas que habían sido construidas con posterioridad. Los procesos correspondientes al funcionamiento interno del restaurante se colocaron en una secuencia lineal dentro del Søminedepotet, mientras que los espacios relacionados con la experiencia directa del comensal se dispusieron en una serie de pabellones independientes en la superficie auxiliar disponible en el extremo sur del recinto. Esta idea remite a la organización tradicional de las granjas nórdicas —la sæter—, en las que las distintas labores se separan en edificaciones diseminadas por el paisaje. Así, partes como el vestíbulo de llegada, la zona de los vinos o la barbacoa se sitúan en siete volúmenes autónomos adaptados a las necesidades específicas de cada función. En la pieza central se coloca la cocina de los chefs, lo que facilita el control del desarrollo del servicio; del mismo modo, también los comensales pueden seguir las distintas fases del proceso.
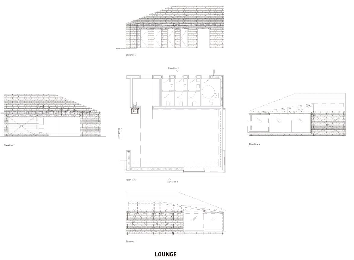
El heterogéneo conjunto, en el que se emplean diferentes materiales y técnicas constructivas, evoca la forma arquetípica de una villa ártica. También los interiores aluden a elementos vernáculos del imaginario nórdico: los comedores se envuelven con tableros de madera apilados que sugieren pilas de leña junto a la lumbre; la barbacoa se asemeja a un refugio en el bosque; y el lounge, acabado enteramente en ladrillo, puede leerse como una gran chimenea. Los umbrales entre los ‘edificios dentro del edificio’ se cubren con vidrio para introducir luz natural, lo que permite a los usuarios contemplar las variaciones atmosféricas a lo largo del día. El complejo se encuadra dentro de un cuidado jardín, diseñado en sintonía con los principios ecológicos de la permacultura, donde se encuentran tres invernaderos que contienen respectivamente un invernáculo, un horno, y una cocina-laboratorio dedicada al desarrollo de nuevos platos.
El País: Estos son los 10 mejores restaurantes del mundo
The World's 50 Best Restaurants




Foto: Ditte Isager

















