Polideportivo universitario, Castellón
Basilio Tobías Pintre- Tipo Centro deportivo Deporte
- Fecha 2002
- Ciudad Castellón
- País España
- Fotografía Lluís Casals
- Marca Heraklith
Fundada hace más de una década, la Universidad Jaume I ha consolidado su posición en la provincia de Castellón, donde cuenta ya con cuatro sedes oficiales, y en el panorama educativo nacional. Situado al oeste del núcleo urbano de la capital, el campus del Río Seco debe su traza a Antonio Fernández Alba, quien dejó establecido en el plan de ordenación que todos los edificios debían emplear el ladrillo como material principal. Al albergar un programa singular, el diseño del nuevo pabellón polideportivo parecía demandar una imagen distintiva; la respuesta partió del cambio tanto en la forma tradicional de colocación del material cerá-mico como en su dimensión.

La retícula estructural y el revestimiento cerámico proclaman que la imagen del edificio se deriva del sistema constructivo adoptado. Y la disposición en tres bandas funcionales del programa rompe la monotonía de la caja.

La nueva construcción ocupa toda la extensión de la parcela, soterrándose en la huella ataluzada producida por el desnivel natural del terreno. A partir de un esquema funcional que divide el programa en franjas longitudinales, los distintos espacios se disponen en tres módulos alargados que revelan su presencia al exterior con alturas diferentes. Hacia el sur y en la cara más alejada del bulevar central se sitúa la gran sala deportiva, con un interior que combina la entrada puntual de luz a través de huecos de tamaños diferentes con una pasarela continua a media altura que abraza todo el espacio, recogiendo en su recorrido el graderío. La banda central se dispone en tres alturas: la primera alberga vestuarios y despachos; la segunda, salas para taekwondo, aerobic y musculación; y la tercera, una pieza longitudinal y orientada al norte para la práctica de esgrima. Al nivel de calle la banda más septentrional acoge el acceso principal —provisto de una gran marquesina metálica— y la cafetería.


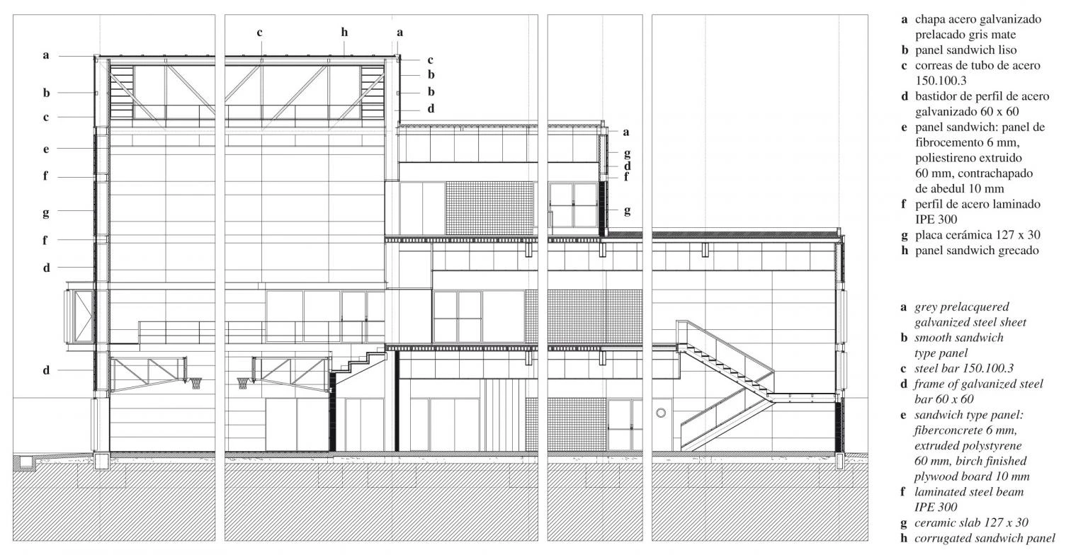
El acuerdo entre los usos, la construcción y la imagen se refleja en la estructura, constituida por una retícula metálica que define paños de dimensiones uniformes —y contrachapado— en el interior. Al exterior, piezas cerámicas de 1,27 x 0,30 centímetros, fijadas a una subestructura metálica, componen una fachada transventilada de montaje sencillo y preciso, además de excelente comportamiento térmico y acústico. Lamas verticales rompen con la homogeneidad de la arcilla en los dis-tintos huecos de la caja, mientras que ocho lucernarios longitudinales —orientados al noroeste para evitar deslumbramientos— asoman sobre el perfil de la cubierta, señalando la situación de la cancha dentro del contenedor. Prolongando el espacio interior, el patio ajardinado en planta baja y la amplia terraza relacionan el edificio con su entorno. Una escalera salva el talud perimetral y conecta la gran sala con una de las avenidas del campus.



Cliente Client
Universidad Jaume I
Arquitecto Architect
Basilio Tobías
Colaboradores Collaborators
Jaime Magén, Santiago Carroquino (arquitectos architects); Enrique Morales (aparejador quantity surveyor)
Consultores Consultants
Ateco (cimentación foundations); Ingemetal (estructura structure); Inco-Grupo JG ingenieros (instalaciones mechanical engineering)
Contratista Contractor
Constructora San José, Heraklith (falsos techos ceilings); Tezno Cuber Composites (paneles de cubierta roof panels)
Fotos Photos
Lluís Casals