Palacio de Congresos, Peñíscola
Paredes Pedrosa Arquitectos- Tipo Cultura / Ocio Palacio de congresos
- Material Cerámico Hormigón
- Fecha 2000 - 2003
- Ciudad Peñíscola (Castellón) Castellón
- País España
- Fotografía Roland Halbe Lluís Casals
- Marca GOGAITE
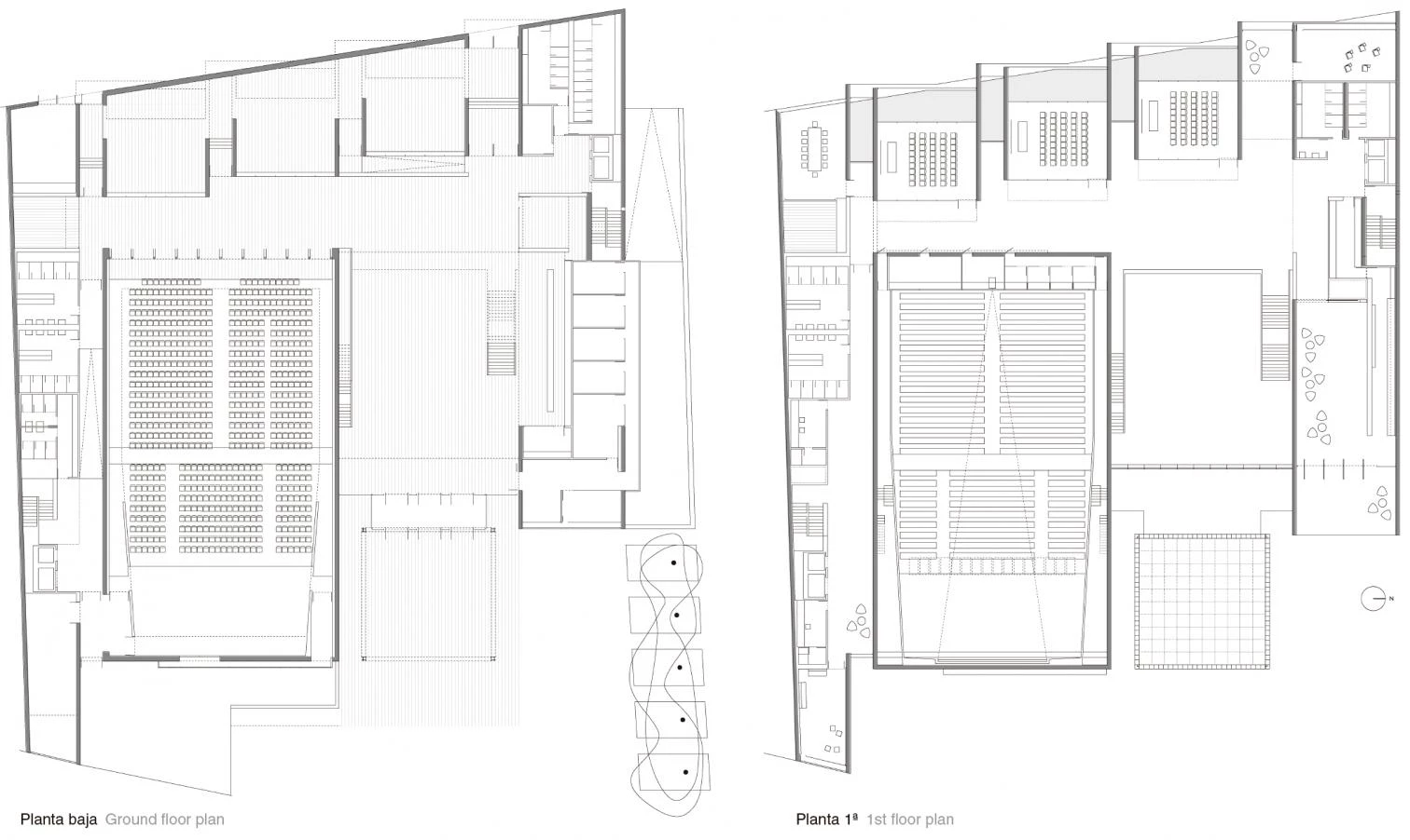
Su situación al pie del Castillo de Peñíscola, frente a un jardín en segunda línea desde el mar, define la propuesta y explica la razón de ser de este equipamiento cultural. La voluntad de vincular los espacios interiores al parque y a la vista del mar ha determinado una imagen continua y cerrada hacia las calles perimetrales y fragmentada y abierta en la fachada de acceso desde el jardín, liberando una amplia plaza. Un umbráculo, transición entre exterior e interior, es la pieza que materializa tanto este acuerdo como la imagen del edificio. Se construye con piezas cerámicas, formando un tejido tridimensional que se desliza entre los volúmenes de hormigón blanco. Esta celosía, permeable al aire pero a cubierto de la lluvia, es lugar de encuentro y antesala del vestíbulo que da paso a las distintas partes del programa, concebidas como piezas autónomas.
En planta baja se sitúa el acceso a la sala principal y el área de exposiciones; en planta primera las aulas de congresos y la cafetería, que busca la visión del mar a través de una terraza mirador. La sala, de 700 plazas, se desarrolla en un único plano continuo de suave pendiente, cubierto con una losa ondulada de hormigón visto que incorpora en su estructura los condicionantes de la acústica; como contrapunto, los laterales se revisten de listones de madera.






















Arquitectos Architects
Ángela García de Paredes, Ignacio G. Pedrosa
Colaboradores Collaborators
Eva M. Neila. Silvia Colmenares. Javier Arpa Jaime Prior, Ramón Monfort (dirección de obra site supervision)
Dirección de ejecución Execution manager
Luis Calvo, José Carratalá
Estructura Structure
Alfonso G. Gaite GOGAITE S.L.
Instalaciones Mechanical engineering
EPM S.L. AXIMA S.A.
Propietario Owner
Proyecto Cultural de Castellón, S.A.
Constructora Contractor
COMSA
Superficie construida Floor area
6.175 m²
Presupuesto Budget
12.328.610 euros
Fotos Photos
Roland Halbe, Lluís Casals