Pabellón polideportivo, Madrid
Ábalos & Herreros Ángel Jaramillo- Tipo Centro deportivo
- Material Acero Malla metálica
- Fecha 2003
- País España
- Fotografía Miguel de Guzmán Hisao Suzuki
El complejo municipal de La Chopera, construido en 1960 en el lado suroeste del Retiro, es uno de los centros deportivos más antiguos de Madrid. Las diversas instalaciones con que está do-tado (pistas de fútbol, circuito al aire libre, canchas de baloncesto y tenis, entre otras) funcionan en el parque como lugar de encuentro de numerosos vecinos, amenizando una de las múltiples áreas de actividad que tienen hoy cabida en el que fuera en tiempos lugar de solaz real. En el contexto de un programa de renovación de instalaciones que alcanza el conjunto del parque madrileño, se ha construido un proyecto que resultó ganador de un concurso celebrado hace ocho años: un pabellón polideportivo que alberga además las oficinas del servicio de deportes del distrito.


Parcialmente enterrado, el pabellón emerge envuelto por paneles translúcidos. Bastidores metálicos pintados de verde protegen la pista superior, fundiendo el edificio con el paisaje del parque del Retiro.

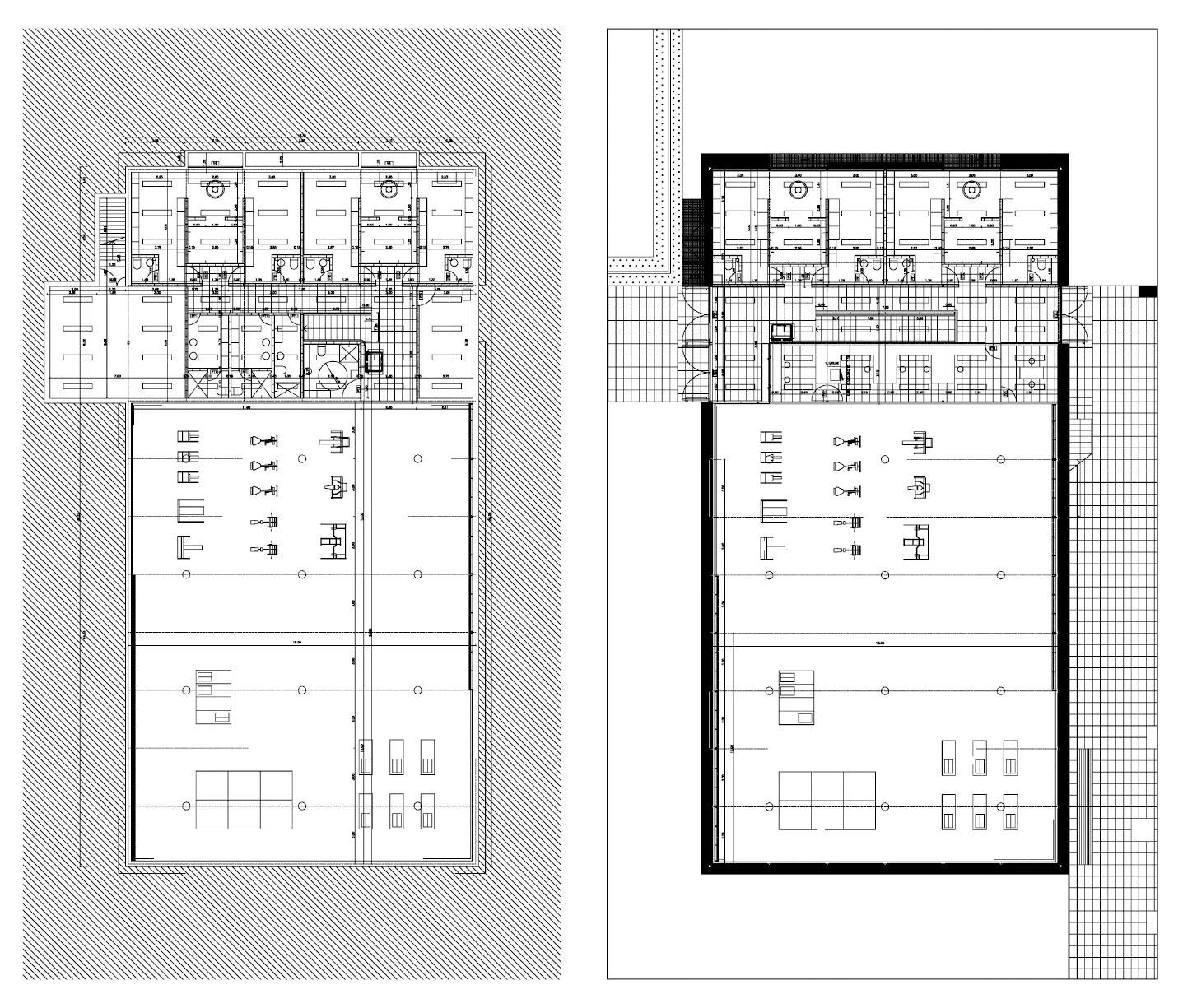
El edificio se genera a partir de una plataforma rectangular elevada tres metros sobre el nivel del suelo por medio de una serie de pórticos de acero. Su huella se hunde bajo tierra en un vaso de hormigón de cuatro metros de profundidad, lo que posibilita la presencia de un gimnasio de doble altura ocupando el lado oeste; en el otro lado, con una superficie menor, se han acondicionado las oficinas municipales en el nivel de acceso, y los vestuarios y almacenes en el nivel inferior. Un corredor transversal atraviesa el prisma dando acceso a las distintas áreas, para abandonar de nuevo el volumen en el flanco contrario y conducir a las pistas de juego exteriores. Una hilera de árboles en el exterior y un panelado de vidrio translúcido sobre el vaso de hormigón contituyen una suerte de doble envolvente para el gimnasio. De esta manera, una luz blanca y tamizada ilumina el interior por la parte superior de sus paramentos verticales. La cubierta, que parece flotar sobre esta banda continua de luz, se utiliza como pista de tenis o cancha gimnástica al aire libre. Una escalera metálica exterior, adosada al costado sur, conduce hasta ella.


El volumen excavado aloja en dos plantas almacenes, vestuarios y oficinas, y a doble altura el gimnasio. Una banda de policarbonato ilumina cenitalmente la cancha interior, bañándola con una luz blanca perimetral.
Como una reinterpretación de la tradición jardinera del entorno, de la que dan muestra piezas singulares construidas con setos y trillajes, un cerramiento a base de mallas metálicas garantiza la protección de las instalaciones. Transformados en muros vegetales ahora que las diversas especies plantadas ex profeso trepan por su superficie, dan lugar a una composición abstracta en la que los bastidores metálicos recortan en fragmentos ortogonales la materia orgánica. En la distancia se consigue un efecto de ‘teselización’ del paisaje, cuando las gamas de verdes y grises de los árboles y el cielo, diferentes según la luz a lo largo del día, se mezclan con los colores que tiñen el pabellón.



Cliente Client
Ayuntamiento de Madrid
Arquitectos Architects
Iñaki Ábalos y Juan Herreros,
Ángel Jaramillo
Colaboradores Collaborators
Renata Sentkiewicz, Fermina Garrido; Jakob Hense (maqueta model); IMD (dirección y control de obra site supervision); José Torras + IMD (aparejador quantity surveyor)
Consultores Consultants
Obiol y Moya (estructura structure)
Contratista Contractor
Maconsa
Fotos Photos
Miguel de Guzmán; Hisao Suzuki