Fundació Pilar i Joan Miró en Palma de Mallorca
Rafael Moneo- Tipo Cultura / Ocio Museo
- Fecha 1987 - 1992
- Ciudad Palma de Mallorca
- País España
- Fotografía Eduardo Belzunce Lluís Casals Duccio Malagamba Michael Moran (OTTO)
La suave pendiente de bancales de almendros en la que se encuentra emplazada la Fundación, en una zona situada entre el estudio del pintor, realizado por Josep Lluís Sert, y la carretera que discurre por el nivel más bajo de la finca, permite que la nueva construcción no sobresalga en exceso, al quedar su volumen en las cotas más bajas.


La cubierta está ocupada por láminas de agua y perforada por lucernarios; en el espacio quebrado de la galería, inspirado en la obra vital del artista barcelonés, la iluminación natural tiene una particular relevancia.
Construida para cumplir con la voluntad del pintor, la Fundación consta de un centro de estudios artísticos y una galería, y este programa se manifiesta en la imagen del edificio, compuesto por un elemento lineal —en el que se emplazan los servicios del centro de estudios— y por un volumen estrellado destinado a la colección de pinturas. El elemento lineal corre paralelo al camino que lleva al estudio del pintor. Se trata de un escueto muro blanco que centra la visión en el hermoso paisaje con el mar al fondo. El muro, por otra parte, anima a iniciar el camino que lleva hasta el estudio y conduce a una dilatada y hermosa plazuela, desde la que se puede emprender la exploración del jardín, al que se ha dado una importancia fundamental en el proyecto y que sirve para aislar la Fundación de su entorno.

La entrada al edificio se encuentra emparejada a un dilatado porche que corre a lo largo del brazo longitudinal del edificio. Pasado el umbral, se encuentra la conserjería y una escalera. Tras la conserjería se desarrolla el programa de servicios administrativos: una pequeña oficina, el despacho del director y una sala de juntas que domina, desde una cota más alta, la biblioteca. Desde la oficina se accede por una escalera privada al servicio de informática.

En torno al generoso espacio que aparece en el desembarco de la escalera principal se disponen la tienda-librería, la sala de exposiciones temporales y la galería propiamente dicha. En la planta baja, situada a nivel del jardín, se desarrollan todas las actividades propias de la Fundación. Así, en la construcción longitudinal se encuentran la biblioteca, la sala de conferencias, los servicios de informática y los aseos. El edificio dispone también de un sótano con acceso independiente, que alberga los almacenes, los laboratorios y las instalaciones.
Conformado por una pieza lineal que alberga la sala de conferencias y el centro de estudios, y otra estrellada destinada a exposiciones, el proyecto se emplaza en la cota más baja del solar buscando la integración en el entorno.

La galería pretende acercarse al contenido de la obra de Miró, presentándose como un espacio inde- finible y quebrado, capaz de crear una atmósfera especial acorde con el espíritu de la pintura. Atención particular se ha prestado a la iluminación, que procede de los intersticios entre los muros, amplios unas veces, más angostos otras. El visitante domina el espacio desde la cota alta, donde se encuentra al entrar, y va descendiendo a tres niveles diversos, que se relacionan entre sí definiendo un todo.



Planta sótano

Planta baja (galerías)

Planta primera (acceso)


Sección transversal

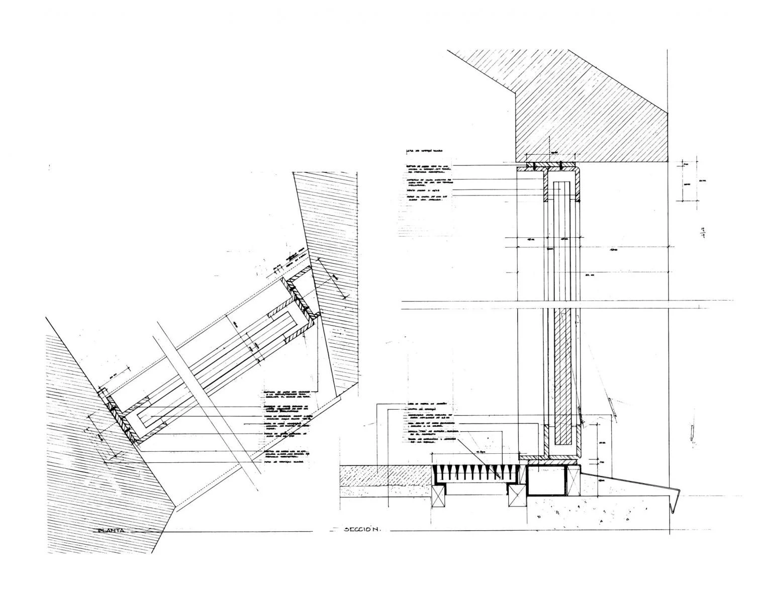
Brise soleil en fachada

Detalle carpintería alabastro
Cliente Client
Fundació Pilar i Joan Miró
Arquitecto Architect
Rafael Moneo
Colaboradores Collaborators
Emilio Tuñón, Luis Moreno Mansilla, Luis Rojo, Vicente Cortés (arquitectos architects)
Dirección de obra Construction supervision
Rafael Moneo, Rafael Balaguer, Antonio Esteva
Consultores Consultants
Mariano Moneo (ingeniero estructura structural engineering); Gustavo Álvarez, JG Asociados (instalaciones mechanical engineering); Rafael Moneo (mobiliario furniture); Juan de Dios Hernández, Jesús Rey (maquetistas models)
Contratista Contractor
Agroman
Superficie construida Floor area
2.620m²
Fotos Photos
Duccio Malagamba, Michael Moran/OTTO, Lluís Casals/VEGAP/Madrid 2023