Palacio de Congresos y Exposiciones, Mérida
Nieto Sobejano Arquitectos- Tipo Centro de congresos Auditorio Teatro Prefabricación Cultura / Ocio
- Fecha 2003
- Ciudad Mérida
- País España
- Fotografía Fernando Alda
- Marca Higini Arau
Con un programa denso que incluye audito-rio de música, teatro, ópera y pabellón de exposiciones, el nuevo palacio de congresos de Mérida posee, sobre todo, una fuerte carga simbólica. Emplazado en la ribera del Guadiana, entre los puentes del Ferrocarril y Lusitania, asume su función pública e institucional con un volumen compacto y expresivo que pretende hacerse atemporal, como un vestigio del pasado que asoma a una ciudad que es antigua y moderna a la vez.

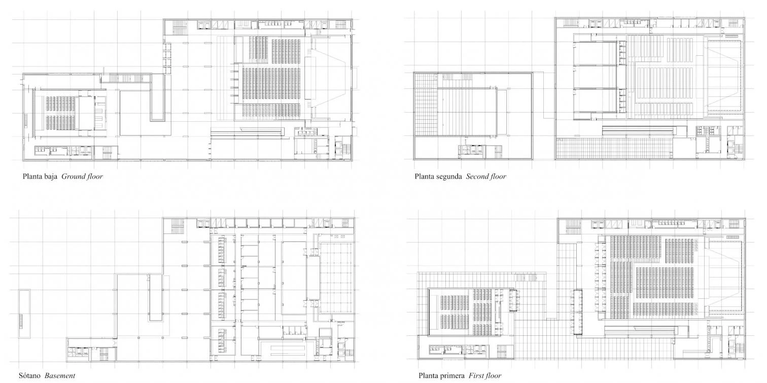
Asentado sobre la margen occidental del Guadiana, el centro de congresos se concibe como un volumen masivo que se pliega sobre sí mismo para generar tanto sus salas principales como las áreas de relación con la ciudad y el río.

El edificio se ha concebido como una pieza unitaria y masiva que se pliega sobre sí misma para definir, entre sus llenos y vacíos, una terraza pública elevada que vincula río y trama urbana, articulando además los elementos fundamentales del programa: las salas principal y menor, y la zona de exposiciones. La ley que da lugar a las salas —el escalonamiento y doblado de las losas superior e inferior— se expresa en sección por la continuidad del vacío central, que permite a su vez un funcionamiento independiente de ambos espacios con respecto al de exposiciones, embebido en el zócalo.


La sala principal, con un aforo de mil plazas, adopta en el lado norte una planta rectangular con un patio de butacas generado por pendientes de inclinación variable, al que se puede acceder desde la calle o desde la plataforma. Junto a la propia geometría y volumen de la sala, un techo acústico a base de paneles de madera revestida de láminas de zinc garantiza las óptimas condiciones de acústica. El auditorio menor, en el lado sur, incluye tras la escena una amplia abertura acristalada que comunica con la plaza de acceso: una cancela de zinc cierra la sala cuando está en uso y muestra, cuando se abre, la sección horizontal que recorre todo el edificio. Las áreas de exposiciones y congresos, concebidas como una secuencia modulada de espacios vacíos, se disponen en las plantas baja y semisótano.


La calidad pétrea de las fachadas se consigue por medio de un aplacado de piezas de hormigón prefabricado, en las que se ha grabado (mediante un encofrado de moldes de goma) un fragmento del plano de la ciudad.




Las fachadas del prisma, que confieren al auditorio la cualidad de un volumen sólido, se construyen en realidad a partir de un entramado estructual y modulado de hormigón armado que sustenta un aplacado de paneles también de hormigón, esta vez prefabricado. Como el opus incertum de las fábricas romanas, este material aparece fuertemente pigmentado e incorpora una peculiar textura: la escultora Esther Pizarro ha realizado un bajorrelieve inspirado en el plano de la ciudad que, desarrollado en cinco moldes de goma, es susceptible de combinarse en cuatro agrupaciones diferentes. El edificio muestra así una cara exterior áspera que contrasta con el acabado interior pulido, de metal y vidrio, que reviste las dos salas del auditorio.





Cliente Client
Junta de Extremadura
Arquitectos Architects
Fuensanta Nieto, Enrique Sobejano
Colaboradores Collaborators
C. Ballesteros, D. Bouvier, M. Herrero, L. Labrandero, P. Quero, J. C. Redondo; M. Mesas, F. Benito, P. Miranda, J. L. Periañez, M. Rica (aparejadores quantity surveyors)
Consultores Consultants
NB 35, J. Jiménez (estructura structure); Geasyt, G. Álvarez (instalaciones mechanical engineering); H. Arau (acústica acoustics); Juan de Dios Hernández & Jesús Rey (maquetas models)
Contratista Contractor
Ute Placonsa-Joca
Fotos Photos
Fernando Alda