Casa Consistorial de Valdemaqueda, Valdemaqueda
Paredes Pedrosa Arquitectos- Tipo Institucional Ayuntamiento / Gubernamental
- Material Hormigón
- Fecha 1993 - 1998
- Ciudad Valdemaqueda (Madrid)
- País España
- Fotografía Eduardo Sánchez PPA
- Marca Geasyt GOGAITE
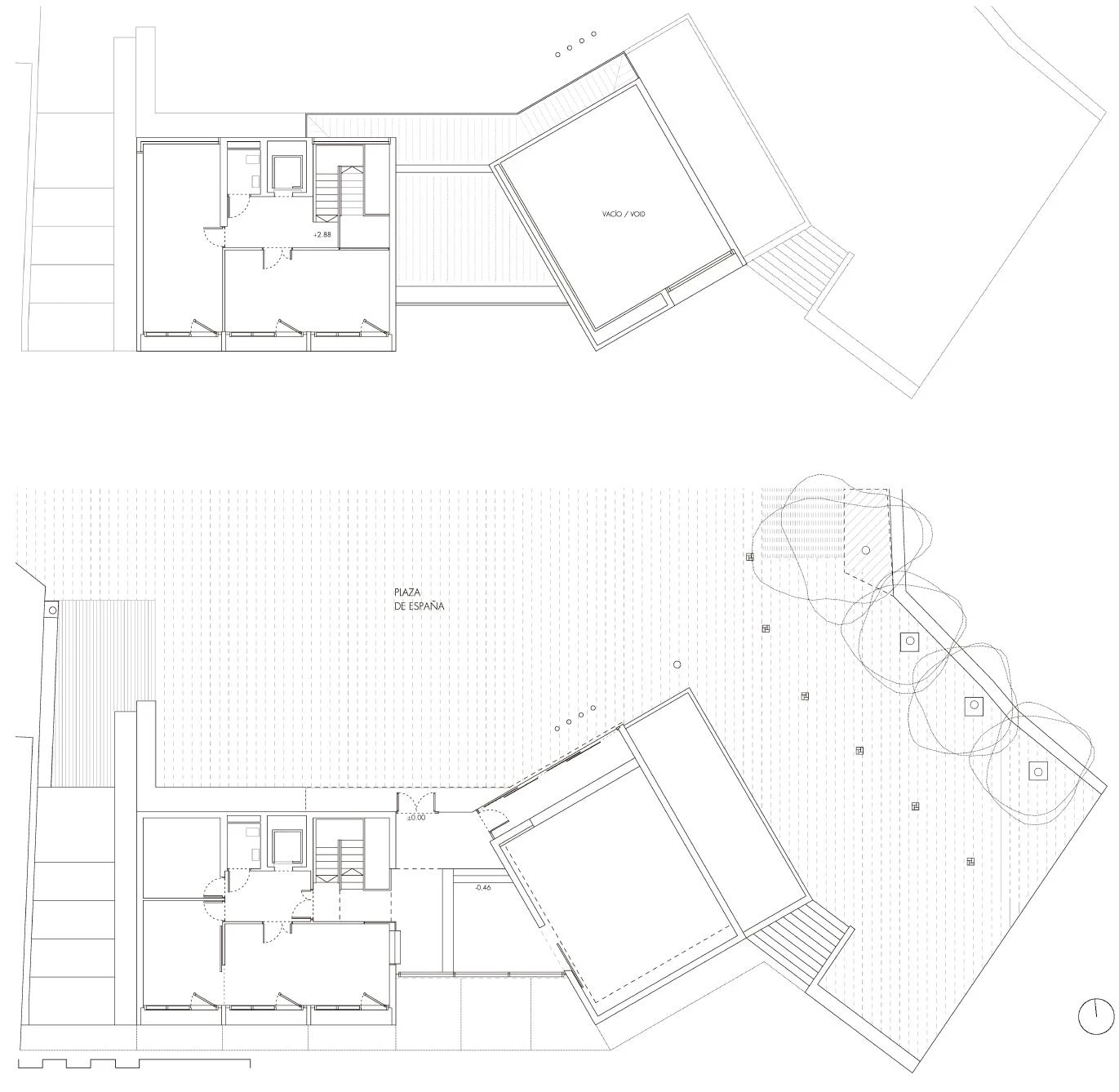
En el límite de la Comunidad de Madrid, Valdemaqueda está inmerso entre pinares en una ladera orientada a sur. La carretera atraviesa el municipio, de casas dispersas, y en la plaza —antes sólo un ensanchamiento de la vía— se sitúa el ayuntamiento, que salva un desnivel de dos metros con el prado sobre el que se asienta. Independientemente de su dimensión, el proyecto suscita una reflexión sobre su capacidad de ordenar el entorno próximo sin distorsionar la escala existente. En este sentido el objetivo de la propuesta es la configuración y ordenación de la Plaza hacia donde el edificio presenta su fachada más representativa y su integración en la escala de la trama urbana. El conjunto completa la plaza y se quiebra para adecuarse a su insinuada concavidad, fragmentándose en dos volúmenes unidos por un vestíbulo acristalado que les da acceso.
Los elementos de la estructura de hormigón vista configuran los cerramientos exteriores integrando el edificio en la escala cromática del lugar y logrando con la solidez material su estabilidad en el tiempo. En la cara sur la estructura se plementa con placas de pizarra y carpintería de aluminio. En la cara norte, el ventanal hacia la plaza, el reloj en el muro de hormigón y los mástiles recuerdan el carácter institucional del pequeño edificio.

















Arquitectos Architects
Ángela García de Paredes, Ignacio G. Pedrosa
Colaboradores Collaborators
Manuel García de Paredes, Nuria Ruiz
Dirección de ejecución CAM Execution manager CAM
Joaquín Riveiro Pita
Estructura Structure
Alfonso G. Gaite GOGAITE, S.L.
Instalaciones Mechanical engineering
Gustavo Álvarez, GEASYT S.A.
Propietario Owner
Comunidad Autónoma de Madrid
Constructora Contractor
Construcciones y Restauraciones S. L.
Superficie construida Floor area
527 m²
Presupuesto Budget
302.000 euros
Fotos Photos
Eduardo Sánchez, PPA