Museo Marítimo de Dinamarca, Elsinor
BIG Bjarke Ingels Group- Tipo Rehabilitación Cultura / Ocio Museo
- Fecha 2008 - 2013
- Ciudad Helsingør
- País Dinamarca
- Fotografía Dragor Luftfoto Ole Thomsen
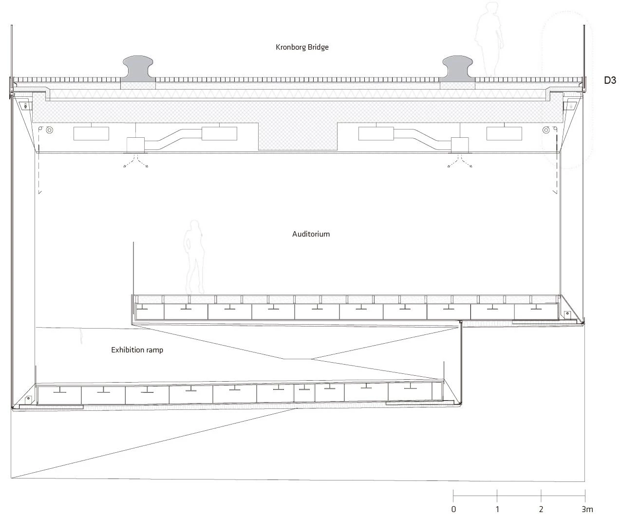
Desde su fundación en 1915, el Museo Marítimo de Dinamarca estuvo ubicado en el castillo de Kronborg —una construcción de 1574 situada en una pequeña península y conocida por ser el escenario de Hamlet—, pero tuvo que abandonar este histórico emplazamiento cuando la UNESCO declaró el castillo Patrimonio de la Humanidad y las autoridades decidieron recrear los interiores originales del edificio. La nueva ubicación para el museo se halló muy cerca: un viejo dique seco a pocos metros del castillo. La propuesta ganadora del concurso convocado para cobijar la dotación en el nuevo emplazamiento fue la única en situarla en el perímetro del dique, y no en su interior como indicaban las bases, de manera que se conservase el cuenco vacío de la infraestructura para transformarlo en un espacio urbano hundido a ocho metros del nivel del mar. Se trataba de una operación que permitía mantener prácticamente intacto el entorno del castillo, al menos sobre rasante. La pertinencia de esta decisión se vio confirmada tras las primeros informes técnicos, que dictaminaron que, para mantenerse estables, los muros del dique seco dependían del empuje del agua, de tal modo que si se vaciase aquel, la presión del terreno obligaría a levantar un dique dentro de otro. Colocar el programa en torno al dique hizo posible, de este modo, que la construcción de un nuevo muro de contención no resultase redundante.































Obra Work
Museo Marítimo de Dinamarca Danish Maritime Museum (Denmark).
Cliente Client
Elsinore Municipality
Arquitectos Architects
BIG / Bjarke Ingels Group.
Colaboradores Collaborators
D. Zhale (jefe de proyecto project leader); R. Hansen, K. Hammer Hansen, A. Yu, P. Labra, M. Jay, M. Navriku, Q. Lim, P. Rieff, T. Lund Højgaard, A. Jensen, J. Cool. S. Sosio, T. Bennet.
Fotos Photos
Ole Thomsen, Dragor Luftfoto, Luca Santiago Mora, Rasmus-Hjortshoj