Hospital psiquiátrico, Elsinor
BIG Bjarke Ingels Group- Tipo Salud Hospital
- Fecha 2002 - 2005
- Ciudad Elsinor
- País Dinamarca
- Fotografía Dragor Luftfoto Peter Sorensen Esben Bruun
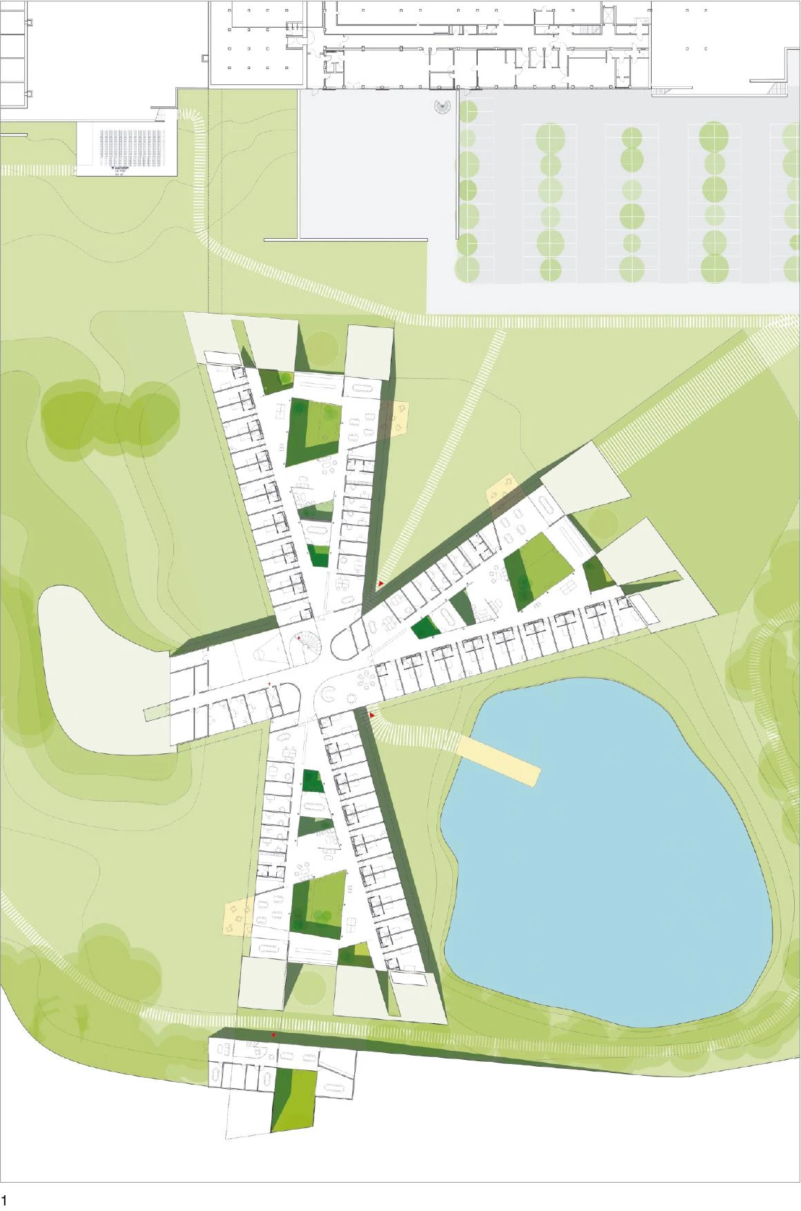
El hospital psiquiátrico en Elsinor, una ciudad portuaria de Dinamarca, está a medio camino entre las formas sugerentes generadas por las nuevas tecnologías y las rigurosas geometrías características de construcciones de carácter más funcional. En la investigación previa al diseño del proyecto no sólo se realizó un análisis exhaustivo del programa y de las necesidades del cliente, también se hicieron entrevistas a los usuarios del centro clínico, tanto al personal médico como a los pacientes. Las diferentes aportaciones de la investigación no generaron respuestas inmediatas de cómo debía ser un hospital psiquiátrico. Más bien señalaron cualidades contradictorias y ambiguas que debía tener: abierto y cerrado, centralizado y descentralizado, sensación de libertad y control, privado y público, que se añadieron en el proceso de diseño generando un edificio que fluctúa entre ser o no ser un hospital psiquiátrico.
Como es sabido, un ambiente seguro y amable es crucial en el buen desarrollo de un tratamiento psiquiátrico y del bienestar personal del paciente. Los tratamientos actuales demandan un nuevo tipo de arquitectura donde se combine un programa racional y eficaz con ambientes más íntimos y hogareños que ayuden al paciente a sentirse seguro y cómodo. Desde el principio el diseño del hospital huyó del esquema tipo de hospital tradicional: pasillo interior sin ventanas que sirve a ambos lados a una batería de habitaciones con acabados artificiales de colores fríos y grises. En contraposición, se optó por utilizar materiales naturales: madera, vidrio y hormigón pintado en colores cálidos con el objetivo de crear espacios que se alejaran de la imagen triste y apagada característica de un hospital.
El complejo programa requería la conciliación entre el uso residencial y el hospitalario, las áreas públicas y las privadas, así como la definición de espacios para muy distintos tipos de usuario. Para resolverlo se propone un edificio híbrido con forma de estrella que agrupa las zonas comunes en un núcleo central y distribuye las habitaciones de los pacientes, los despachos y las oficinas del personal médico en distintas alas de forma radial, separadas por sectores triangulares ajardinados. Esta organización permite orientar dos alas de habitaciones con vistas al lago y una tercera hacia las colinas circundantes, todas con acceso directo al exterior. Separado en dos niveles, el edificio se integra en el paisaje montañoso donde los patios aparecen como cortes en el terreno. Una de las galerías del área de tratamientos se extiende con una estructura-puente que sirve de conexión con el hospital existente.[+][+]


















Cliente Client
Frederiksborg County, Helsingør Hospital
Arquitectos Architects
BIG-Bjarke Ingels Group
Socios responsables Partners in charge: Bjarke Ingels, Julien De Smedt
Jefe de proyecto Project leader: Jakob Eggen
Jefe de obras Project architect: David Zahle
Mánager de proyecto Project manager: Leif Andersen
Equipo de proyecto Project team: Anders Drescher, Anna Manosa, Annette Jensen, Ask Hvas, Casper Larsen, Christian Finderup, Dennis Rasmussen, Finn Nørkjær, Hanne Halvorsen, Henrik Juel Nielsen, Ida Marie Nissen, Jakob Møller, Jamie Meunier, Jesper Bo Jensen, Jesper Wichmann, Jørn Jensen, Kasper Brøndum Larsen, Lene Nørgaard, Louise Steffensen, Nanna Gyldholm Møller, Simon Irgens-Møller, Thomas Christoffersen, Xavier Pavia Pages
Colaboradores Collaborators
Moe & Brødsgaard (ingeniería engineers); Ncc Construction Denmark (construcción construction); JDS Architects
Fotos Photos
Dragør Luftfoto; BIG; Peter Sørensen; Esben Bruun