Museo de Arte Moderno Odunpazari, Eskisehir
Kengo Kuma- Tipo Cultura / Ocio Museo
- Material Madera
- Fecha 2017 - 2019
- Ciudad Eskişehir
- País Turquía
- Fotografía NAARO
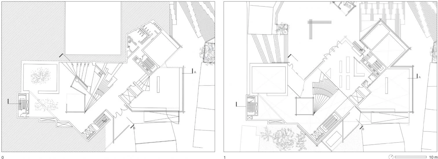
Ensambladas entre sí mediante listones de madera, un conjunto de cajas apiladas albergan el nuevo Museo de Arte Moderno Odunpazari en la ciudad turca de Eskisehir, conocida por su ambiente universitario. La parcela se sitúa en el límite entre un área de nuevo desarrollo y un núcleo tradicional formado por pequeñas casas en torno a calles serpenteantes. El proyecto busca reflejar la calidad de este paisaje urbano caracterizado por su pequeña escala, mediante la fragmentación del programa en piezas que se maclan entre sí para conformar los diferentes espacios. A nivel de calle, los volúmenes avanzan y retroceden en sintonía con los voladizos del tejido existente; mientras que hacia el centro, el conjunto crece para generar un nuevo hito cultural visible desde la distancia.
En el interior, un gran atrio con forma de prisma torsionado conecta entre sí los diferentes niveles y permite que la luz natural acceda desde el techo. Además de generar una imagen representativa, el uso de la madera hace referencia a la historia del lugar ya que Odunpazari en turco significa ‘mercado de leña’. La precisión de los detalles constructivos y la radicalidad de los encuentros contribuyen a enfatizar su carácter escultórico, por lo que el edificio se convierte en la primera pieza del museo.





















Obra Work
OMM (Odunpazari Modern Art Museum)
Cliente Client
Polimeks Holdings
Arquitectos Architects
Kengo Kuma & Associates; Kengo Kuma, Yuki Ikeguchi (socios encargados partners in charge); Yasemin Sahiner (arquitecto del proyecto project architect); Man Wai Yiu, Anteo Taro Sanada
Consultores Consultants
SIGMA (estructuras structural engineer); Ateknik Structural Design (fachada facade engineer); TEMA Engineering and Consulting Trade Ltd. (ingeniería mecánica mechanical engineer)
Contratista Contractor
Polimeks Holdings, INC.
Superficie construida Built-up area
3,582 m²
Fotos Photos
NAARO