Museo Brasileño de Escultura, São Paulo
Paulo Mendes da Rocha 

Museo Brasileño de Escultura, São Paulo

Paulo Mendes da Rocha 


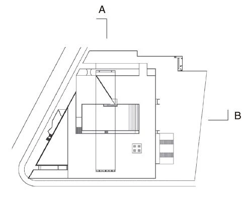
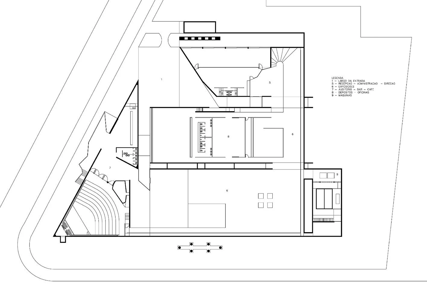
Bajo una gran losa de hormigón que arroja sombra, el Museo Brasileño de Escultura se desarrolla a lo largo de una serie de plataformas semisubterráneas que dirigen al visitante desde el exterior al interior de forma continua. Situado en un barrio residencial cuya normativa urbanística deriva de algunos principios de la ciudad-jardín, el proyecto se basa en la construcción de un paisaje artificial y se inserta en una área verde diseñada por el paisajista Burle Marx. Aprovechando el desnivel de la parcela, el museo queda oculto desde la avenida Europa y tan sólo se percibe el perfil del pórtico que se eleva hasta la altura de las casas vecinas.

Esta pieza horizontal, que salva una luz de sesenta metros, es, además de una escultura en sí misma, un elogio de la técnica. Para resolver el desafío estructural que supone un vano de estas dimensiones se tensionan los cables de la armadura, se minimiza el peso propio de la losa aligerando el interior y se introducen elementos elásticos en los apoyos que permiten la libre dilatación de cada componente. Entre los soportes y la viga se deja libre una franja de veinte centímetros que, además de independizar visualmente los dos elementos, permite reemplazar con facilidad los elastómeros que se degradan de forma más rápida que el resto de los materiales.  


Cliente Client

Sociedade de Amigos dos Museus

Arquitectos Architects

Paulo Mendes da Rocha

Colaboradores Collaborators

Alexandre Delijaicov, Carlos Dantas Dias, Geni Sugai, José Armênio de Brito Cruz, Pedro Mendes da Rocha, Rogério Marcondes Machado, Vera Domschke

Consultores Consultants

Mário Franco (cálculo estructural structural calculation); Luciano Decourt (suelos y cimentaciones floor and foundations), Mari Hashigoushi (instalaciones eléctricas e hidráulicas electrical and water systems), Roberto Burle Marx (paisajismo landscape)

Contratista Contractor

JHS Construção e Planejamento, e Racional Engenharia S/A