Hotel Empordà, Gualta
Carlos FerraterInserto en los terrenos agrícolas de los márgenes de la carretera que une las poblaciones de Torroella con Palafrugell, en el Ampurdán de Gerona se acomoda el nuevo hotel que completa los equipamientos del Club de Golf Empordà. Son terrenos de cultivo cuya marcada horizontalidad se ve únicamente interrumpida por la presencia de los montes de Montgrí y el cauce del río Ter, que se convierten en las principales reseñas del homogéneo paisaje circundante.


Las habitaciones presentes en las cuatro orientaciones se abren al entorno, logrando vistas que en las plantas superiores abarcan desde las citadas montañas hasta la playa de Pals. Integrada en el campo de golf, la hospedería está conectada con la arteria de comunicación ro-dada por medio de un vial que zigzaguea entre los hoyos más importantes del circuito deportivo, para proponer un recorrido paisajístico que desemboca en una gran explanada que puede acoger distintos acontecimientos deportivos, además de ocultar la zona de aparcamientos bajo ella.

La geometría del hotel aprovecha los cambios de cota del solar para poder reforzar la solidez de su implantación, además de adaptar la distribución de las alturas en función de estas variaciones, sumando una nueva planta al sur.
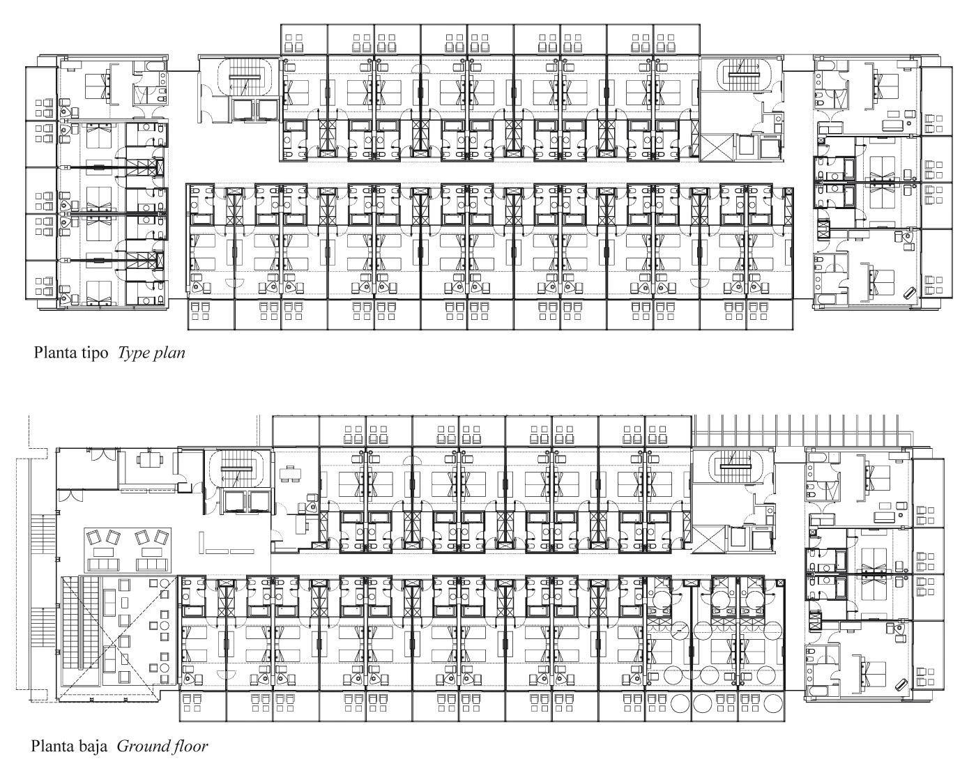
Se elige una geometría sencilla que organiza claramente los recorridos y entradas al edificio, compactando su volumen para conseguir tres alturas en la zona más alta del solar y ganando una planta más en el sur al encontrarse a una menor cota. Este nivel presenta la entrada principal a través de una plaza que concentra los espacios más públicos: la cafetería, el comedor, los salones y las salas multiusos.

Por otra parte, las zonas de servicio, cocinas y almacenes se llevan al extremo contrario, comunicadas a través del aparcamiento, dotadas de iluminación y ventilación naturales por medio de un patio inglés. Los pisos que contienen las ochenta habitaciones y siete suites se distribuyen horizontalmente en forma de H, agrupando los núcleos de comunicación vertical y rompiendo la continuidad de los pasillos al llevarlos hasta el plano de fachada para abrir entradas de luz que marcan su ritmo.



Un baldaquino de madera lacada en las habitaciones forma un primer marco dentro de una sucesión de filtros que complementa la acción de la carpintería y la terraza para encajar el entorno, incorporándolo al interior como un lienzo.
El material de recubrimiento de las fachadas proporciona uniformidad y coherencia al conjunto, eligiendo un recubrimiento de tablas de madera de ipé que, tras ser tratadas con autoclave, varían las tonalidades de los planos ciegos. Los vidrios de las habitaciones se enmarcan por tableros marinos con-figurando las terrazas que se proyectan trascendiendo los lienzos de las cuatro orientaciones y creando una modulación reticulada que estructura la composición de los frentes, aportando un énfasis al volumen por medio del juego de claroscuros. Las masas de sombras se subrayan con la gran marquesina de poniente, situada sobre el acceso.


Cliente Client
Grupo Habitat
Arquitectos Architects
Carlos Ferrater, Martí-Sardà Arquitectes
Colaboradores Collaborators
Nuria Ayala, Sara Ulbrich
Consultores Consultants
Ines Arquer (interiorismo interior design)
Contratista Contractor
Edifica, Grupo Habitat
Fotos Photos
Alejo Bagué