Auditorio y palacio de congresos, Castellón
Carlos Ferrater Carlos Martín González Jaime Sanahuja Carlos Escura- Tipo Centro de congresos
- Fecha 2004
- Ciudad Castellón
- País España
- Fotografía Alejo Bagué
Levantado en el interior de un nuevo parque de 90.000 metros cuadrados del este de la ciudad (en un área en expansión residencial entre la urbe y la franja portuaria del Grau, dentro de los límites que impone la Ronda de Circunvalación), el auditorio y palacio de congresos de Castellón asume en su calidad de icono los deseos de la entidad promotora —la empresa de capital público y privado Castelló Cultural— de potenciar el progreso económico y el encuentro cultural y social. El parque incluye una gran plaza que se desarrolla longitudinalmente y en suave pendiente desde el borde de la parcela hasta la entrada misma del edificio, dirigiendo al público por un paseo entre naranjos, láminas de agua y dunas que culmina bajo el amplio atrio de acceso. La relación con el exterior tiene lugar de forma más controlada en los otros lados del edificio a través de un patio deprimido.


Cuatro piezas se unen para resolver un programa extenso y complejo. La pieza mayor corresponde a la sala sinfónica, de 1.234 plazas, situada a continuación del vestíbulo a una cota inferior, y a la sala de cámara, elevada sobre el mismo vestíbulo para comprimirlo en el punto de entrada: la primera posee dos plateas asimétricas que se abrazan en el punto donde surge el palco, además una bandeja con 100 asientos junto al escenario y una pared de fondo móvil que permite observar, cuando está abierta, la sierra lejana de la Magdalena; la segunda, con una sección en V que deja el escenario en una suerte de pasillo central, da cabida a 400 plazas y está dotada de luz natural.


Todas las salidas de la sala principal confluyen en el gran vestíbulo, situado bajo la platea superior. Desde aquí se aprecia la sala de cámara, suspendida sobre la entrada, y la calle interior que conecta con la sala polivalente.


Todas las salidas de la sala principal confluyen en el gran vestíbulo, situado bajo la platea superior. Desde aquí se aprecia la sala de cámara, suspendida sobre la entrada, y la calle interior que conecta con la sala polivalente.
La segunda pieza en importancia y dimensión es la ‘caja mágica’, paralela a la sinfónica y comunicada por el mismo vestíbulo; concebida como un espacio polivalente, aloja actividades relacionadas con la sala principal o independientes de ella: su espacio se puede ampliar hacia el vestíbulo y hacer uso de éste como área de exposición. Los dos volúmenes restantes tienen un carácter secundario y se sitúan en ambos extremos: el que rodea la sala sinfónica concentra los camerinos, vestuarios, salas de ensayo, biblioteca, almacenes, y salas de prensa y representación; el que rodea la sala polivalente, en el costado opuesto, aloja actividades más institucionales, relacionadas con los congresos y acontecimientos sociales.

La sala sinfónica, con capacidad para 1234 personas, posee dos plateas asimétricas que se abrazan generando la zona de palcos, así como una lengua lateral sobre el escenario con 100 plazas; un hueco horizontal oculto tras un telón elevable permite observar el paisaje lejano de la sierra.




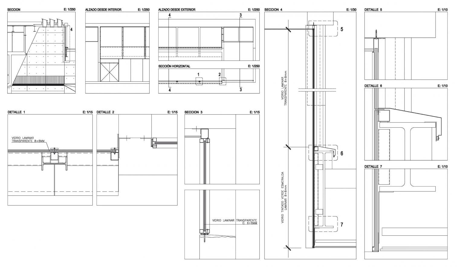
El edificio se resuelve con hormigón blanco, de manera que los amplios paños que quedan vistos multiplican la luz natural que llega al interior. La madera, el vidrio, el acero y la cuarcita gris, ésta última en el pavimento que llega desde la plaza, terminan de dar forma y textura al edificio.

Cliente Client
Proyecto Cultural de Castellón
Arquitectos Architects
Carlos Ferrater, Carlos Martín, Jaime Sanahuja, Carlos Escura
Colaboradores Collaborators
Antonio Gómez, Javier Pascual
Contratista Contractor
OHL; Frapont (carpintería de madera wood framework)
Fotos Photos
Alejo Bagué