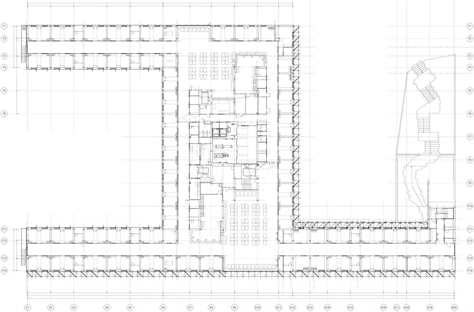
Rodeado de un pequeño bosque y una pradera, este hospital especializado en rehabilitación se sitúa junto al Aeropuerto Internacional de Narita, el más grande de Japón, 50 kilómetros al oeste de Tokio. Con solo dos alturas, el edificio se distribuye en torno a dos patios abiertos para maximizar la superficie de contacto con el entorno natural. En la mitad sur, la cubierta se tapiza con vegetación y se inclina para crear un recorrido continuo que asciende desde el terreno. Además de cumplir una función bioclimática, esta plataforma verde permite que los usuarios accedan al nivel superior para disfrutar de las vistas y realizar ejercicio al aire libre.
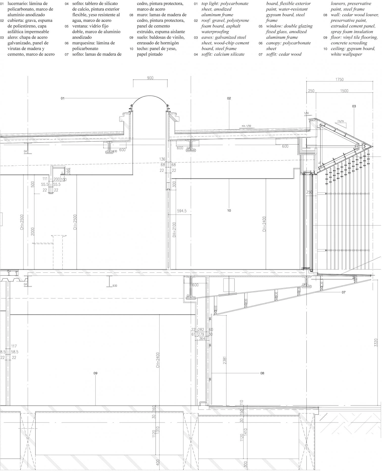
En las fachadas orientadas al sur, una celosía de lamas de cedro filtra la luz del sol y genera un patrón dinámico que reproduce la sombra creada por los árboles. La esbeltez y la precisión de los perfiles de madera contribuye a crear una imagen delicada y acogedora. Las habitaciones se sitúan en el segundo nivel y cuentan con grandes ventanas frente a la cama para que los pacientes puedan mirar hacia el bosque. A lo largo de los pasillos centrales, una serie de lucernarios cenitales introducen iluminación natural y aportan variedad al recorrido interior. La planta baja, por su parte, se reserva para espacios de terapia, consultorios, salas de espera e instalaciones.











Obra Work
Narita Rehabilitation Hospital
Cliente Client
Harmonic Hearts Healthcare Corporation
Arquitectos Architects
Kengo Kuma & Associates; Kengo Kuma (socio encargado partners in charge); Shuji Achiha, Hajime Kita, Taketo Ichise, Kentaro Mamizu, Junki Wakuda
Colaboradores Collaborators
Kanebako Structural Engineers (ingeniería estructural structural engineer); Kankyo Engineering Inc. (instalaciones MEP engineer); Nagata Acoustics (acústica acoustic consultants); Hara Design Institute, Kenya Hara (señalética signage design)
Contratista Contractor
Sumitomo Mitsui Construction Co., Ltd.
Superficie construida Built-up area
3,487 m²
Fotos Photos
Fujitsuka Mitsumasa