Galería Hepworth, Wakefield
David Chipperfield Architects- Tipo Cultura / Ocio
- Fecha 2003 - 2003
- Ciudad Wakefield
- País Reino Unido
La galería Hepworth en Wakefield supone la reubicación y expansión de la galería de arte de esta ciudad a un nuevo emplazamiento en una zona protegida de un meandro del río Calder. La colección de esta institución alberga obras de maestros británicos y europeos, a la que la nueva sede añadirá una treintena de escayolas originales de la importante artista local Barbara Hepworth.
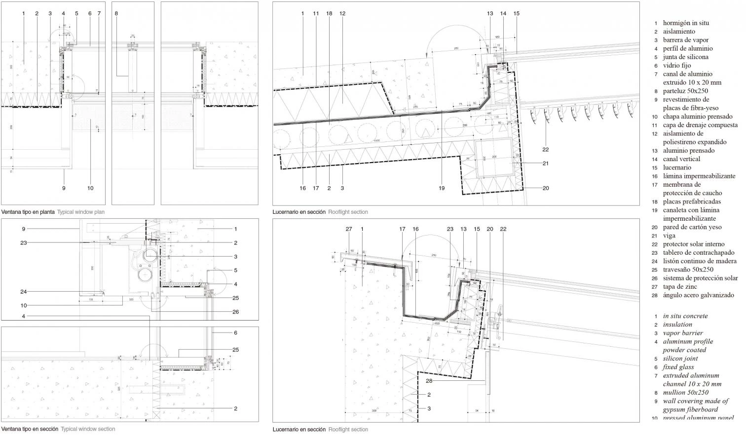
El proyecto está formado por un conjunto de bloques trapezoidales de diferentes tamaños que responden a la escala y al perfil de las pequeñas construcciones industriales cercanas. Rodeado por agua en dos de sus lados y visible en todos sus frentes, el solar —y por tanto, también el edificio— carece de un frente principal o trasero. Los bloques que conforman el conjunto se corresponden con cada una de los ámbitos interiores: las salas de exposición en las plantas altas están dimensionadas en función del tamaño de las obras expuestas, con espacios pequeños para las obras más antiguas y de mayor tamaño para las piezas contemporáneas. En el nivel inferior de estos cuerpos se integran las funciones auxiliares (un espacio para actuaciones, un taller educativo, equipamientos públicos y zonas administrativas y de instalaciones). La finalización de la galería está prevista para 2010.









Cliente Client
Wakefield Metropolitan District Council
Arquitectos Architects
David Chipperfield Architects
Colaboradores Collaborators
Yael Brosilovski, Katrin Bruenjes, David Chipperfield, Jesús Donaire, Corina Ebeling, Claudia Faust, Jason Good, David Gutman, Nick Hill, Victoria Jessen-Pike, Ilona Klockenbusch, Daniel Koo, Laurent Masmonteil, Hau Ming-Tse, Stephen Molloy, Hiroshi Nagata, Anna Naumann, Dean Pike, Billy Prendergast, John Puttick, Declan Scullion, Pierre Swanepoel, Oliver Ulmer, Steffi Wedde
Consultores Consultants
Ramboll Whitbybird: Aunirbaan Bagchi, Peter Chaplin, Gilles Clement, Michael Bartyzel, Thomas Hallam, Lee Hargreaves, Andrew Keelin, Tony McManus, Christian Riesner, Anton Sawicki, Mark Tanner, Robert Vint, Mark Whitby (estructura structural engineer); Turner & Townsend: Mike Connolly, Mark Matthews, Christopher Scoffield, Matthew Twigger (aparejador quantity surveyor); Arup & Partners: Andy Sedgwick, Florence Lam, Andrew McNeil (iluminación lighting consultant); Turner & Townsend: Peter Goodrick, Michael Lumb, Howard Metcalf, Andrew Roach-Bowler, James Shaw, Mike Sweet, Justina Turner (coordinación de Proyecto project manager); Gross Max: Bridget Baines, Ross Ballard (paisajismo landscape architect); Whitby Bird & Partners: Neesha Gopal, Will Stevens, Philippe Willareth (fachada façade consultant)
Contratista Contractor
Laing O’Rourke Northern Limited: Duncan Beaumont, Terry Hughes, Andy Pickmere
Fotomontajes Photomontages
David Chipperfield Architects: Alessandro Milani