30 Grosvernor Square en Londres
David Chipperfield Architects- Tipo Rehabilitación Hotel Cultura / Ocio
- Material Piedra
- Fecha 2025
- Ciudad Londres
- País Reino Unido
- Fotografía Simon Menges
La antigua embajada de Estados Unidos en Londres, situada en el histórico barrio de Mayfair y única obra del arquitecto Eero Saarinen en Reino Unido, ha sido transformada en el hotel Chancery Rosewood, recientemente inaugurado, tras una meticulosa rehabilitación llevada a cabo por David Chipperfield Architects. Este edificio protegido de 1960 ha sido completamente adaptado a su nuevo uso, preservando su valor histórico y arquitectónico.
El proyecto eliminó las barreras de seguridad y el cerco de hormigón perimetral originales, conectando el edificio con Grosvenor Square, mientras se permite ubicar espacios comerciales a nivel de calle. En la planta baja se suprimen las particiones interiores para configurar un espacio continuo, caracterizado por la singular cuadrícula estructural del forjado diseñado por Saarinen.
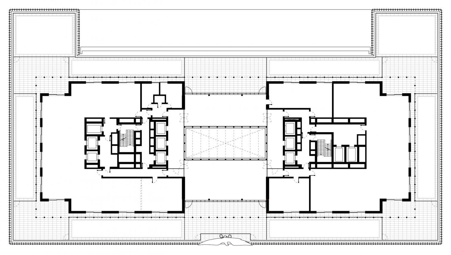
El hotel se organiza alrededor de un atrio central, que se extiende hasta la sexta planta ampliada verticalmente, siguiendo el lenguaje establecido de las plantas inferiores, con un nuevo ritmo y una mayor altura entre el suelo y el techo. El diseño es el resultado de investigaciones históricas que revelaron una propuesta inicial de Saarinen la cual sugería un enfoque similar. Por encima de ella, un pabellón retranqueado alberga suites y una terraza ofrece vistas privilegiadas.
La materialidad del proyecto retoma la piedra Portland y el aluminio anodizado dorado, utilizado en la escultura del águila dorada de Theodore Roszak, ahora restaurada. Más de cuatro mil elementos se desmontaron cuidadosamente para su limpieza y renovación antes de volver a ser instalados.
Con una superficie total de 48.000 m², el hotel combina la conservación patrimonial con una renovación funcional. Varios diseñadores de interiores participaron en la creación de espacios, incluyendo habitaciones, salones y restaurantes.













