Centro Pilares Iztapalapa en la Ciudad de México
Fernanda Canales- Tipo Centro cívico Cultura / Ocio Escuela Educación
- Material Hormigón
- Fecha 2023
- Ciudad Ciudad de México
- País México
- Fotografía Rafael Gamo Onnis Luque
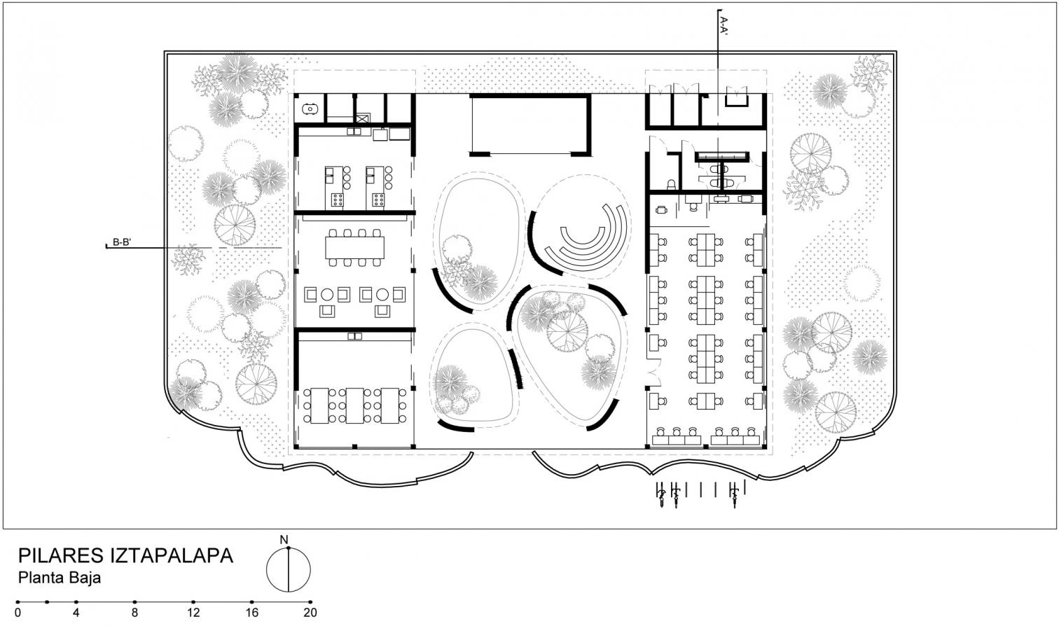
Como parte de un programa para mejorar las áreas más desfavorecidas de la capital, un pequeño centro ofrece espacios de formación y encuentro junto a una de las mayores cárceles del país.
Sin ser hermético a la calle, con la que se relaciona por medio de una celosía cerámica, el edificio se abstrae del duro contexto volcándose a cuatro patios que exponen la estructura de hormigón, óptima por su durabilidad y bajo coste.











Centro Pilares Iztapalapa
Pilares Iztapalapa Center, Mexico City (Mexico)
Arquitectos Architects
Fernanda Canales; Aarón Jassiel Pérez (proyecto y supervisión design and supervision); Iris López Rico, Marco Antonio López Rico (proyecto de ejecución executive project)
Consultores Consultants
Gerson Huerta, Grupo SAI (estructura structure)
Contratista Contractor
DE ARQ Diseño de espacios
Superficie Area
633 m²
Fotos Photos
Rafael Gamo; Onnis Luque