Estadio Tammela en Tampere
JKMM- Tipo Deporte Estadio Vivienda
- Fecha 2024
- Ciudad Tampere
- País Finlandia
- Fotografía Tuomas Uusheimo Hannu Rytky
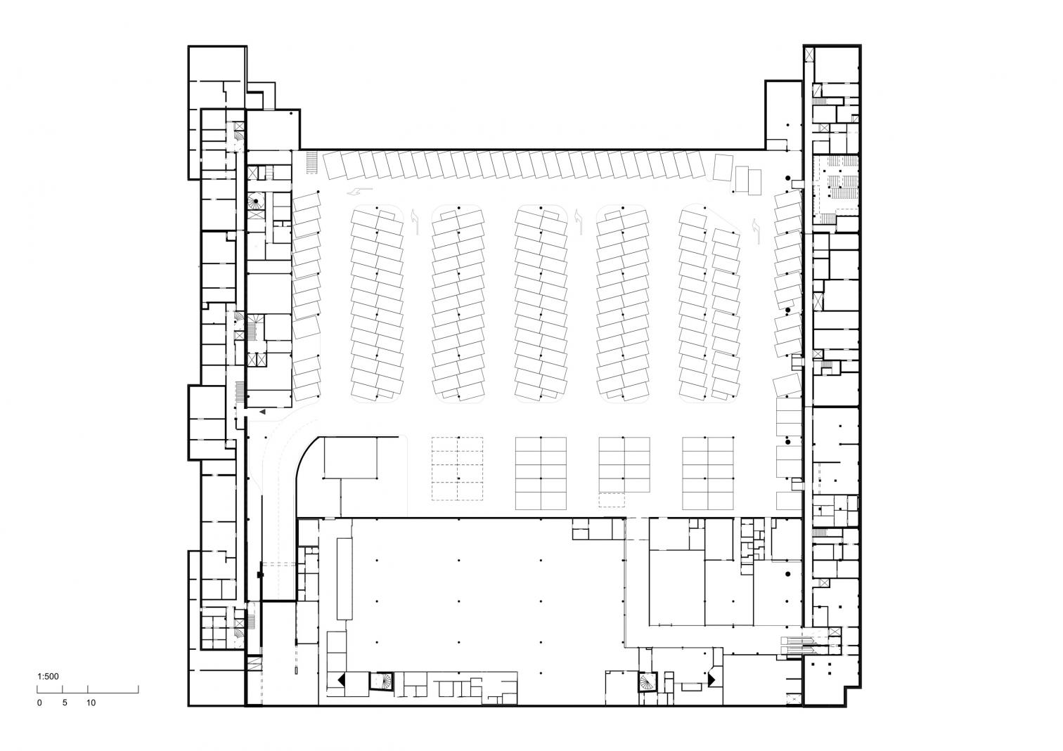
El estadio está ubica en el centro del distrito de Tammela, en la ciudad finlandesa de Tampere, sobre el emplazamiento de un campo de fútbol construido en la década de 1930. Ante el deterioro de las instalaciones, se decidió mantener esta localización y, al mismo tiempo, densificar el área urbana. Para ello, en 2014 se convocó un concurso por invitación, ganado por el estudio JKMM con la propuesta denominada Hattutemppu (Hat Trick), que combina deporte, vivienda y comercio en un bloque híbrido.
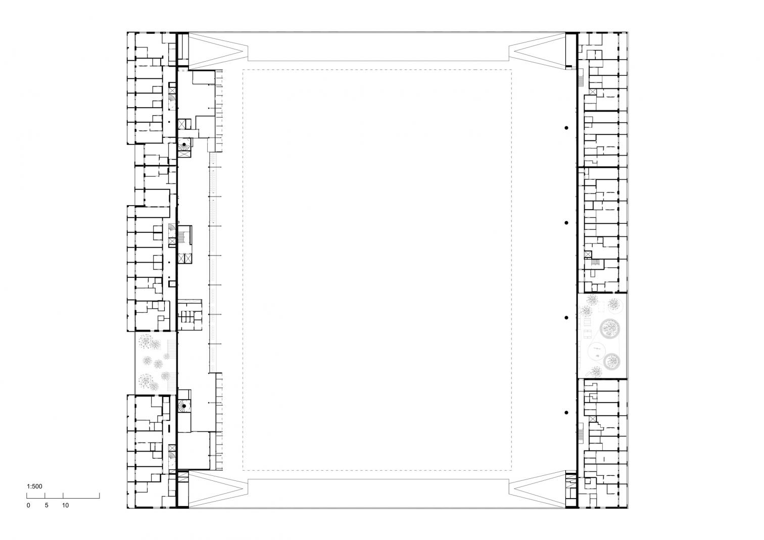
El conjunto abarca casi 50.000 m² y se organiza en ocho parcelas interconectadas que incluyen un estadio de fútbol con certificación UEFA categoría 4, cinco edificios residenciales con 256 apartamentos, un centro comercial y aparcamientos. El estadio, con una superficie de 13.500 m², ofrece instalaciones para el uso deportivo con capacidad para acoger a 8.000 espectadores.
El campo de fútbol está flanqueado por bloques residenciales al este y al oeste, revestidos de ladrillo claro que evocan la tradición arquitectónica de Tampere. Estos volúmenes se abren hacia un espacio urbano y se articulan mediante una gran cubierta arqueada que constituye el rasgo más distintivo del proyecto. La cubierta asimétrica, sostenida por columnas de hormigón y acero con luces superiores a los 100 metros, genera gradas inclinadas en los bordes más altos del estadio y zonas de asientos adicionales con protecciones curvas en los niveles inferiores.
Las gradas se elevan directamente desde el borde del campo, con acabados de hormigón visto y cerramientos vidriados en los lados norte y sur, que aportan luz, transparencia y protección frente al viento. Las estrategias acústicas garantizan el confort residencial durante los eventos. Cada esquina del estadio cuenta con un pilar inclinado, de base de hormigón armado y parte superior de acero ramificado prefabricado, que sostiene las cubiertas y transmite las cargas a los cimientos, evitando esfuerzos sobre los edificios residenciales. Por su innovación tipológica y urbana, el proyecto es candidato al Premio Mies van der Rohe 2026.



























