Espacio escénico, Níjar
MGM Morales De Giles Arquitectos- Tipo Centro de artes escénicas
- Fecha 2005
- Ciudad Níjar (Almería)
- País España
- Fotografía Fernando Alda Jesús Granada
La potencia del paisaje de Níjar, el desierto, la topografía y el horizonte fueron los elementos clave en la génesis del proyecto. El objetivo era atrapar el entorno no sólo con la mirada sino con el espacio.


Maquetas de plastilina sirvieron en un primer momento para dar forma al volumen, modelando con las manos un sólido continuo en el que apenas se diferenciaba el edificio del terreno. Finalmente se decidió rehundir la pieza para adaptarse a la escala del pueblo, que cae en cascada hasta el solar, limitando la altura hacia la calle principal por donde accede el público.


La variedad de usos requeridos suscitó la división del centro en dos piezas separadas; una de ellas acoge el denominado programa de día, con salas de ensayo, oficinas y salas de exposiciones, mientras que la otra alberga el programa de noche, con cine, teatro y salón de baile. Ambas se conectan por un tercer cuerpo excavado, situado por debajo de la cota de la calle, en el que se acomodan camerinos, vestuarios e instalaciones. De este modo se consigue que los edificios afloren frente al barranco de forma aislada, dejando alrededor de ellos unos patios-fosos, por encima de los cuales asoma el terreno natural fijado con gaviones.


Se desea lograr que la vida del centro esté comprendida entre el ir y venir de un lado a otro, esperando que el eco y los cuerpos correteen entre los volúmenes, por donde penetran el paisaje y las marcadas sombras del tórrido verano almeriense.

Los accesos también se especializan: el diurno, más cotidiano, más cercano al pueblo, se resuelve por un patio inglés a través un vestíbulo exterior en sombra, mientras que el nocturno, más ceremonial, sigue un recorrido lineal semielevado tangente al edificio hasta la misma ‘boca’ del teatro.

Los dos volúmenes se diseñan como fragmentos de un tubo hueco de sección rectangular en el que se insertan los paquetes funcionales, dejando siempre un vacío continuo que se abre paso entre estas cajas y permite percibir el interior como un espacio único. Esta coherencia formal se traslada también a la construcción.



Las dos piezas son contenedores abstractos, con un espacio interior único donde se introducen las cajas de programa. El intercambio con el exterior es constante gracias a generosos huecos que se encienden al caer la noche.

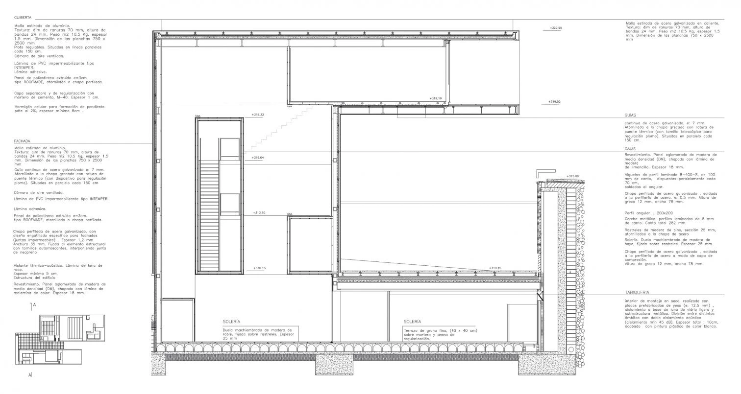
El cerramiento, realizado mediante la superposición de pieles, es homogéneo en toda la cáscara tubular, es decir, no hay diferencia de tratamiento entre los paramentos verticales y la cubierta. El entramado estructural se cierra con chapa colaborante, sobre la que se coloca una capa de aislamiento térmico y una lámina impermeabilizante. Por último, el edificio se envuelve con sus mejores galas: una chapa perforada tensada que deja el nuevo centro listo para la función.


En contraste con los tonos homogéneos y serenos del paisaje y con la propia piel exterior que envuelve el edificio, los espacios interiores se bañan con vivos colores para singularizar los distintos elementos funcionales.


Cliente Client
Junta de Andalucía, Diputación Provincial de Almería, Ayuntamiento de Níjar
Arquitectos Architects
José Morales, Sara de Giles, Juan G. Mariscal
Colaboradores Collaborators
Gabriel Flores, Reyes López (aparejadores quantity surveyors)
Consultores Consultants
Francisco Duarte (estructuras structures), Acuili, Amoenitas, Di Marq (instalaciones mechanical engineering), Chemtrol (equipamiento escénico stage facilities)
Contratista Contractor
Garasa
Fotos Photos
Fernando Alda; Jesús Granada