Centro hospitalario ICTAM
MGM Morales De Giles Arquitectos- Tipo Hospital Salud
- Fecha 2011
- Ciudad Sevilla
- País España
- Fotografía Jesús Granada
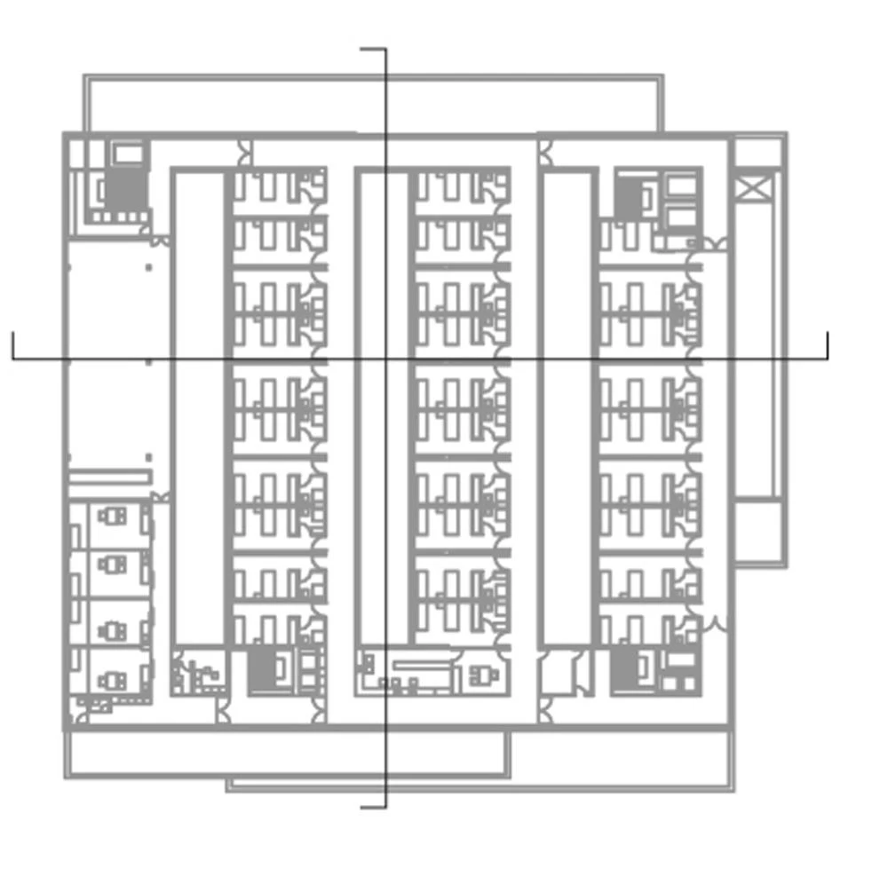
El centro hospitalario del Instituto Cartuja de Técnicas Avanzadas en Medicina (ICTAM) está situado en el parque científico-tecnológico de la Cartuja, que ocupa el sector norte de esta isla de Sevilla. El hospital, localizado entre dos calles paralelas de dirección norte-sur, se estructura en bandas perpendiculares al viario con tres patios longitudinales que distribuyen el programa. El edificio combina así la racionalidad funcional con la amabilidad de los patios interiores que fisuran la compacidad del bloque y llenan de luz los espacios interiores.

El hospital se organiza en bandas programáticas separadas por patios. Uno de ellos funciona como una calle interior que canaliza la comunicación hacia los vestíbulos de cada planta, abiertos con vidrio hacia el paisaje exterior.

El proyecto plantea el uso de uno de los patios como una gran calle pasante que recoge los accesos y desde la que se relaciona todo el programa del hospital. En este vacío interior se recogen las comunicaciones que llevan hacia los vestíbulos de los diferentes niveles. Los vestíbulos son piezas estratégicas en el edificio, ya que canalizan el acceso a las estancias y funcionan como áreas polivalentes para el descanso y el contacto con médicos. Por ello, estos espacios se configuran como miradores hacia el paisaje rural y urbano que rodea el edificio, abriéndose hacia el exterior como grandes cajas de vidrio. Este esquema de comunicación —una calle interior con vestíbulos anexos en cada planta— es muy claro y reduce los recorridos, estableciendo el predominio de la horizontalidad en el edificio frente a la comunicación vertical.


El esquema de bandas fragmenta el programa en bloques funcionales con la mejor orientación para iluminar y ventilar naturalmente las estancias, y permite una separación clara de las circulaciones interna y externa.

Los otros dos patios organizan los paquetes funcionales y permiten iluminarlos con orientación sur. La planta sótano alberga las áreas sanitarias con maquinaria de diagnóstico, quirófanos, etc., que precisan aislamiento; sin embargo, el recorrido por esta planta se dulcifica con la iluminación natural procedente de uno de estos vacíos, que baja como un patio inglés hasta el nivel del sótano. En planta baja, los espacios de gestión y administración ocupan la franja sur, volcada hacia la calle interior de acceso, mientras las otras dos bandas de programa contienen las dependencias de urgencias, en relación más directa con la calle. Las plantas sobre rasante albergan las habitaciones para hospitalización, que se sitúan en las bandas abiertas hacia el sur y los pasillos de comunicación hacia el norte.
Tanto las fachadas exteriores como las de los patios interiores se recubren con un acabado de chapa metálica perforada acompañada de vidrio transparente en las áreas que deben recibir una iluminación directa y en los vestíbulos de cada planta. La combinación de vidrio y chapa en dos capas superpuestas posibilita la iluminación, ventilación y privacidad de las estancias que vuelcan a los patios, sin romper la homogeneidad general.


Cliente Client
Empresa Pública de Gestión de Activos (A.G.E.S.A.)
Arquitectos Architects
José Morales, Sara de Giles
Colaboradores Collaborators
Carlos Bauzá, Jairo Fernández, Alberto Germá, Isabel Jiménez, Ángel Barreno, Jordi Bolaños, Lola Hermosilla; Giulia Barra, Elena Jiménez, Juan J. Olmo, Rubén Olivares (maqueta model)
Consultores Consultants
INSUR J.G (instalaciones building systems), NB35 (estructura structure)
Contratista Contractor
AYNOVA
Fotos Photos
Jesús Granada