Escuela Ranelagh, Dublín
John Tuomey Sheila O’Donnell O’Donnell + Tuomey Architects- Tipo Educación Escuela
- Material Ladrillo
- Fecha 1992
- Ciudad Dublín
- País Irlanda
- Fotografía Ros Kavanagh
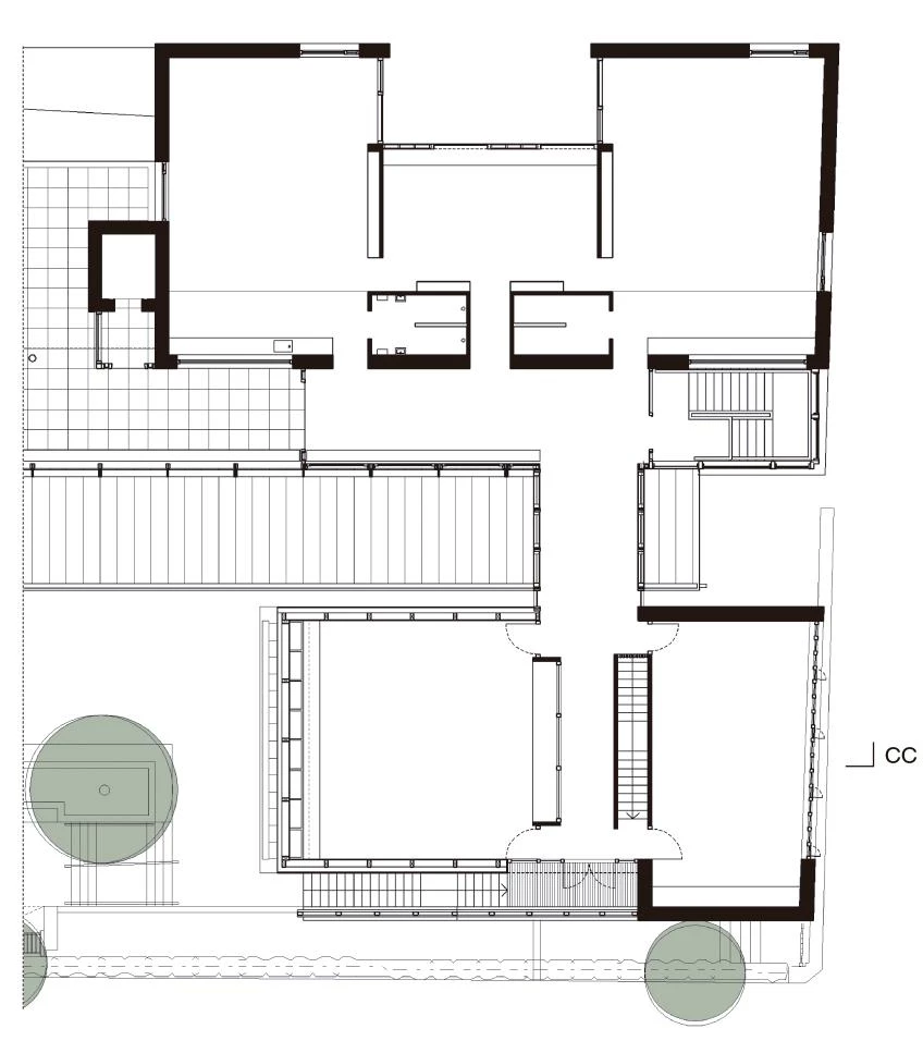
Un colegio puede entenderse al mismo tiempo como un gran hogar y como una pequeña ciudad ya que responde a requerimientos tanto domésticos como cívicos. En este sentido, la escuela Ranelagh está formada por espacios interiores y exteriores con diferentes grados de privacidad que se superponen generando un conjunto compacto de elementos interdependientes. Tanto en el nivel inferior como en el superior hay zonas de juego al aire libre comunicadas visualmente con los espacios comunes. En cada planta, cuatro aulas se agrupan por parejas y se conectan entre sí mediante un pasillo que desemboca en los núcleos de escaleras situados en los extremos. Los muros de ladrillo, aparejados a soga y tizón, están formados por piezas cerámicas reutilizadas y los tramos de piedra se construyen como las tapias del entorno, de manera que el edificio se integra visualmente en su contexto urbano.
Diez años después de que se terminara la escuela se añadió un nuevo volumen en la esquina sureste del patio para alojar un aula de arte, una sala de reuniones, habitaciones polivalentes y otros servicios complementarios. La ampliación prolonga la envolvente de ladrillo reciclado, utiliza madera de iroko en las carpinterías y se cierra mediante una cubierta inclinada de acero.
















Obra Work
Ranelagh School
Cliente Client
Ranelagh Multi-Denominational School
Arquitectos Architects
O’Donnell+Tuomey
Consultores Consultants
Fearon O’Neill Rooney (estructura structure) —ampliación?extension—; J.V. Tierney & Co. (instalaciones M&E engineers); Gem Manufacturing (carpintería joinery)
Contratista Contractor
Pierce Healy Developments
Superficie construida Built-up area
1,150 + 291 m²
Presupuesto Budget
€1.3 + 1M + VAT
Fotos Photos
Alice Clancy; Dennis Gilbert/VIEW; Ros Kavanagh