Escuela primaria Cherry Orchard, Dublin
John Tuomey Sheila O’Donnell O’Donnell + Tuomey Architects- Tipo Educación Escuela
- Fecha 2000
- Ciudad Dublín
- País Irlanda
- Fotografía Dennis Gilbert Marie-Louise Halpenny
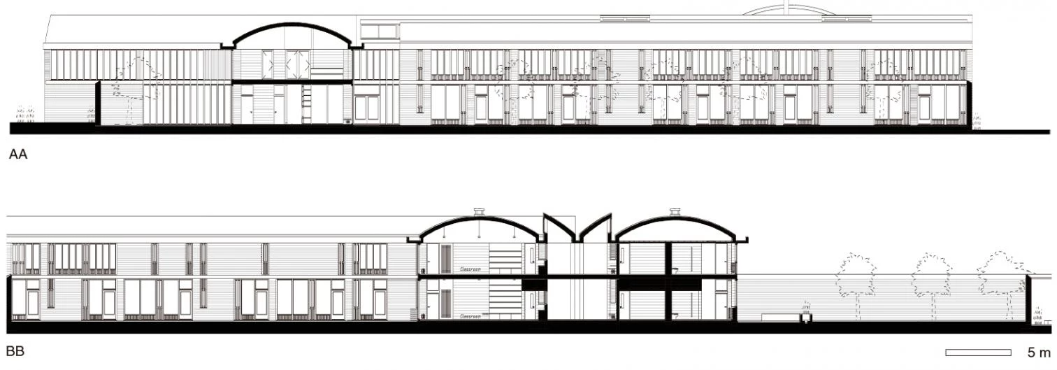
En un suburbio conflictivo en el oeste de Dublín, la escuela Cherry Orchard se aísla de su entorno mediante un muro perimetral de ladrillo de más de tres metros de altura. Las aulas se distribuyen de manera introspectiva en cuatro volúmenes alargados dispuestos en forma de aspa. Entre las piezas construidas se sitúan cuatro patios cultivados con cerezos que sobresalen por encima del muro. Las cubiertas abovedadas y los amplios canalones generan un perfil reconocible que, junto a los jardines cercados, contribuyen a crear un lugar con identidad propia, en contraste con la falta de carácter del contexto urbano. Para suavizar el fuerte impacto de las amplias superficies cerámicas, se selecciona un determinado tipo de ladrillo y un mortero rico en cal que proporciona una textura variada y una gama de colores acogedora.
Las aulas se iluminan mediante ventanas que se abren hacia los patios; mientras que los espacios de distribución del nivel superior cuentan con lucernarios curvos que introducen luz natural difusa. Los canalones intermedios actúan además como elementos estructurales que reciben la carga de las bóvedas y la transmiten a los pilares circulares. Por su parte, los canalones perimetrales arrojan sombra sobre la fachada y sirven de parapeto para impedir el acceso a la cubierta.












Obra Work
Cherry Orchard School
Cliente Client
St. Ultan’s School. Department of Education and Skills
Arquitectos Architects
O’Donnell+Tuomey
Colaboradores Collaborators
Janet Mullarney (arte art)
Consultores Consultants
PH McCarthy Consulting Engineers (estructura structure); PH McCarthy Consulting Engineers (instalaciones M&E engineers); Gem Manufacturing (carpintería joinery)
Contratista Contractor
Townlink Construction Ltd.
Superficie construida Built-up area
4,400 m²
Presupuesto Budget
€10 M + VAT
Fotos Photos
Dennis Gilbert/VIEW; Marie Louise Halpenny