Equipamiento municipal en Santa Coloma de Cervelló (Barcelona)
labaula cooperativa- Tipo Rehabilitación Cultura / Ocio Centro cívico
- Fecha 2024
- Ciudad Santa Coloma de Cervelló (Barcelona)
- País España
- Fotografía Adrià Goula
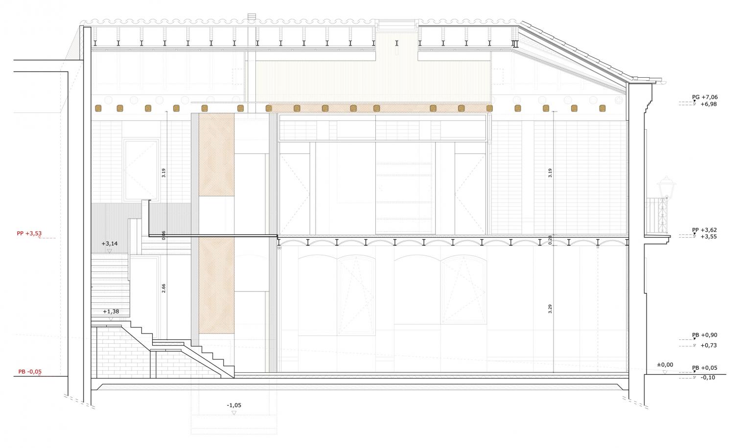
Hasta que Eusebi Güell llegó para abrir su fábrica textil y su pionera colonia obrera con la ayuda de Gaudí, Santa Coloma de Cervelló no era más que un villorrio agrícola a orillas del Llobregat, de cuyo pasado modesto sigue dando testimonio la antigua casa consistorial: un edificio de mediados del siglo xix que desde entonces ha conocido un sinfín de usos y que languidecía en el corazón del pueblo por su deficiente mantenimiento. Con idea de recuperarlo como equipamiento municipal, su interior se ha renovado con amplio grado de libertad, pues digno de conservación no era más que el propio sistema constructivo. Se decidió dejar desnudos los muros originales de mampuestos y hacer legibles sus estratificaciones, que quedan en armonía con los nuevos paneles de cemento-madera y las hojas de ladrillo acústico que visten la cara interior de las fachadas para mejorar su aislamiento. Como único acento en la deferente paleta material, el núcleo de comunicación vertical en torno al cual pivotan las distintas salas polivalentes se ejecuta en un hormigón crudo, que a su vez aporta cierta continuidad entre los dos niveles.











