Centro Cívico Lleialtat Santsenca, Barcelona
Harquitectes- Tipo Rehabilitación Cultura / Ocio Centro cultural Centro cívico
- Fecha 2012 - 2017
- Ciudad Barcelona
- País España
- Fotografía Adrià Goula
- Marca Lamp
El proyecto parte de tres premisas: entender el valor de la historia de Lleialtat Santsenca (1928), una antigua cooperativa obrera del barrio de Sants; conocer con precisión el estado (físico) del edificio para aprovechar todo lo aprovechable; y ser sensibles con todo el proceso colaborativo que iniciaron las entidades del barrio en 2009 para recuperarlo.


El proyecto aprovecha lo existente y derriba lo que no es reutilizable, dejando así las fachadas, medianeras y algunos elementos estructurales; el aspecto envejecido se mantiene como reflejo del pasado histórico del edificio.

Para ello se plantean cuatro objetivos básicos: primero, aprovechar todo lo que sea útil de la edificación original, derribando lo que no sea reutilizable; segundo, trazar una estrategia de intervención definiendo aquellas acciones imprescindibles, de carácter más conservacionista o más aditivo, que permitan recuperar y aumentar el potencial de uso de todos los espacios; tercero, establecer un diálogo intenso —y tenso, si es necesario— con el contexto; y cuarto, elaborar una propuesta sostenible, tanto respecto a la preexistencia como a las nuevas intervenciones.

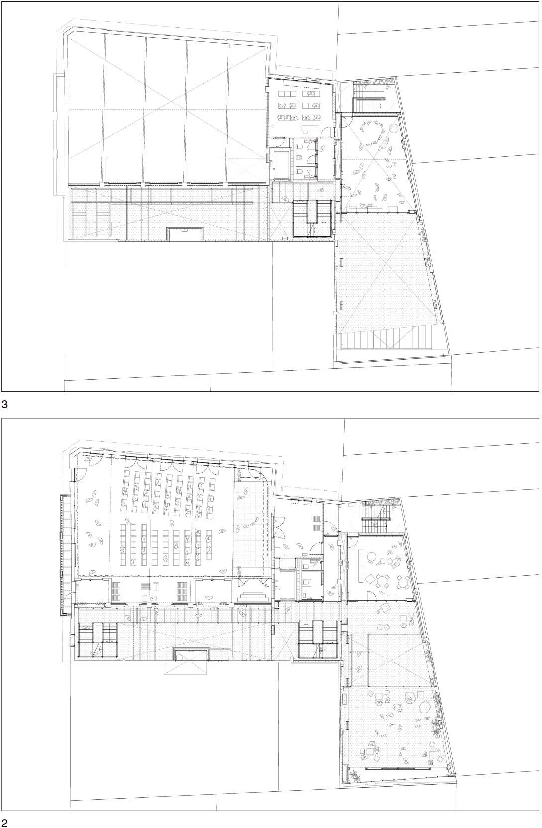
El edificio tiene tres cuerpos estructurales: el principal, con fachada a las calles Olzinelles y Altafulla, que alberga las dos salas principales (antiguo comercio en planta baja y sala de actos en primera); el central, con acceso desde la calle Altafulla; y el interior, sin acceso a la calle, que forma una L con los otros dos. Las carencias de salubridad en todas las piezas, y su mala conexión, llevaron a la decisión de proponer un gran vaciado longitudinal, uniendo los tres cuerpos y todas las salas—existentes y nuevas— mediante un recorrido gradual, desde las piezas más públicas hasta las más privadas. El vaciado consiste en el derribo total de la crujía a raíz de la medianera de la calle Olzinelles, para convertirla en una suerte de calle interior, cuya continuidad, en el segundo cuerpo estructural, se alcanza maximizando el patio de luces existente. Finalmente, detrás del cuerpo estructural, un triple espacio contiguo al vaciado de los dos cuerpos previos culmina la secuencia. La sucesión de vaciados configura un atrio que, mediante la aparición de ‘nuevas’ fachadas contrapuestas a las medianeras originales —con rastros físicos de toda la historia del edificio—, aporta luz y ventilación a todas las salas y se convierte en vertebrador de las circulaciones horizontales y verticales, aportando un nuevo potencial de uso para programas imprevistos.


Los tejados existentes no se pueden aprovechar; sólo se conservan las cerchas de la sala principal, y se construye una nueva cubierta en todo el edificio asociada volumétricamente a los tres cuerpos estructurales: tres cubiertas ligeras a dos aguas, de policarbonato celular al sur y chapa aislada al norte, sobre estructura metálica, permiten la iluminación del atrio y facilitan la ventilación, con las ventanas en la parte más alta para propiciar convecciones naturales.


El Atrio, inspirado en el Teatro Oficina de Lina Bo Bardi, es un espacio intermedio bioclimatizado que vertebra todas las circulaciones a través de una serie de pasarelas y escaleras que evocan la imagen de los andamios de obra.


El edificio es autónomo climáticamente, y funciona a partir de estrategias pasivas basadas en la inercia térmica y el aislamiento; tres cubiertas ligeras permiten la iluminación natural y facilitan la ventilación.




Las medianeras existentes se preservan y se hacen apeos con vigas metálicas para las nuevas aberturas. Con ladrillo perforado visto se tapian los huecos innecesarios y se construyen los nuevos muros estructurales; en las piezas que necesitan aislamiento se utilizan entramados ligeros de madera.




Cliente Client
BIMSA (Barcelona d’Infraestructures Municipals)
Arquitectos Architects
Harquitectes (David Lorente, Josep Ricart, Xavier Ros, Roger Tudó)
Colaboradores Collaborators
Montse Fornés, Berta Romeo, Jordi Mitjans, Carla Piñol, Blai Cabrero Bosch, Toni Jiménez, Jorge Suárez-Kilzi
Consultores Consultants
Societat Orgànica (consultoría medioambiental environmental consultant); DSM arquitectes (estructura structure); VIDAL enginyeria i consultoria (instalaciones mechanical engineering); i2A (acústica acoustics); Aumedes DAP (mediciones measurements); Chroma rehabilitacions integrals (restauración fachada facade restoration); ESITEC enginyeria (audiovisual)
Superficie construida Floor area
1.750 m²
Presupuesto Budget
2.730.000 € (PEC contract budget)
Fotos Photos
Adrià Goula, Harquitectes