Edificio Thomas P. Murphy en la Universidad de Miami
Arquitectonica- Tipo Educación Universidad
- Material Hormigón
- Fecha 2018
- Ciudad Miami (Florida)
- País Estados Unidos
- Fotografía Robin Hill
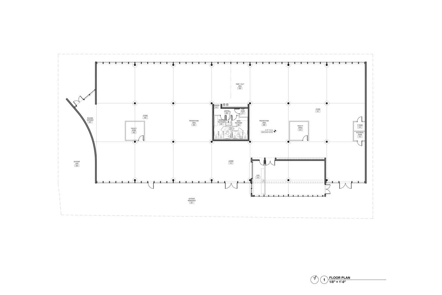
El edificio Thomas P. Murphy Design Studio es la última incorporación al campus de la Universidad de Miami en la ciudad de Coral Gables (Florida). La firma local Arquitectonica ha levantado para su escuela de arquitectura esta construcción de planta rectangular y 1.858 metros cuadrados, protegida por una amplia cubierta ondulada. La estructura de hormigón visto está sustentada por estrechas columnas de acero, y presenta fachadas con paneles de vidrio de suelo a techo resistentes a huracanes. El interior diáfano incorpora cortinas de tela rojiza para delimitar los espacios.








