Edificio residencial Mazarí en Málaga
Endosdedos arquitectura- Tipo Vivienda
- Material Cerámico
- Fecha 2024
- Ciudad Málaga
- País España
- Fotografía Loveladrillo - Fernando Gómez
- Marca Cortizo Faro Barcelona Otis Saloni
En el barrio malagueño del Molinillo, en el número 48 de la calle Duque de Rivas, se erige este bloque con siete viviendas. El proyecto toma el nombre de ‘mazarí’, que hace referencia tanto a un material cerámico como al horno artesanal utilizado para su fabricación, cuyo proceso de cocción puede durar una semana. En la cercana Vélez-Málaga, aún se conservan catorce de estos tejares históricos, cuya tradición se remonta al siglo XVI.
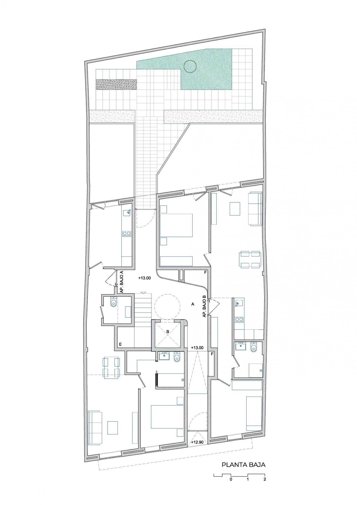
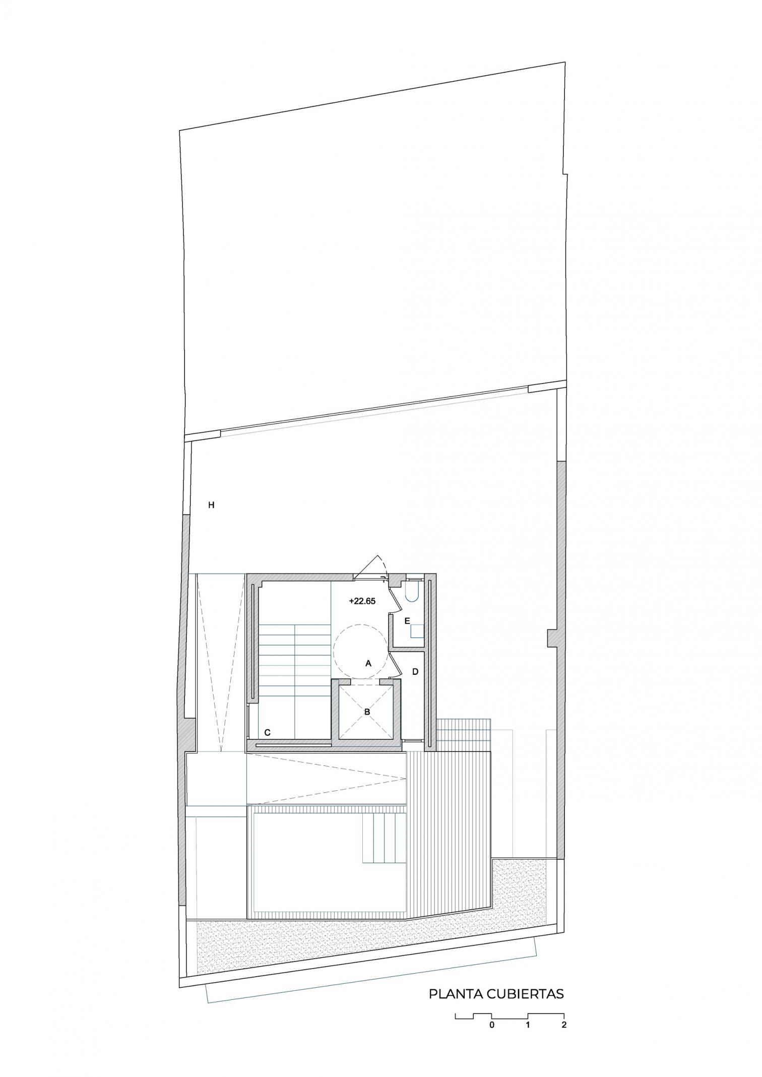
Las restricciones urbanísticas limitaban el aprovechamiento de la parcela donde se encuentran las nuevas viviendas, por lo que el espacio restante se convierte en un pequeño jardín interior, que conserva vestigios de la construcción original en los muros de cantería de las medianerías existentes. El edificio está organizado en cuatro niveles, siendo el último un solárium con una pequeña piscina.
Tanto el exterior como el interior del edificio se caracterizan por el uso de cerámica en diversos formatos y acabados. La fachada principal está compuesta por ladrillo macizo destonificado de Vélez-Málaga, con llagueado en mortero de cal. La modulación de la fachada responde al formato del ladrillo y las celosías cerámicas cuadradas (15 x 15 x 7 cm), que definen las balconeras y protecciones solares. Estas últimas son móviles y están alojadas en bastidores metálicos, lo que permite ajustarlas a lo largo de las galerías. El diseño de la fachada busca conectar visualmente con otros edificios de la zona construidos con el mismo material.
En contraste, la fachada trasera presenta una disposición más desordenada de huecos y macizos, con carpinterías cerámicas sobre un lienzo de mortero de cal romano natural, sirviendo como telón de fondo para el patio-jardín. En el interior, los alicatados cerámicos en tonos naturales, ocre y azul se combinan con la solería de terrazo y las carpinterías de roble, complementando el cromatismo global empleado.



















