Edificio Mirador, Madrid
MVRDV Blanca Lleó- Tipo Colectiva Vivienda
- Fecha 2001 - 2005
- Ciudad Madrid
- País España
- Fotografía Roland Halbe Miguel de Guzmán Rob't Hart
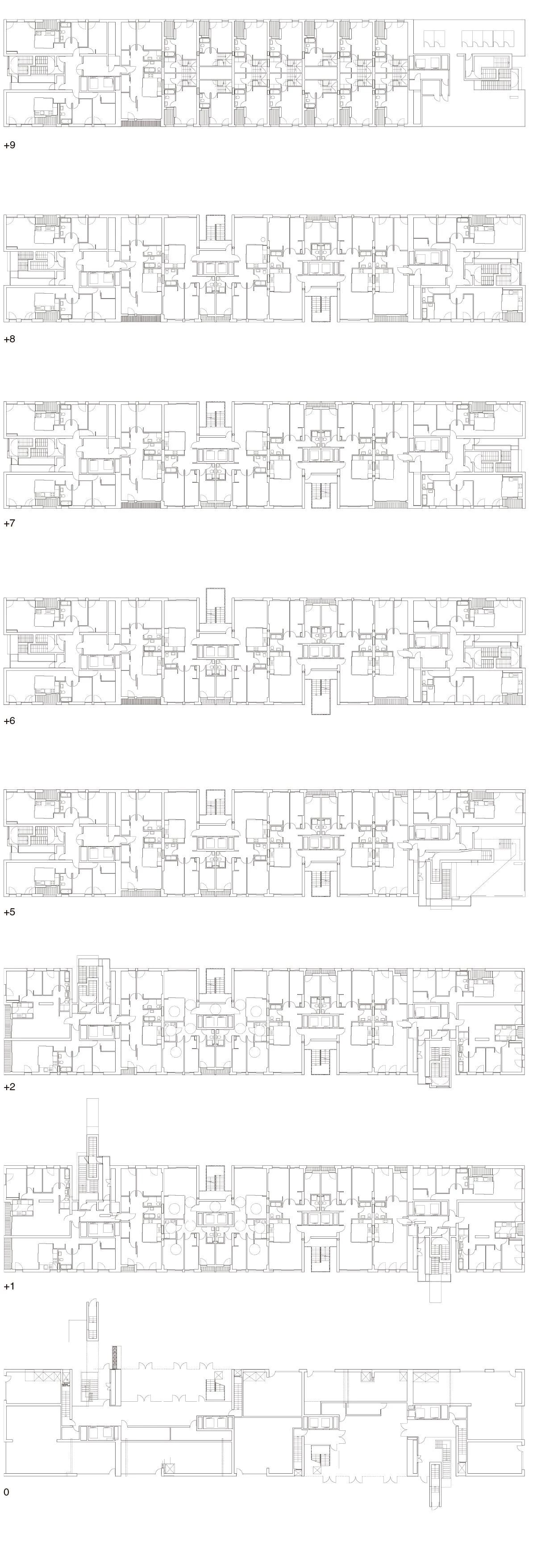
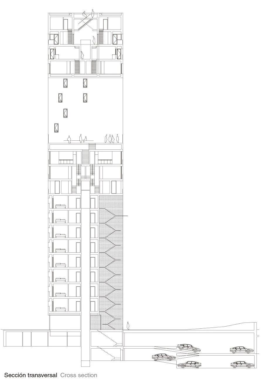
El pau de Sanchinarro es uno de los barrios periféricos de reciente creación de la ciudad de Madrid. Su tejido urbano se configura a base de manzanas cerradas de seis a ocho alturas, salvo en la rotonda principal, donde se optó por levantar un hito que caracterizase el barrio. La torre, de 21 plantas, emula una de las manzanas de la zona levantada en vertical, y su patio central se convierte en un mirador en altura que funciona como espacio colectivo abierto hacia las magníficas vistas de la sierra de Guadarrama.
Frente a la seriación y repetición racionalista de la unidad familiar tipo, el proyecto se plantea como una solución más acorde a los modos de vida contemporáneos que aboga por la variación y la mezcla tipológica. El bloque se compone de nueve ‘barrios’ o agrupaciones de viviendas diferentes, todas pensadas con una organización flexible para adaptarse a los requerimientos personales y propiciar que cada habitante aporte su propia identidad. Por fuera, el color y los materiales de fachada distinguen los grupos, así como la modulación de los huecos. En el interior, los núcleos de comunicación componen un recorrido sinuoso que perfora el volumen, destacado por su color rojo vivo, y que se muestra en diversos puntos del exterior creando espacios abiertos excavados en el bloque que anticipan la experiencia del gran mirador.






















Obra Work
Mirador Housing
Cliente Client
Empresa Municipal de Vivienda de Madrid (EMV)
Arquitectos Architects
MVRDV / Blanca Lleó Asociados
Colaboradores Collaborators
Jacob van Rijs with Ignacio Borrego, Stefan Witteman, Guillermo Reynes, Pedro García Martinez, Gabriela Bojalil, Antonio Lloveras, Nieves Mestre, Marjolijn Guldemond, Fabien Mazenc, Dagmar Niecke, Renzo Leeghwater and Florian Jenewein
Consultores Consultants
Apartec Colegiados SL (aparejadores quantity surveyors); NB35 (estructura structure); JG & Asociados (instalaciones services)
Contratista Contractor
Dragados
Superficie construida Built-up area
18300 m² (156 viviendas dwellings)
Presupuesto Budget
10M €
Fotos Photos
Rob’t Hart; Roland Halbe; Miguel de Guzmán