Edificio Le Monolithe, Lyon
MVRDV- Tipo Colectiva Vivienda Comercial / Oficina
- Material Aluminio Metal
- Fecha 2004 - 2010
- Ciudad Lyon
- País Francia
- Fotografía Philippe Ruault Loïc Vendrame
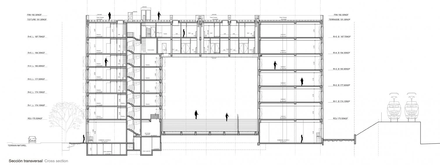
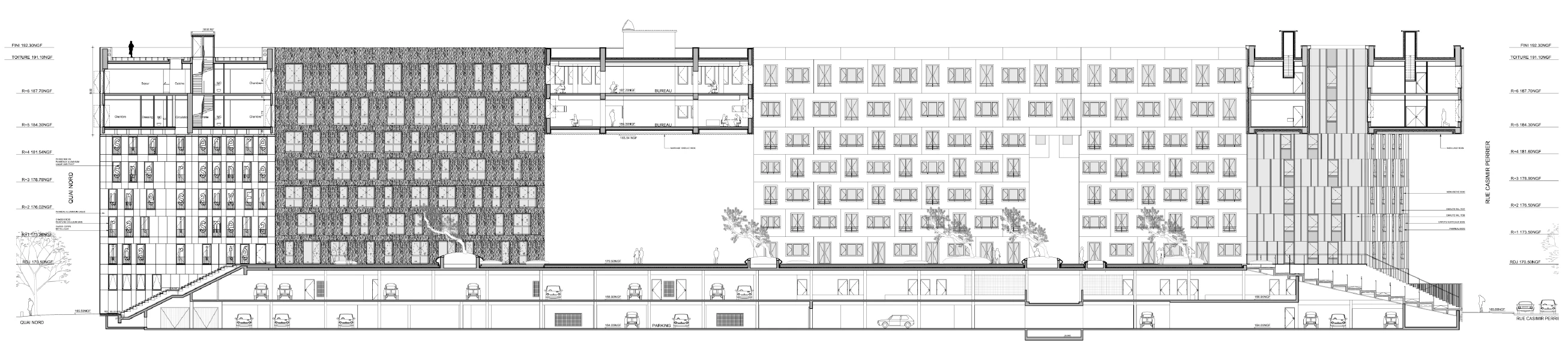
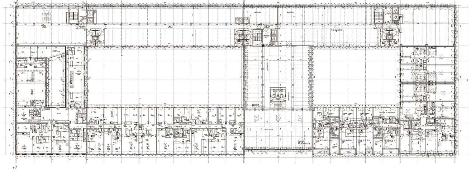
Fruto de la colaboración de cinco estudios sobre un plan director de MVRDV, el edificio Le Monolithe se sitúa en el área de Lyon Confluence, una zona en regeneración al sur de esta ciudad francesa. El proyecto es una supermanzana que combina viviendas sociales, apartamentos de alquiler, oficinas, residencias para discapacitados y comercio. La organización del solar parte de la propuesta presentada por MVRDV a un concurso público convocado en 2004, en el que proponían un superbloque dividido en cinco secciones que serían diseñadas por estudios diferentes para garantizar la diversidad, siendo ellos los encargados de realizar el testero sur.
El bloque se caracteriza por una plaza central elevada que mira a la ciudad y al frente fluvial, diseñada por los paisajistas West 8. Las fachadas del bloque sur se protegen con una piel de aluminio que crea huecos accesibles, una interpretación moderna de la arquitectura local, y que albergan una inscripción del primer artículo de la Constitución Europea que rechazaron Francia y Holanda en 2005. En el diseño global se ha tenido muy en cuenta la eficiencia energética, con medidas pasivas que hacen del bloque un modelo de construcción urbana sostenible.















Obra Work
Le Monolithe
Cliente Client
ING Real Estate / Artemis
Arquitectos Architects
MVRDV
Colaboradores Collaborators
Winy Maas with Marc Joubert, Céline Jeanne, Carlos Mann, Johannes Schele, Marin Kulas, Josefine Frederikson and Claire Destrebecq
Consultores Consultants
ECDM, EEA Erik van Egeraat Associated Architects, Pierre Gauthier Architects, Manuelle Gautrand Architects (diseño de sectores design of different sections); West 8 (paisajismo landscape); ALTO (servicios services); Khephren (estructura structure); Robert-Jan van Santen Ass. (fachadas facades); Yves Chicoteau (gestión nanagement); Ulcing Talhouet Ass. (economista economist)
Superficie construida Built-up area
15000 m² (masterplan con viviendas, oficinas, zonas comerciales, espacio público y aparcamiento plan director with housing, offices, commercial space, public space and parking); 3900 m² (sección de MVRDV: apartamentos, zonas comerciales y oficinas MVRDV section: apartments, commercial space and offices)
Presupuesto Budget
45M € (total); 9M € (MVRDV section)
Fotos Photos
Philippe Ruault; Loïc Vendrame